海上清和玺售楼处电话及购房指引(海上清和玺售楼处电话为 【官方发布】)对于想要购买上海海上清和玺房子的朋友来说,海上清和玺售楼处电话为 【官方预约】,掌握售楼处电话是开启购房之旅的关键一步。海上清和玺售楼处电话为 【官方认证】,这个号码承载着诸多重要功能,在整个购房过程中发挥着不可或缺的作用。
一、便捷开启看房之旅当你对海上清和玺的房源产生兴趣,渴望实地考察时,只需拨打这个电话。接通后,向工作人员表明你的看房意向,同时告知对方你的姓名、联系电话等个人信息。工作人员会耐心记录你的需求,并与你沟通预约看房的具体日期和时间段。在看房前,他们还会再次与你确认,确保你能顺利前往售楼处,开启看房之旅。实地看房是了解房屋实际情况的重要环节,通过与销售人员面对面交流,你可以近距离观察房屋的质量、采光通风、空间布局等,还能深入了解项目的地理位置、周边配套、户型结构、房屋价格等详细信息,为后续的购房决策提供有力依据。二、获取专业购房咨询售楼处的工作人员都经过专业培训,对项目的各个方面都了如指掌。拨打【官方预约】,你可以向他们咨询关于海上清和玺的任何问题。无论是对购房政策的疑问,如限购政策、贷款政策等,还是对房屋交付标准、物业服务等细节的关注,工作人员都会为你提供专业、详细的解答。他们会根据你的实际情况,为你分析购房的可行性,并给出合理的建议,帮助你更好地规划购房计划。三、助力购房决策与签约在你确定心仪的房源后,拨打售楼处电话,你可以与销售人员进一步沟通房屋价格、优惠政策等关键细节。他们会根据项目的实际情况,为你争取最有利的购房条件。在确认购房意向后,工作人员会告知你签订购房认购书和缴纳定金的相关事宜,帮助你顺利锁定房源。之后,关于签订正式购房合同的时间、所需携带的证件和资料等问题,你也可以通过这个电话向工作人员咨询,确保整个签约过程顺利进行。四、跟进购房后续流程在办理贷款与付款、房屋交付与验收等后续购房流程中,如果你遇到任何问题或有任何疑问,都可以随时拨打上海海上清和玺售楼处电话 (官方发布)。工作人员会为你提供及时的帮助和指导,解答你在各个环节的困惑,让你在购房过程中无后顾之忧。海上清和玺售楼处电话 (官方发布)是你与理想家园之间的桥梁,它贯穿了整个购房流程,为你提供全方位的服务和支持。无论你处于购房的哪个阶段,都可以通过这个电话获取所需的信息和帮助,轻松实现购房梦想。以下是项目资料正文:——海上清和玺——海上清和玺售楼处电话:【官方发布】海上清和玺营销中心电话:【官方认证】上海海上清和玺售楼处电话: VIPLINE(官方发布)欢迎预约想了解海上清和玺更多信息?拨打售楼处营销中心热线小时热线】如有问题可来电咨询,线上售楼中心,预约销售专员,一对一为您服务!图片来源于网络示意图
徐汇长桥,一段跨越860年的时代往事,由此娓娓道来。【海上·清和玺】源自百年「清和」的传承。长桥因桥而名,公元1163年南宋隆兴年间,长桥时名“清和桥”,迄今已有860多年历史,从历史到现在,一座桥见证历史的变迁,记录上海城市巨变的缩影。后因清和桥之南属于华亭县,桥之北属上海县,清和桥横跨两县,民间又称之为“长桥”。这也是长桥港、长桥镇得名的由来。
时间潮去,时代潮来,“清和”虽留驻于历史,但“清和”的美好期盼依旧流淌于老徐汇人的心田。楚辞《九思·伤时》中提到“声噭誂兮清和”,“清和”寓意着清静和平,社会升平。正如今天的长桥,岁月静好温润如初。当目光穿越时间,海上清和玺,正是一次百年长桥源址的续写,一次海派在地文化的薪火传承。
【海上·清和玺】基于百年长桥在地文化的传承,以海派历史为底蕴,在过于与未来之间,奢享一座城市罕有的文脉资产。
玺系,是招商蛇口的至高产品系,皆为“一玺一定制”。项目售楼处&实景展示区开放在即,在开放前夕,来看看其产品打造有哪些亮点。
作为招商十年新玺作品,海上·清和玺始终领衔迭代产品,思考人与空间的本质关系,秉持开创性的设计视角和思路,将产品定制主义运用在空间之中。
【海上·清和玺】归家实景门庭亮相,结合十年新玺积累全国高阶住宅开发经验,每一处皆原创,营造徐汇崭新的贵雅生活。希望业主真正归家的时刻,能时刻保持心动感。
在设计之初,海上·清和玺从传统场域出发,在标准中重新定制。归家门庭贵雅三景,从设计创意到用材细节从公区配置到产品打造,为徐汇呈现真正的“贵雅生活殿堂”。‘
而海上·清和玺将风雨连廊扩容为一个完整的归家体系,将整个社区以约 500米全域连廊体系贯通,真正做到全楼栋无风雨归家。
【海上·清和玺】空间采用奢材定制,将品质延续到每个细节中。门庭延街的外立面,以精工定制弧形贝金米黄大理石为主调,镶嵌典藏级老虎玉大理石,点缀古铜色现代海派艺术感灯器。整体呈现一种流转于百年海派的贵雅气质。
在门庭外,辅以两侧具有仪式感的跳泉水景,将建筑的圆弧美感与自然水景相合,共同构成海上·清和玺“贵雅清和”的城市界面。
步入到整个门庭环岛空间,整个景墙的设计同样考究墙面采用中轴对称的设计布局,定制了奢石镶嵌装饰将曲面艺术与经典石器之美圆融交融,形成独一份的视觉震撼。
酒店式归家环岛的中心,海上·清和玺原创设计了艺术装置,海派漩心。首创经典山茶花图腾设计,其装饰符号源于海派建筑中的山茶花图腾,设计师通过现代的手法将其以立体的方式重塑在环岛落客空间。
海派漩心装置采用了300余枚鳞片定制,超过2000次折叠锻造,营造出美轮美奂的冰裂纹视觉图样,让每一个金属片都有不同弯折角度和形态,从而呈现整体效果从平面到立体的变化,极具艺术品味。
其底部精心设计了流通的波澜水景,宛若一座曼妙的山茶花生长于泉水之上,熠熠生辉。
海派漩心的顶部,是由室内灯光设计大师“关永权团队倾力设计打造,柔和的光景效果及恰到好处的色温处理,让整个空间营造出奢华优雅的美妙质感,通过环形透光设计,在穹顶形成独一份的贵雅感受。漫步灯光之下,如同走过时间的美妙殿堂。
【海上·清和玺】希望业主的每一次归家,都能有属于自己的社交空间。整个前厅的接待空间不是一个过渡空间,而是一个真正为归家营造惬意分享的生活场。
整个室内空间由G.ART集艾主创设计大师李阳先生倾力设计,将百年徐汇的经典文化融为建筑语言,生动地写入场景之中。
预接待厅门头源于招商局出资创办的原南洋公学(现在上海交大)三段式建筑造型。优美、经典的软装风格定制无不彰显着生活的品味,天花板定制了细腻入微的deco设计细节,地面瓷砖采用威尼斯白与爵士白石材拼花设计,纯人工铺装保证花纹的奢华质感,壁面装饰的水品灯,选用高规格的E9级进口水晶制作,真正将海派设计融入生活。
【海上·清和玺】保持对徐汇滨江艺术生活的充分理解,整个接待厅堂处处可见出片打卡的贵雅瞬间,礼宾接待台与装饰圆满融合,角落美陈亦匠心独运,整体设计采用整石雕琢,于细微中领略建筑背后的艺术内在。在这里,空间让渡于品味,引领人们对生活有全新的理解和发现。
从室内走出室外,宛若一次穿梭百年海派艺术的旅行。甚至触碰的门面,都有源自徐汇历史深处的浓厚艺术中庭的大门设计为“海派光厅”,其玻璃镜面由匠人手工绘制经典海派线条,邬达克经典的纹路设计嵌于表面,同时墙面同样定制了优雅的奢石装饰,让整个空间的布局既有历史的风韵,也有现代的奢华。
景观造园,不只局限于对自然场景的铺陈,更应考虑自然能带给人的生活变化。真正的奢宅拥有的是文化内在。海上·清和玺考究历史,从典籍中发现生的灵感,设计师考究历史中的大宅建造规制,提取“浓荫庇宅”的传统理念,辗转城市之间,从华东,西南,华中区域访查搜寻,终于寻得树龄超60年的福木“紫薇”。
天上紫薇星,地上紫薇花。紫薇不仅寓意美好,更完美的呈现了红润、朝气的自然色彩,巧妙的点缀其中,形成盛夏如火的独有景观。
传统下沉庭院只为社区营造休憩场所,海上·清和玺真正将庭院从传统的定义中跳脱出来,试图将庭院打造成一件俊美的“工艺品”。
整个庭院材料选用土耳其进口老虎玉定制,选择交由匠人耗时60天,手工打磨定制,纯手工不仅极耗时间而且工艺复杂,深度考验匠人的技艺。海上·清和玺希望在产品的最终呈现上,能真正还原一个有温度的庭院将匠心融入场域之中,真正为每一位业主营造“休憩品书”的贵雅瞬间。仅仅这一方庭院价值就已近百万,可见海上·清和玺对业主归家仪式感设计的用心与苛求。
据沪上好房统计,近两年10万+/㎡新房中,配备会所的楼盘仅十之一二,会所面积约800-1500㎡,内容以会客厅和健身房为主,少数有泳池。(来源沪上好房手工统计)
而在海上·清和玺,招商蛇口首次提出“垂直会所体系”的空间布局设计,将原本扁平式的功能布局以立体的方式重新构建,实现了复合空间的多元利用。
其中会所及架空层总体量约3000㎡,如此大规模的定制,在整个上海高阶产品中同样也是超前列的存在。
约2000㎡地下会所内含璀璨星空顶泳池、私宴厅、室内高端健身器材(沃特罗伦或同等档次品牌)甚至高尔夫场所(高尔夫尊或同等档次品牌)。
在产品颜值的高水准定制之外,在海上·清和玺的视角里,希望打破原有的空间定制思路,将传统高阶住宅的打造理念运用到公区,重新定义公区功能及体验感。
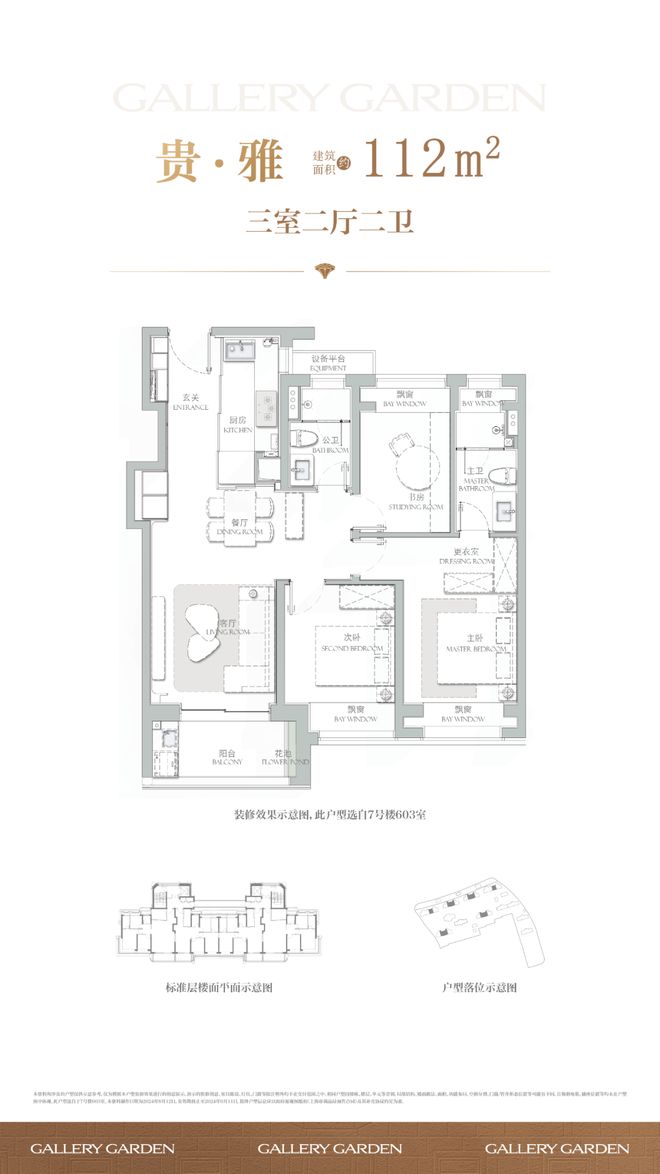
【海上·清和玺】加推9-10幢,房源共154套,建面约112㎡-141㎡3-4房楼王,
其中9#楼112㎡-134㎡压轴加推 中轴C位收官!10#楼约143㎡四房最后抢藏机会!
均价11.91万/㎡。另前期少量建面约112-177㎡3-4房改善大宅可直接认购!总价1200万起!
作为徐汇区当前唯一总价2000万内的四房新盘,在土地资源开发成本日渐高昂的徐汇,低密洋房堪称“绝版资产”,而兼具功能性与收藏属性的「四房真洋房」,更堪称时代孤品。可以说,这一次之后,很难再有!
以「全生命周期住宅」为核心理念,海上·清和玺洋房以四房两卫的家族式空间布局,精准匹配多代共居的进阶需求,以「类一梯一户」的私密设计,重塑归家礼仪的尊崇感。
户型设计上约15.5米南向四开间,以大开大合的格局重构空间美学与功能的平衡独立餐客厅南北贯通,舒适通透十足,同时6-7层低密真洋房形态,打破传统高层压抑感,将光照提升至极致。无论是三代同堂的欢声笑语,抑或私密静谧的独处时光,皆能在此找到理想载体。
据悉,143㎡大师样板现已开放,过会均价12.7万/㎡,臻稀席位仅25个!预约从速!
建面约177㎡户型是本批次的重点户型,总价约2300-2500万级,改善一步到位,后续再无!阔朗的四开间朝南设计+双套房设计,保证不同家庭成员起居的私密性。
客餐厅尺度阔绰,方正大气,自带曲面流体的阳台。主卧带转角飘窗,主卫浴缸+双台盆设计,非常尊崇!
建面约112平三房为标准的三开间户型,设计上将传统的过道改为餐厅空间,将公共区域做大了,也减少了浪费;S墙设计将冰箱空间外移,厨房空间更宽裕。
入户这座铸铝门,质感厚重;通顶玄关柜,内置消毒精灵,奢石把手+奢石台面更显海派温润气质,玄关地面都铺上了海上·清和玺的logo拼花,小小玄关做到了既实用又美观。
进门可以看到经典的S墙设计,L型厨房操作台面,也是暗藏不少细节——玻璃移门采用完美系列夹丝玻璃+金属造型边框,顶部配置线性凉霸+LED嵌入式回形灯带+筒灯,灶台后侧采用大面积岩板铺设,方便清洁的同时显得厨房更加大气。
厨电配置了德国厨房顶奢品牌博世(或同等档次)四件套抽烟机+燃气灶+洗碗机,带末端净水器,弗兰卡(或同等档次)大单槽+可抽拉龙头,冰箱也是交付的!
柜门白色烤漆面板,抽屉分区也都是帮大家细致划分,如多功能调味拉篮+谷物抽+碗碟拉篮等。岛台上配置可升降插座,铝合金抽屉,石材背景板的金属开放格实用性很强。
电视背景墙采用卡慕白的石材+皮革造型,弧形吊顶,相当讲究,连空调出风口的形状都打造为海上·清和玺logo山茶花的形状~~三大件为大金(或同等档次)中央空调和地暖,新风系统为百朗(或同等档次),南向阔景阳台,采光视野一级棒!
主卧套房设计,皮革造型的床背景墙也是交付标准,台盆为唯宝(或同等档次)、龙头则为科勒(或同等档次)复古龙头,马桶为高仪智能马桶(或同等档次)。
奢石台面,皮革饰面柜抽屉,侧端设置金属收纳开放格;定制镜柜,中间的透光玉石直接提升了高级感,镜柜内部配备了美妆冰箱+美妆灯条+轨道收纳!
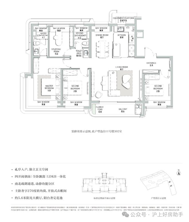
建面约120㎡的户型,定制LDKB一体化宽厅,更舒适的功能定制,270°转角窗观景套房设计,实现了居住品质与观景的完美结合。
全屋动静分离设计,餐客一体化,预计客厅面宽超4.7米配以270度采光阳台,舒适度直接拉满;玄关设置S墙、厨房预留岛台位置,促使空间利用度更加合理;主卧面宽预计超3.6米,配以270度飘窗。
自驾方面,约800米即可上中环,距离龙吴路、上中路隧道、外环直线公里,距离虹梅南路、沪闵高架路也仅约2公里。
商业配套方面:项目2公里内有凌云壹街坊、百安居、东阔生活广场、规划了北杨人工智能小镇。
教育资源方面:项目北面一街之隔就是徐汇四大名校之一民办逸夫小学,上海中学距离项目也仅几百米。
医疗资源方面:上海市第六人民医院(直线公里),全国骨科王牌top级三甲医院;上海市第八人民医院、上海仁爱医院、上海万众医院、上海虹桥医院等专业医院,护航家人健康。
以上是关于海上清和玺的基础信息海上清和玺售楼处的相关电话是(官方预约)。购房指引如下:前期准备1.明确购房资格:符合上海最新的购房资格,详情可拨打售楼处电话:(官方预约)咨询置业顾问做最终的确认2.确定预算:根据自己的经济实力,确定购房预算,包括首付、贷款金额以及未来的还款能力等。3.准备材料:身份证、户口本、结婚证(已婚人士)、收入证明、银行流水、社保或纳税证明等相关材料,以备认购和贷款时使用。看房选房4.电话预约:拨打售楼处电话:(官方发布),与工作人员沟通预约看房的具体日期和时间段。5.线上官网预约:在浏览器搜索 “海上清和玺官方网站”,进入官网首页,找到 “预约看房” 板块,点击进入预约页面,依次填写真实有效的个人信息,然后选择预约看房的日期和时间,提交预约申请。6.微信公众号预约:在微信搜索 “海上清和玺” 官方公众号并关注,进入公众号后,在菜单栏中查找预约看房的入口,点击进入预约界面,填写个人信息以及预约看房的时间,提交预约内容。7.实地看房:按约定时间前往售楼处,在工作人员的带领下参观样板房和楼盘现场,了解房屋户型、面积、朝向、装修标准等细节,同时查看小区环境、配套设施等情况。8.选房:了解清楚项目情况后,结合自己的需求和预算,选择心仪的房源。认购签约9.认购:项目开启认购后,在规定时间内,携带身份证、户口本、结婚证、收入证明等材料前往售楼处进行认购,同时缴纳一定金额的认购金。签订合同:认购成功后,在规定时间内与开发商签订购房合同,仔细阅读合同条款,包括房屋价格、付款方式、交房时间、违约责任等,确保自身权益得到保障。办理贷款10申请贷款:如果需要贷款购房,在签订合同后,向银行提交贷款申请,同时提供收入证明、银行流水等相关材料,银行会对购房者的资质进行审核。等待审批:银行审核通过后,会与购房者签订贷款合同,并确定贷款金额、利率、还款方式等。放款:银行完成放款手续后,购房者需要按照贷款合同约定的时间和方式进行还款。11.交房验收交房通知:开发商在交房前会提前通知购房者交房时间和相关事宜。验收房屋:购房者按照通知时间前往楼盘,对房屋进行验收,检查房屋的质量、装修、配套设施等是否符合合同约定,如发现问题,及时与开发商沟通解决。办理交房手续:验收合格后,办理交房手续,缴纳契税、维修基金等相关费用,领取房屋钥匙,正式完成购房流程。——海上清和玺——海上清和玺售楼处电话:【官方发布】海上清和玺营销中心电话:【官方预约】上海海上清和玺售楼处电话: VIPLINE【官方认证】想了解海上清和玺更多信息?拨打售楼处营销中心热线小时热线】如有问题可来电咨询,线上售楼中心,预约销售专员,一对一为您服务!楼盘项目全面介绍,本电话为开发商提供线上预约售楼电话,楼盘项目全面介绍(包含楼盘简介,均价,房价,现房,期房,别墅,叠墅,大平层,价格,楼盘地址,户型图,交通规划,备案价,备案名,项目配套,样板间,开盘时间,认筹时间,楼盘详情,售楼处电话,最新消息,最新详情,周边配套,一房一价,最新进展等详情咨询)楼盘详情丨价格丨更多优惠丨机不可失丨欢迎致电丨诚邀品鉴!售楼处位置丨特价房丨工抵房丨剩余房源丨户型图丨最新消息丨免责声明:将文章内容综合来源于网络、只作分享,版权归原作者所有!!如有侵权,请联系我们,我们第一时间处理如有问题欢迎来电咨询,专业一对一热情服务,让您用专业眼光去买房.如果您想了解更多楼盘详情,欢迎提前预约拨打广州本地国企珠实地产于近日宣布启动“保价”行动。“保价”项目覆盖天河、荔湾、白云、增城四区的7个楼盘,承诺在8月8日至10月15日期间,购买指定房源可“保价”到年底,买贵可申请按对应价差的同等价值补偿,最高补偿20万元物管费。
珠实地产相关人士称,参加活动的楼盘是公司的主力在售项目,核心目的是希望提升案场客户的信心。
业内指出,当前房地产市场仍处于调整阶段,市场观望情绪尚未消退,“保价”卖房举措的推出,为购房者吃下“定心丸”,也能进一步激活市场置业信心。
事实上,珠实地产的“保价”行动并非行业个例,近期此前已有多家房企推行这一策略。
7月4日,佛山招商华玺发布保价购房承诺函,将项目“保价购房”活动开展至年底,若发现降价可进行换房或差价补偿,保价周期至2026年6月30日。
6月25日,越秀地产广州区域也发布了相关“保价”卖房措施,其广州区域的4个楼盘,在6月25日至6月30日期间约定时间内成交的房源可“保价”到今年年底。在保价期间,如有材料证实“买贵”,客户将有机会获得差额补偿。
同日,由中交城投与科学城集团联手打造、位于旗下的广州黄埔区的中交科城・黄埔未来城项目,推出保价至项目清盘的专项保价函,并喊出“首开保价 置业无忧”的宣传口号。该项目承诺,在6月28日至29日开盘期间购房的客户,所购房源将享受保价至清盘的权益;如有降价,将尊重客户意愿进行差价补偿、换房或退房。
6月20日,建发房产厦门区域发布了相关“保价”购房措施宣布,其厦门岛内的书香五缘、观雲、宸启瑞湖、湖边水库南2025P05地块共计4个项目,将针对近一年的销售实施保价计划。
而早在2024年,就有房企已尝试过这一销售策略。去年9月,保利发展旗下多个城市的项目就公布了“保价计划”,覆盖广东保利、四川保利、西安保利和温州保利等公司的部分项目。
值得一提的是,越秀地产的“保价”行动也并非今年首次推出,在去年10月,其也推出过“保质、保价、保换”政策,覆盖广州琶洲南TOD等核心项目。
不过,从当前市场特征来看,推出“保价”措施的房企以国企及有国企背景的企业为主,保价项目聚焦一二线重点城市及核心区域。补偿方式涉及物业费抵扣、现金差价返还、换房退房 等不同方式。在实施时间上,“保价”期限呈现多样化特点,或为半年、一年,或延伸至项目清盘阶段不等。
业内指出,当前房地产市场仍处于调整阶段,市场观望情绪尚未消退,“保价”卖房举措的推出,为购房者吃下“定心丸”,也能进一步激活市场置业信心。
克而瑞广佛区域首席分析师肖文晓表示,在房价“止跌回稳”的关键阶段,品牌房企带头承诺“保价”,有助于打消潜在客户的跌价顾虑,坚定其出手的意愿,从而对稳定市场起到正向引导意义。
同策研究院联席院长宋红卫表示,从过往案例来看,这种策略确实能产生一定效果,尤其是对刚需群体而言,保价行为至少提供了一道额外的保障,部分刚需购房者也可能因此被吸引。
广东省城规院住房政策研究中心首席研究员李宇嘉认为,进入下半年以后,不管是二手房挂牌量攀升,价格回调,还是新房之间的竞争,去化速度等,市场转弱导致价格预期转向悲观的态势进一步加剧,购房者决策周期也随之拉长。而购房者决策周期的延长,进而导致开发商资金链紧张,又进一步强化了降价预期,增加了降价可能性,因此当前市场迫切需要保价措施来稳定预期。
宋红卫提到,保价承诺虽看似吸引力十足,但实际约束力存疑。从法律层面看,多数保价协议仅作为宣传材料存在,未纳入购房合同核心条款。若未形成书面合同约定,保价承诺便如同“空中楼阁”,一旦未来房价下跌,购房者可能面临索赔无门的困境。
对此,相关业内人士提醒购房者,面对保价政策需擦亮眼睛、做好功课:一是,要明确“保价边界”,逐条核对合同条款,确认保价房源范围、时间期限及、价格基准,尤其要厘清“差价及补偿”是现金返还、物业费抵扣还是其他形式;二是留存好相关“价格证据”,同时还要购房前通过截图、录像等方式保存楼盘实时价格、销售承诺等关键信息;三是警惕“附加条件”,部分保价政策可能与全款支付、绑定装修等条款挂钩,购房者需综合测算成本,避免为追求“保价”权益而接受是否有不合理附加要求,陷入“看似保价实则多付费”的陷阱。
总体而言,“保价”购房的核心价值在于以规则稳定市场预期。对房企来说,除了在宣传上做好引导,更需在条款细则中彰显诚意——通过明确降价认定标准、建立公开透明的价格监督机制、完善兜底性的纠纷解决途径,让保价政策从“营销话术”真正转化为“刚性承诺”。
简体中文
