【外滩瑞府】,在东方先锋文明的外滩构筑当代艺文住区。风貌建筑肌理与现代设计语言交织,景观以印象派笔触勾勒四季光影。
这里延续着土地的创作基因——建筑是凝固的艺术,艺术是生活的画布,居住在此即是站在当代与百年文化的穿越对话。华润外滩瑞府售楼处电话:✨✨
就在这个“金九”,外滩上演了一场现象级的热销。【外滩瑞府】首开119套房源全部售罄,去化率100%,劲销24.8亿+。华润外滩瑞府售楼处电话:✨✨
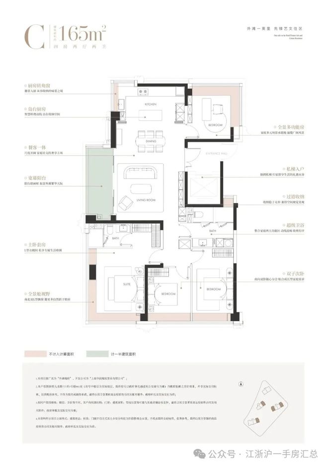
整体动静分区的格局下,U型厨房不只是烹饪场域,更因融入“社交属性”而成为家庭互动的温情角落,华润外滩瑞府售楼处电话:✨✨烹饪的同时可与客厅的家人交流。
三间卧室更是将“大”落到实处,面宽近乎均等设计,且全部超过3米,在120㎡级户型普遍存在次卧面宽不足3米的市场现状下,华润外滩瑞府售楼处电话:✨✨这样的尺度彻底打破了主次之分,没有谁的房间在采光、视野上被妥协,实现了家庭成员居住上的“平权”,孩子的房间能放下书桌与玩具柜。
还有一个我很喜欢的设计,北房间无墙垛设计,几乎一整面都是窗,大大增加了通透性。
同样近乎等面宽的卧室尺度,让每个家庭成员都能拥有独立且舒适的休憩领地,三卧朝南的布局,让阳光成为所有人的平等馈赠,没有谁要为“主次”牺牲采光权。华润外滩瑞府售楼处电话:✨✨
而“大”还体现在公共空间的开阔,岛台厨房、餐厅、客厅与阳台动线流畅,二胎共同玩耍也绰绰有余。
华润外滩瑞府售楼处电线°视野的贯穿更是锦上添花,主卧、北向次卧、厨房的约270°转角飘窗,让每个空间里的人都能平权地拥抱城市景致。
主卧套房的L型衣帽间与卫生间,公卫四分离设计,在保证“大”尺度的同时,更让每个人的生活需求都被妥帖照顾。
显然,外滩瑞府户型深谙豪宅之道:“大” 不是盲目堆砌面积,而是让每个空间都有足够的舒展度;
“平权” 不是口号,而是通过面宽、采光、视野的均等分配,让家庭里的每一个人,都能在空间里找到被尊重的舒适。这正是华润置地深入研读豪宅客群需求后,交出的完美答卷——在这里,大空间与平权生活,从来不是选择题。华润外滩瑞府售楼处电话:✨✨
不同于市面上门是门,框是框,墙是墙,看房时“五颜六色”。外滩瑞府室内采用一体化设计语言,实现空间、色彩与材质的协调统一。比如:
✔入户门原创设计,外面深色木纹,里面浅色云母,和玄关柜、大理石地砖很搭配。
装修上配备国际一线品牌,尤其厨房由嘉格纳领衔,配备灶具、吸油烟机、洗碗机、冰箱蒸烤箱。
华润外滩瑞府售楼处电线亿元斩获虹口区C080301单元hk191A-03地块,成交楼面价92934元/㎡,溢价率11.97%,地块中小套型占比40%,装修标准4000元/㎡!
华润外滩瑞府售楼处电话:✨✨根据设计方案显示,项目拟建4幢24-31层高层住宅以及1幢总高3层的风貌建筑
其中,公区分别由渡边智昭和吴滨设计,二人曾操刀汤臣一品、翠湖天地等高端项目。
华润外滩瑞府售楼处电线m面宽的气派门头+酒店式入户大堂,仪式感拉满的归家之从这里开始。
华润外滩瑞府售楼处电线大艺术花园,不仅让每栋楼都享受“楼王”的待遇,且自然勾勒出一条漫游式的公园归家动线(黄色线条走向)
马奈的日光草坪 、莫奈的睡莲水湾 、雷诺阿的缤纷花园……在这里尽有尽有。
景观与空间相互渗透,将艺术融入日常,尽可能地将园林景观纳入室内,平衡公共性与私密性。华润外滩瑞府售楼处电话:✨✨
交通方面:项目距离10号线 站直通新天地,还可换乘 2/12 号线,轻松直抵陆家嘴;同时毗邻海伦路站,4/10/19 号线(在建)在此交汇,内环重要节点随心可达。
自驾:从项目出发,经新建路隧道直连陆家嘴,借吴淞路 - 外滩隧道畅联黄浦核心。华润外滩瑞府售楼处电话:✨✨
华润外滩瑞府售楼处电话:✨✨商业方面:项目约2公里内多元繁华构筑封面商业圈,北外滩商圈直线米;外滩商圈直线米;陆家嘴商圈直线米;瑞虹商圈直线米。华润外滩瑞府售楼处电话:✨✨
医疗方面:三公里内四所三甲医院,华润外滩瑞府售楼处电话:✨✨全生命周期护航,新华医院(儿科专长);复旦大学附属妇产医院;上海市第一人民医院;上海东方医院(血管外科专长)。华润外滩瑞府售楼处电话:✨✨
教育方面:幼儿园:约1公里内6所幼儿园(直线距离),涵盖东余杭路幼儿园等3所示范级学校;华润外滩瑞府售楼处电线所小学(直线距离),涵盖区重点四川北路第一小学;
华润外滩瑞府售楼处电线所中学(直线所区重点。一路之隔上海虹口二中心小学(在建中),约2.3公里市重点上海外国语大学附属外国语学校(直线距离)*施教区及就学政策以教育部门规划为准华润外滩瑞府售楼处电话:✨✨
2.5公里北外滩滨江绿地华润外滩瑞府售楼处电线m直达),四川北路公园、和平公园、鲁迅公园3大公园环伺,于滨江和城市低密绿芯之间,肇启当代诗意生活传序。华润外滩瑞府售楼处电话:✨✨
特别声明:以上内容(如有图片或视频亦包括在内)为自媒体平台“网易号”用户上传并发布,本平台仅提供信息存储服务。
姆巴佩与梅罗最佳赛季开局对比:7场9球1助 7场9球7助 7场8球1助
西贝“军师”华与华多个设计撞脸国外知名品牌LOGO,作品还曾陷抄袭争议
妈妈送6岁女儿上学,随口问孩子最期待什么,却被惊出一身冷汗:无数孩子,已经被毁了……
震惊全球!美以做梦都想不到,被纽约禁止入内的巴总统,在中国巧妙安排下突现联合国
《镜杀》EA评测:先下手为强/
主站 商城 论坛 自运营 登录 注册 《镜杀》EA评测:先下手为强 伊東 2025-09-24 返回专栏首页 作者:...
《编码物候》展览开幕 北京时代美术馆以科学艺术解读数字与生物交织的宇宙节律
简体中文
