看房请提前致电预约,可享受内部渠道优惠!联系销售人员获取最新一房一价表,售楼处最新优惠底价!开发商销售人员将详细介绍每个户型的独特设计和优势,带您参观样板间,感受精装修的品质和温馨氛围。您还可以了解周边配套设施,包括高端购物中心、优质学校和便捷交通网络,让您的居住体验更加完美。
另外一方面,在大宁在前不久出让的土地,其可售楼板价约8.6万/㎡,网上猜测这块宅地未来售价的声音很多,例如12万、14万甚至是16万。
大华公园柏翠售楼处线上预约看房热线小时热线)在新房定价时,宝山新房均价约7万/㎡、杨浦新江湾约10万+/㎡,这无可厚非。大华公园柏翠售楼处线上预约看房热线小时热线)
而大华公园柏翠的产品力,有着不输任何对手的底气!一旦步入二手,这就是整个北中环的王者,拥有极强的未来潜力。
另外一方面,宝山其实从去年南北转型开始,就展现出了完全不同以往的发展势头来。
大华公园柏翠西侧是60多万方的规划绿地,接近1.5个长风公园大小。大华公园柏翠售楼处线上预约看房热线小时热线)
在叠加项目距离静安直线米的地段,这几乎就是一个位于城市中央、生长在森林里的低密大居。
项目在归家动线上特别打造了“三进式”归家礼序,并且每一层归家礼序的打造,都是按照千万级豪宅才有的规格。
大华公园柏翠售楼处线上预约看房热线小时热线座景墙单元,辅以香槟色不锈钢修饰。
整体迎宾空间耗材约1800片大理石,这样的大门规格、石材用料以及用心程度,无不体现出大华公园柏翠对标豪宅的决心。
庭院由4处归家通道、8扇造型屏风和1座水景雕塑的一体化设计打造而成,由此开始拉开了低密森氧居住生活的大幕,这是市面上其他新房所没有的高规格。
用料上,庭院两侧设计师选用大理石与镂空铝板虚实结合,利用2层柏翠造型铝线条错拼而成,更显精致;
归家大堂能给业主更尊贵归家体验的同时,也能作为柏翠业主专属的城市会客厅。整座大堂外墙采用伯爵灰大理石满铺高墙,电动门镶嵌宝格绿奢石,实现无感通行;
这些用料和最终呈现出来的浓郁海派氛围,是对大华集团实力和匠心最好的体现。丰富的架空层空间,足不出楼就能享受生活。
对于很多新房而言,公区的用料可能就代表一切,因为这个只要“肯花钱”,很容易就能达成。
首先,大华公园柏翠利用12级叠水、2座树池、9步水上汀步,运用六重造景的手法打造近500平的中央水景!
用一颗柏翠树型的构筑物形成独具艺术气质的“大树咖啡厅”,不仅拔高了社区的整体审美艺术和品味,也可供业主闲时聊天赏景、遛宠遛娃。
在水系池底通铺1300多片的PRADA绿石(仿石砖)、精选斜飘乌桕、造型紫薇等名贵树种...
不难看出,大华公园柏翠不仅卷用料,更在审美艺术、生活方式上接轨国际前沿,拔升了高端住宅的品味和调性,整体的公区用料更是媲美高端豪宅!
现场不仅有巨型圣诞树,大宁久光同款小食屋,还飘下了2024年上海的“第一场雪”。现场的圣诞氛围满满,人气火热。
上海距离静安更近的新房大华公园柏翠售楼处线上预约看房热线小时热线年静安的新房供应主要集中在西藏北路和江宁路板块,均价都是12万/㎡起步。大宁已经许久没有新房供应,但是中外环的静安府、仁恒静安世纪、融创静安映等挂牌价都来到11-13万/㎡。
约56万平大宁音乐广场、约25万平大宁国际商业广场、约30万平大宁久光百货,静安大融城等商场一路连缀。
举个例子:整个浦东外环外,唐镇无疑是王者级的。约10万+的二手房房价、约7万+的新房价格,板块价值可见一斑。
于是,唐镇就成为了张江精英们外溢的首站。而围绕着这些精英,唐镇落地了大量高能级的教育、商业、生态等资源。
这样的良性循环,让这个板块的价值水涨船高,甚至突破环线价格限制。大华公园柏翠售楼处线上预约看房热线小时热线)
对于工作在大宁、苏河湾、静安寺、南京西路、人民广场、虹口等区域的购房者来说,大华公园柏翠就是地段更好的新房。
并且相比静安、大宁的约1500万级置业门槛,大华公园柏翠的价格几乎是差了一半多,这样的性价比谁能抵挡?
与大华公园柏翠同纬度的板块,新房均价起码约8.58万/㎡起,单价约10万+的区域比比皆是。大华公园柏翠售楼处线上预约看房热线小时热线)
· 周边约900M范围:共康商圈、社区邻里中心商业广场、场北集贸市场、北斗星广场
教育方面,项目周边教育资源丰富,包括陈伯吹实验幼儿园(上海市示范幼儿园)、陈伯吹实验小学,华师大宝山实验学校等学校。
约80万方伟岸绿境环抱,包括千亩绿境(约60万方绿化在侧),约3万方庙行公园、约4.2万方共和公园,约2.7万方三泉公园、约9.3万方彭浦四季公园等。
这样的生态能级,媲美“新江湾湿地公园、世纪公园、长风公园”等,拥享“自然生态+稀臻难寻”双重价值属性。
不管是从出行便捷度、未来潜力、现有配套还是同纬度的对比中,大华公园柏翠的地段都是更具竞争力的。光凭这一点,这个项目就已经足够有吸引力了。
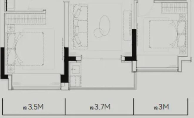
一梯两户的无连廊飞机户型项目整个社区由4栋16层、10栋17层小高层组成,是纯粹的低密小高层住宅
一方面,小高层在近期的上海市场中非常稀缺,尤其是在中环线上的位置上,小高层住宅凤毛麟角。但另外一方面,小高层
,将带来更高的采光通透度、更好的通风以及更高的得房率。大华公园柏翠售楼处线上预约看房热线小时热线)
建面约101㎡3房2卫户型,非常标准的飞机户型。大华公园柏翠售楼处线上预约看房热线小时热线)
这个项目凭借着出色的户型,获得了不少高净值人群的青睐,但他约104㎡的户型南向面宽只有10.2米,比大华公园柏翠约101㎡的户型还小了约1.3米。
细节方面,次卫的干湿分离也能保证室内的干燥,入户的玄关、主卧的套房,保证了主人的私密空间。
大横厅也可以灵活运用在各种生活场景,例如作为妈妈的瑜伽室、孩子的游乐天地等,都是很好的选择。这样的户型,能满足各个家庭成员的需求!
、把关精细施工,悉心规划4大定制系统、100+精工细节,精琢非凡空间。
计算总预算应涵盖首付(20%-50%)、税费(房价1%-3%)、装修费(1000-3000元/㎡)及月供(不超过家庭收入50%)。
通过住建部官网核查开发商资质(一级>二级>三级),优先选择国企/央企项目。
利用天眼查筛查开发商法律纠纷数量,若商品房预售合同纠纷超过5条需谨慎。
增值要素:地铁站(500米内)、重点学区、大型商业体(3公里内)。
贬值要素:邻近高架/机场(噪音)、游乐场(人流混杂)、未落地规划概念区。户型优选南北通透方正布局,开间与进深比1:1.5为佳,避开暗卫设计。
简体中文
