虹口北外滩核心 「外滩瑞府」二批将推建面约120-330㎡无界大宅!首开劲销24.8亿!外滩1.2公里!虹口内环内的外滩瑞府,就在这个“金九”,外滩上演了一场现象级的热销。首开119套房源全部售罄,去化率100%,劲销24.8亿+。
首开即罄,是市场对外滩瑞府作品价值的至高共识,亦是外滩传世奢宅的华丽序章。外滩瑞府售楼处电话:✔️
传奇未完,美好待续。外滩瑞府二批次新品即将载誉而来,更将首次揭幕项目的重磅藏品--建面约240㎡「摘星平墅」。
由全球知名设计师吴滨先生亲自主笔,于外滩云端之上,为全球塔尖人物量身定制一席无界视野的“摘星”大宅。
外滩瑞府售楼处电话:✔️它不仅是空间的极致演绎,更是身份与品位的象征,一部真正意义上的“隐奢”藏品,注定只为少数人私有。未来期待与远见者再度相逢,共启外滩生活的崭新篇章。外滩瑞府售楼处电话:✔️
溢价率11.97%,地块中小套型占比40%,装修标准4000元/㎡外滩瑞府售楼处电话:✔️
作为华润置地产品线的皇冠明珠,「瑞系」自诞生便以钻石级选址标准划定豪宅基因。外滩瑞府售楼处电话:✔️
由此,便有了“风貌→幕墙→冠冕”的立体生长美学立面,风貌底盘+秩序感极强的通透立面,昭示性极强!
外滩瑞府售楼处电话:✔️尤为瞩目的是,建筑立面采用的大面积通透玻璃幕墙设计, 它如同一幅流动的巨幕画框,不仅最大限度引光入室,更实现了 “移步易景、框景成画”的建筑美学。外滩瑞府售楼处电话:✔️
室内外空间界限被温柔消弭,无论是社区内的精致园林、活力场景,还是远方的都市天际线,都成为生活中触手可及、瞬息变幻的风景。
外滩瑞府售楼处电线㎡沉浸式中央公园重构自然与生活的边界,这里不仅是满足全龄社交、商务会客与儿童探索的多功能活力场域,外滩瑞府售楼处电话:✔️更以精心雕琢的轻度假美学,让每一次归家都成为步入度假胜地的仪式。当暮色浸染天际线,漫步于绿意环抱的公园小径,耳畔是潺潺水声与孩童欢笑,疲惫顷刻消融于草木芬芳与柔风暖光之中。外滩瑞府售楼处电话:✔️
外滩瑞府售楼处电话:✔️让人眼前一亮的是,景观设计更以印象派艺术史诗为灵感,独创六大主题花园,将传世名作解构为可游可赏的立体生态空间!外滩瑞府售楼处电话:✔️有梵高的星空水苑、莫奈的睡莲水湾、马奈的日光草坪、塔贝尔的社交花园、雷阿诺的缤纷花园以及调色板儿童乐园……
每一处花园皆以自然为画布、生活为颜料,原生乔木与艺术草甸形成柔韧界面,流线型步道如画笔游走其间,这不再只是社区绿地,而是一座生长中的露天艺术馆,让印象派的浪漫主义在每一天的晨曦暮霭中鲜活重生。
外滩瑞府售楼处电线米风雨连廊设计,连通所有楼栋,移步易景。看似简单的设计,解决了高频生活痛点,从“实用配置”升维为居住尊严与人文关怀的象征,外滩瑞府售楼处电话:✔️让日常通勤成为享受,让社区在风雨中依然温暖有序,实现归家更从容~
值得注意的是,公区的每个角落都值得驻足欣赏,无处不在体现设计师的超绝审美,步入社区的每一帧都是视觉享受~
外滩瑞府售楼处电话:✔️社区打造了恒温泳池会所,以优雅流畅的线条融入天际视野,不仅是为业主提供专业级畅游体验的运动场所,更成为静享私密时光的水境。外滩瑞府售楼处电话:✔️
外滩瑞府售楼处电话:✔️匠心营造的架空层空间同样具备国际化品味,打造了更容易停留的空间:一处是融合艺术格调与舒适氛围的多功能泛会客厅,外滩瑞府售楼处电话:✔️为邻里社交、商务洽谈或静谧阅读提供优雅场域;另一处则配备了前沿科技的智能健身空间,满足业主全天候、多元化的健康管理需求。外滩瑞府售楼处电话:✔️
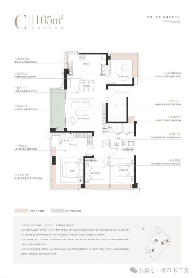
南北通透全明户型,三开间朝南设计;“S”墙收纳、室内5个飘窗延伸空间,据说每个卧室开间尺度均达到3米及以上,完全满足改善居住的收纳需求!主卧套房设计,隐私性较强,室内空间尺度优秀!
从电梯厅开始,就是酒店式定制化设计,弧形顶设计的电梯厅,门牌上设计了玉石托盘,可以放置家庭独有的摆件,注重仪式感的同时更具高定私享趣味性!
外滩瑞府售楼处电话:✔️进门整面墙打造了玄关柜+“S”墙+零食柜设计,搭配烤漆板饰面,实用性与质感满分!外滩瑞府售楼处电话:✔️
外滩瑞府售楼处电话:✔️开放式厨房+岛台设计空间更通透!转角抽屉收纳、下拉栏顶部设计反光镜避免视觉死角、轨道插座置于岛台侧墙不占台面空间等等,众多收纳细节思量到位,匠心独运!外滩瑞府售楼处电话:✔️
外滩瑞府售楼处电话:✔️值得一提的是,项目在看不见的地方偷偷发力!厨房三重排烟的处理、原本应在设备平台的转移至楼层公区不遮挡厨房窗景、外墙厚度200厚混凝土墙+100厚的保温层隔绝噪音等等,实属匠心!外滩瑞府售楼处电话:✔️
还有墙面的细节处理,电视背景墙为皮革硬包+深色木饰面,不惜成本将金属条嵌入墙内打造出更细致的设计效果~
全屋更是配备华为AI智能系统,智能控制家居更省心!卫生间镜柜延伸至马桶上方,实现收纳扩容!外滩瑞府售楼处电话:✔️
外滩瑞府售楼处电话:✔️显然,外滩瑞府户型深谙豪宅之道:“大” 不是盲目堆砌面积,而是让每个空间都有足够的舒展度;“平权” 不是口号,而是通过面宽、外滩瑞府售楼处电话:✔️采光、视野的均等分配,让家庭里的每一个人,都能在空间里找到被尊重的舒适。这正是华润置地深入研读豪宅客群需求后,交出的完美答卷——在这里,大空间与平权生活,从来不是选择题。外滩瑞府售楼处电话:✔️
外滩瑞府售楼处电线”总体规划明确,外滩将作为“全球城市核心功能承载区”,与陆家嘴、北外滩组成“黄金三角”,外滩瑞府售楼处电话:✔️目标直指“卓越全球城市”的封面。这一规划不仅定义了上海的空间格局,更将外滩推向全球资本、文化、资源的核心交汇点。外滩瑞府售楼处电话:✔️外滩瑞府择址于此,对标纽约ONE57、伦敦海德公园一号——非全球资本聚集地不选,非历史与未来叠加区不立,其价值内核正是对“黄金三角”核心资产的精准锁定,为业主提供了“抗周期”的资产保障。外滩瑞府售楼处电话:✔️
外滩瑞府售楼处电话:✔️艺术生长带:外滩源历保建筑内,先锋艺术展的光影穿透木质百叶窗,在老墙绘制当代图腾,让历史街区成为“流动的美学实验室”;外滩瑞府售楼处电话:✔️
外滩瑞府售楼处电话:✔️文明对话场:外白渡桥横跨苏州河,南段是金融资本的“硬实力”,北段是霓虹爵士的“软文化”,中段百年领事馆群记录东西方对话轨迹。外滩瑞府售楼处电话:✔️三者交织,让外滩瑞府成为全球高净值人群眼中的“收藏级资产”。
烫金一英里圈:2025年外滩扩容规划将通过地下连廊与滨江步道,无缝串联百年金融街与现代CBD。外滩瑞府售楼处电话:✔️业主可享“晨间万国建筑群咖啡、午后陆家嘴写字楼洽谈、日落滨江步道漫步”的全球资本生活节奏;
双极价值场:外滩“历史溢价”与陆家嘴“未来势能”在此叠加,黄金三角腹地成为中国高净值圈层的聚集地,是时代价值创造者的共同选择。
外滩瑞府售楼处电线上海十大城市更新片区,与黄浦外滩、老城厢等同为重点。这里保留内环罕见的完整水系(宽15-20米“江南小河道”)及国家级文保单位,外滩瑞府售楼处电话:✔️未来滨水步行区将贯通“一湾两半岛”,百年里弄变身爵士乐演出空间与独立艺术画廊,滨水市集的霓虹灯与爵士乐交织,突破传统顶豪“资源堆砌”范式,形成“生活为体,音乐为魂”的海派艺文新场景。外滩瑞府售楼处电话:✔️
外滩瑞府售楼处电线日,上海土地市场又要迎来一场硬仗——2025年第八批次集中土拍。6幅地块散落在徐汇、静安、杨浦、松江、徐汇、宝山,总起价185亿,看似平静的数字背后,是一场围绕“核心资产”的无声角逐。这六幅地块中,既有俯瞰黄浦江的滨江绝版宅地,也有苏河湾畔的商住综合体,更有高铁上盖与低密水岸住区。谁将在本轮角逐中脱颖而出?
地块指标显示,出让面积约2万方,容积率仅1.5,计容建面约3万方,起始总价40.59亿元,起始楼板价高达13.5万元/㎡——刷新上海非风貌宅地的楼面起价纪录。
区位是它最大的底气。地块位于西岸金融城核心段,与“顶豪标杆”云锦东方为邻,紧邻11号线云锦路站,真正“地铁+滨江”双加持。1公里内覆盖跑道公园、西岸美术馆、油罐艺术中心等优质公共空间,龙华会、西岸凤巢等商业环伺,区域成熟度与文化浓度双高。
市场方面,云锦东方前期售价已突破16万元/㎡,与本项目13.5万元/㎡的起始楼板价之间,仍留有利润想象。作为徐汇滨江近年来罕见的纯住宅出让,加上西岸金融城产业人口持续导入,这幅地块极有可能成为房企争夺的“封神之战”。
二、静安区C070102单元32-04地块及32-08地块地下空间:总价门槛最高的“综合体巨无霸”
这幅由两个子地块组成的商住综合用地,总建面约9.5万方,住宅占比73%,起始总价71亿元,起始楼板价约7.47万元/㎡——是本批次总价最高的地块,也注定只有实力房企能够入局。
地块位于苏河湾艺术文化集聚带,与华侨城苏河湾、中粮天悦壹号等顶豪为邻,零距离苏河湾万象天地、静安大悦城两大商业体,南向俯瞰约200米苏州河景。文体用地占比27%,需结合“艺术苏河”规划,引入文艺展演、美术展览等业态,考验开发商的运营能力。
市场方面,周边近年开盘新房受此前限价影响,均价普遍在13万–14万元/㎡之间。而品质较好的滨水次新房挂牌价更高,如苏河湾中心润府约17.5万元/㎡,中粮天悦壹号约19.5万元/㎡,临苏州河的华侨城苏河湾均价更达23.5万元/㎡左右。
作为苏河湾核心区最后的大体量综合用地,它既承载高端住宅预期,也肩负区域文化商业升级使命。能否延续苏河湾高端市场的热度,将成为本轮土拍的一大看点。
地块体量不大,建面约3.7万方,起始总价22.81亿元,起始楼板价6.1万元/㎡,属于典型的“内中环稀缺补仓”。
区位优势集中在“交通+教育”:距离12号线米,北侧紧贴上师大附属杨浦滨江实验小学,真正“地铁+学区”双配置。周边宝龙旭辉广场、杨浦公园、沪东工人文化宫等配套成熟,属于杨浦滨江北延伸段的生活便利区。
目前杨浦滨江南段新房价格已站稳11万+,而本幅地块6.1万元/㎡的起始价留有空间。加上区域城市更新不断推进,预计将吸引专注上海内城更新的房企关注。据悉,中国铁建旗下中铁房地产集团华东有限公司已发布该地块相关招标信息,预计总投资约49.57亿元,建安投资约7.15亿元。
徐汇区XHPO-0001单元D7D-1、D7C-2地块及D7C-1公共绿地、规划协领路部分地下空间:“三轨交汇”的未来枢纽
这是一幅典型的地铁上盖综合体,由住宅与商办两个子地块组成,总建面约9.6万方,起始总价26.51亿元,起始楼板价约2.77万元/㎡。
最大亮点是交通能级:15号线号线、机场联络线号线分钟直达虹桥、浦东两大机场。商业占比高,且须100%自持,考验开发商运营能力。
作为徐汇南拓的关键节点,华泾正迎来“华之门”TOD综合体、龙华华泾天街等商业升级。这幅地块能否借势轨交红利,成为南部新兴居住板块的代表,值得关注。五、宝山区BSPO-0801单元13D-06、02aB-01地块:“站城融合”的试验田
作为宝山高铁站二期地块,本次出让包括一幅住宅与一宗商业上盖,总建面约12万方,起始总价17.51亿元,起始楼板价约1.46万元/㎡。
住宅部分北邻河道、西接绿地,生态属性突出;商业部分为高铁上盖,须100%自持,要求与一期同步设计施工,考验整体开发协同能力。
尽管当前周边能级仍在提升中,但随着宝山高铁站建成,未来将形成集高铁、地铁、商业于一体的北部城市副中心,具备长线价值。
市场方面,2024年12月30日,金茂联合宝冶及杨行城建以31.16亿元摘得同单元13A-01、02aA-04地块,楼面价9058元/㎡。项目案名为“金茂棠前”,今年5月首开均价约4.9万元/㎡,目前三期新品均价5.385万元/㎡。六、松江区SJC10010单元14-01号地块:新城里的“容积率1.2”选项
地块容积率仅1.2,建面约3万方,起始总价6.56亿元,起始楼板价2.15万元/㎡。
地块周边水系环绕,紧邻五龙湖生态商务区,距松江万达广场约1公里,属于松江新城中生态环境与便利性兼备的低密住区。
适合打造洋房或叠院类产品,面向松江本地改善及高校教师、G60人才等客群,预计将吸引专注低密产品的房企参与。
市场方面,2025年5月9日,中国铁建在上海第四轮土拍中以24.7亿元竞得松江区SJC10006单元C03A-04号地块,溢价率20.42%,成交楼面价约25288元/㎡。项目案名为“中国铁建·西派云间”,近日首批房源取证,均价约5.4万元/㎡。
从六大地块的能级、稀缺性与市场热度来看,徐汇滨江宅地最有可能成为本轮“地王”。
核心逻辑在于:其一,地段无可复制——西岸核心区+地铁口+滨江资源,三重稀缺属性叠加;其二,价格倒挂明确——周边二手房价格已突破16万/㎡,与13.5万元/㎡的起始楼板价形成安全垫;其三,产品形态纯粹——1.5容积率+纯住宅属性,利于打造高端产品;其四,市场饥渴度高——徐汇滨江已长期断供,高净值客群积累充足。
静安苏河湾地块虽总价最高,但商办自持与文体配建拉高开发门槛,可能抑制溢价空间;其余地块或因能级、或因属性限制,难以冲击头把交椅。
补贴退坡拉动销量!特斯拉三季度全球交付49.7万辆创新高,中国市场环比增三成
豪门悲喜夜:切尔西2-1绝杀利物浦 拜仁3-0十连胜创纪录 皇马3-1
伊姐十一热推:电影《江南:在爱开始的地方等你》;电视剧《围猎》......
《编码物候》展览开幕 北京时代美术馆以科学艺术解读数字与生物交织的宇宙节律
简体中文
