您当前使用的浏览器版本过低,可能存在安全风险,建议升级浏览器,或者用以下浏览器浏览
外滩瑞府 (售楼处) 首页 - 外滩瑞府销售中心 - 环境 - 户型 - 外滩瑞府价格 - 地址 - 楼盘详情 - 配套 - 电话 - 交房时间 - 配套 - 电话 - 交房时间
外滩瑞府 (售楼处) 首页 - 外滩瑞府销售中心 - 环境 - 户型 - 外滩瑞府价格 - 地址 - 楼盘详情 - 配套 - 电话 - 交房时间 - 配套 - 电话 - 交房时间
外滩瑞府售楼处电话:【预约看房热线】外滩瑞府官方售楼处电线【售楼处电话/地址】外滩瑞府售楼处电话:【开发商认证】
如有问题欢迎来电咨询,预约来电尊享购房优惠,可预约案场内部销售人员,专业一对一热情服务,让您用专业眼光去买房。
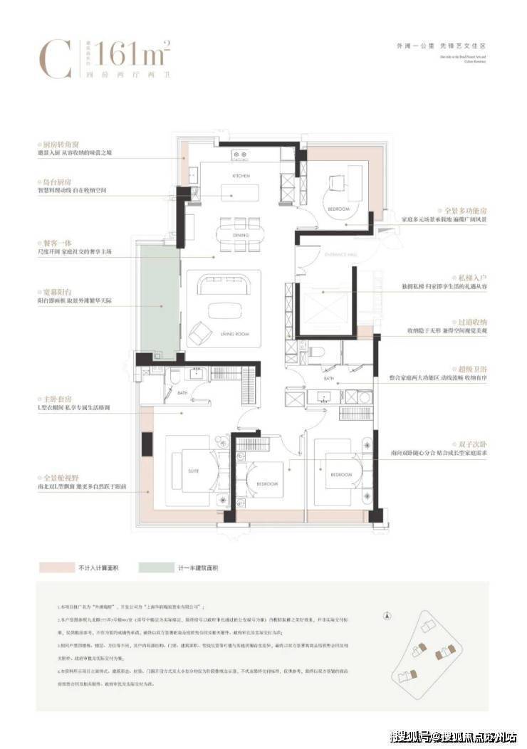
尤其约161㎡4房,2200-2850万总价,外滩-陆家嘴-北外滩世界级黄金三角不会再有这个价格!如果有一定不是四房!
外滩瑞府售楼处电话:【预约看房热线】外滩瑞府官方售楼处电线【售楼处电话/地址】外滩瑞府售楼处电话:【开发商认证】
当黄浦核心区房价冲破20万/㎡、北外滩即将站到20万/㎡、虹口下游板块已迈上16.6万/㎡,身处外滩1公里生活圈的外滩瑞府,首开均价仅14.78万/㎡,这样的价差本身就是“福利”。
值得关注的是,上周上海七批次土拍中,杨浦内中环宅地的楼板价已达约9.2万/㎡——这一价格,与外滩瑞府楼板价相当!
这意味:若现在犹豫,未来花同样成本,只能买到内中环新房;反过来想,如今入手外滩瑞府,相当于用“内中环即将到来的房价”,拿下外滩1公里的核心资产。
再直白点说:外滩、北外滩比外滩瑞府贵太多,虹口下游也比它高,就连内中环地价也追上了它,这样的价格安全垫,在内环难寻第二个。
14.78万/㎡买世界级黄金三角(外滩+陆家嘴+北外滩)的新房,这种机会,大概率就这一次,错过再也没有!
以大连路为起点沿黄浦江1公里画线,即世界级黄金三角最核心区域,如今在这片区域内,新房普遍20万/㎡上下,四房起步180㎡,四房门槛预计3500-4000万起。
这个范围内,只有外滩瑞府给予购房者2200-2850万一步到位4房的机会,后续大概率不会再有,因为这需要14.78万/㎡及约161㎡的精致面积段“双buff加持”。
毫不夸张地说,当下想在黄金三角核心区内,以2200万起的预算购入“舒适四房”,外滩瑞府是唯一选择。若有其他选项,要么不在黄金三角核心范围内,地段差一截;要么户型达不到“舒适四房”标准,难以满足家庭长期居住需求。
外滩瑞府售楼处电话:【预约看房热线】外滩瑞府官方售楼处电线【售楼处电话/地址】外滩瑞府售楼处电话:【开发商认证】
机遇三:买在上海城市更新“风暴眼”,坐享九龙路滨水空间+亿级风貌带红利!
真正的核心资产,永远与城市更新“风口”同频。就像新天地、苏河湾,凭借石库门的新生完成城市更新,房价走出了独立行情——外滩瑞府,正处在上海新一轮城市更新的“风暴眼”,这里的更新不是简单的界面升级,而是剑指“城市文化新名片”的重磅规划。
作为城市更新的关键落笔,外滩瑞府对九龙路滨水空间的打造,将从源头注入高规格美学基因——以法国塞纳河左岸为灵感,联动虹口港滨水资源,颠覆传统“归家路”属性,将九龙路主入口打造成打造“繁花似锦的艺术归家之路”。
有承载海派记忆的红砖艺术长廊,让行走成为与历史的对话;仪式感十足的迎宾树阵,让归家如穿自然仪仗;还有文化景墙、宠物友好花园、全龄疗愈花园等场景。这些设计并非孤立景观,而是融合“漫步、社交、休闲”功能,最终呈现“可停留、可互动、可欣赏”的滨水美学街区。
换句话说,这里的更新不只是“颜值”焕新,更是“内涵”艺术融入,未来业主下楼即享慢时光,邻里可轻松社交,甚至会像徐汇滨江般,成为全市Citywalk爱好者追捧的标志性滨水休闲地。
华润外滩瑞府官方电线㎡邻里风貌底盘堪称“王牌手笔”,串联大规模亿级风貌带。
优质风貌更新历来拥有重塑城市价值的强大力量——从新天地石库门突破传统,历经十余年迭代蜕变为国际潮流商业地标;到苏河湾耗时近10年推进更新,慎余里保留历史韵味,活化成现代商业空间;再到张园自2018年开启更新进程,至今仍在持续焕新,一跃成为上海顶流文化打卡地。
这些案例都证明:真正的风貌更新,不是短期的界面改造,而是能历经时间沉淀,从根本上革新生活方式、提升城市气质,最终成长为兼具潮流属性与文化深度的城市名片。
华润外滩瑞府官方电线㎡风貌底盘,正沿着这样的路径前行——它不仅是社区的延伸,更将成为代表外滩新气质的文化地标、网红打卡地。
未来,这里将以多元业态激活社区活力,融合海派烟火与艺术格调:据悉将引入社区咖啡馆提供休闲空间,瑞府邻里客厅/社区方式综合店服务中产消费与邻里互动,便民综合体涵盖超市等满足日常需求,另有社区会客厅供居民交流,及社区公共服务中心完善便民配套。
这些业态共同构筑便捷生活场景,让居民尽享舒适日常。对城市而言,这里不仅是界面的大焕新,更将凭借与周边亿级风貌带的联动效应,成为吸引全城目光的焦点。
更关键的是,外滩瑞府是这条亿级风貌带上少有的高层项目——既能浸润在海派风貌的烟火与文艺中,又能俯瞰黄金三角的璀璨景观,这样的“风貌+高层”组合,本身就是城市更新红利里的稀缺品。
外滩瑞府售楼处电话:【预约看房热线】外滩瑞府官方售楼处电线【售楼处电话/地址】外滩瑞府售楼处电话:【开发商认证】
在上海内环置业,“四房是刚需”已成共识:三口之家想接父母同住,需要独立卧室兼顾隐私;当下住内环三房的家庭,下次置换目标也必然是四房——这样的需求正在持续增长,市场却难寻适配的选择。
而外滩瑞府约161㎡四房,从供应缺口到价值潜力,每一点都直击购房者核心需求,堪称当前市场难得的“安全垫王炸户型”。
一方面,小面积紧凑户型难满足舒适需求:2024年至今,155㎡以下的四房(或三房)占比约38.5%,这类户型普遍存在功能区局促、尺度不足的问题,无法承载家庭长期居住的舒适度需求;
另一方面,大面积户型总价高不可攀:180㎡以上的四房占比竟超54%,但这类产品总价普遍3500万起步,将绝大多数改善型购房者拒之门外;
外滩瑞府售楼处电话:【预约看房热线】外滩瑞府官方售楼处电线【售楼处电话/地址】外滩瑞府售楼处电话:【开发商认证】
最关键的160㎡段——既能保证四房完整功能,又能兼顾每个空间尺度感的面积段,去年至今内环供应占比仅约1%,近乎断供状态。外滩瑞府约161㎡四房,正是今年内环首个该面积段的舒适四房,直接填补了市场空白。而且,当前内环地价持续高企,开发商更倾向于打造大户型,未来像160㎡段这样“控总价+保舒适”的四房,只会越来越少。
①、稀缺性执掌定价权:作为内环稀缺的161㎡舒适四房,项目在同类产品中几乎无竞品,具备“物以稀为贵”的价值属性,未来拥有更强的定价主动权;
②、面积适配+总价亲民,流通性更优:相比180㎡以上的高总价大户型,161㎡的面积段更符合主流改善家庭的需求,总价门槛更友好,在二手房市场上也能更快找到接手客群,流通性远超大面积产品。
再看项目的价值底盘:周边地王楼面价已达16.6-20万+/㎡,为项目价值筑下坚实“安全底”;而九龙路滨水空间+风貌底盘+161㎡四房稀缺性,共同为项目打开了价值上限——“低风险+高潜力”的组合,让这个户型成为内环置业的“稳健之选”。
一方面,内中环楼板价追上了外滩瑞府,我觉得项目后续楼栋不会是14.78万/㎡价格,这次首开福利价,很可能是入手该户型的“最低价窗口”;
另一方面,每次推售“微涨”已成常态,对于购房者来说,“能买首开就买首开”,已是降低置业成本的共识。
据了解,认购客户有大量来自陆家嘴、黄浦、徐汇等核心区域的精英人士。其客群并非局限区域内的改善群体,而是辐射到整个上海的财富圈层。这种广泛且高端的客群基础,赋予了项目更加强劲的未来潜力,也让其在市场中更具竞争力。
外滩瑞府售楼处电话:【预约看房热线】外滩瑞府官方售楼处电线【售楼处电话/地址】外滩瑞府售楼处电话:【开发商认证】
2号楼采光和视野优势出众,经专业建筑师测算,2号楼冬至日采光全部达5小时(计算时间段9:00-15:00),要知道,市中心高容积率下的新房,冬至日采光普遍仅为2小时左右;同时中高区可瞰三件套盛景。
外滩瑞府的珍贵,远不止“价格上错过不再”的稀缺机遇——作为华润置地上海的顶级标杆作品,它从根源上为购房者赋予顶豪级的公区质感、审美格调与仪式感。
要知道,公区不同于室内装修,后期再难耗费成本改造升级,而华润置地直接以“顶配标准”打造,将高端生活的基石牢牢奠定。
这份底气,从其顶级设计天团便可见一斑:GOA大象设计、渡边智昭、泰国TROP事务所、无间设计吴滨、李益中等,每一位都是行业内的顶尖力量,共同为外滩瑞府的高端基因保驾护航。
他以颠覆性思维突破传统局限,不仅匠心打造独立“室内外双幕水剧场”,更创造性地将高阶社交功能分散于四栋塔楼之下,规划出温莎廊吧、公啡花房、子恺乐园与GymCLUB四大主题泛会所,让社交与生活需求各得其所。
华润外滩瑞府官方电线号楼下的“温莎廊吧”,这片业主专属的私享天地,从细节处尽显高阶审美:复古砖红墙面勾勒出海派风情的典雅轮廓,叶脉纹大理石地面则如流水般铺展,让空间多了几分灵动的流动感。
入户大堂由吴滨设计,呈现“天圆地方”的效果,方正的线条勾勒出空间的规整与大气,与顶部的圆形形成刚柔并济的视觉平衡,让每一次归家都成为一场尊贵的礼遇。
除了高阶社交场景,日常细节中更藏着顶豪的贴心。“无感通行”系统通过人脸识别联动单元门、自动呼梯,无需手动操作,尽显从容;电梯内专属设置的“宠物按钮”,精准关照养宠家庭需求,让带宠物出行告别“手忙脚乱”。
这些设计绝非流于表面的“营销噱头”,而是真正读懂生活需求的“贴心考量”,让尊贵感融入每一个日常瞬间。
不止于建筑与功能,社区内部的景观同样堪称艺术杰作。外滩瑞府特邀国际景观大师PokKobkongsanti打造,将其对印象派光影的深刻理解,化作可步入、可触摸的“印象派自然秘境”。六大主题花园错落分布,贯穿全域的风雨连廊串联起四季景致,共同演绎出一座流动的艺术生活范本
在我看来,真正的改善,不该是少数房间的独享升级,而应让每个家庭成员都能平等享有舒适尺度与开阔视野。外滩瑞府摒弃了传统户型中明显的主次卧之分,无论是父母的休憩空间,还是孩子的成长天地,都拥有同等优质的居住体验。
厨房、餐厅、客厅与阳台相连通,形成联动空间,尺度感阔绰。于二胎家庭,这里足以让孩子从容玩耍,也能同时容纳子女弹琴、母亲做手工、父亲办公,满足家人多样化的活动需求。
三卧朝南,且几乎等面宽处理,因此不是“3+1”,而是标准4房,让阳光和舒适尺度成为给予每个人的平等馈赠。
161户型厨房台面非常宽,你可以放置大型厨电,甚至摆上花花草草装扮厨房。
外滩瑞府售楼处电话:【售楼中心热线】外滩瑞府营销中心热线,楼盘项目全面介绍,本电话为开发商提供线上预约售楼电话,楼盘项目全面介绍(包含楼盘简介,均价,房价,现房,期房,别墅,叠墅,大平层,价格,楼盘地址,户型图,交通规划,备案价,备案名,项目配套,样板间,开盘时间,认筹时间,楼盘详情,售楼处电话,最新消息,最新详情,周边配套,一房一价,最新进展等详情咨询)楼盘详情丨价格丨更多优惠丨机不可失丨欢迎致电丨诚邀品鉴!售楼处位置丨特价房丨工抵房丨剩余房源丨户型图丨最新消息丨免责声明:将文章内容综合来源于网络、只作分享,版权归原作者所有!!如有侵权,请联系我们,我们第一时间处理如有问题欢迎来电咨询,专业一对一热情服务,让您用专业眼光去买房。如果您想了解更多楼盘详情,欢迎提前预约拨打外滩瑞府售楼处电线 新政效应观察:外环外冷热分化显著,环沪楼市承压,市场机遇与挑战交织
北京 “8・8 新政” 的阶段性成果,为上海 825 新政的落地提供了极具价值的参考样本。据中指研究院数据,北京新政实施后(8 月 9 日 - 9 月 7 日),新建商品住宅日均成交面积达 1.26 万平方米,较 7 月日均增长 7%;克而瑞的统计进一步显示,8 月北京新建商品住宅成交 2733 套,环比提升 6.2%,清晰显现出政策对市场活跃度的提振作用。
多位中介反馈:“尽管少数房东尝试小幅提价,但绝大多数业主更倾向降价促成交易,只想抓住新政窗口期尽快变现。” 中介自身也在积极推动成交,“只要客户诉求不过分,基本会借着新政热度尽力协调双方达成一致”。
这种 “表面热闹” 背后,数据揭示了市场的真实压力:上海二手房挂牌价已连续七个月呈下跌态势,截至 9 月 13 日(安居客统计),9 月全市二手房均价降至 46738 元 / 平方米,环比进一步下跌 0.79%,同比跌幅更是达到 9.17%。区域分化尤为明显,嘉定、松江、崇明三区仅微涨 0.10%-5.97%,而金山区则以 1.94% 的跌幅成为外环外领跌区域。
尽管多个外环外楼盘对外宣称 “24 小时营业” 或 “即将收回购房优惠”,但实际去化依旧依靠大幅折扣促销。据凤凰网房产调查,松江国贸鹭原、嘉定大华梧桐樾、奉贤大名城映雨江南等项目,除公开的 95 折优惠外,还通过开发商直接返现(最高 30 至 40 万元)、中介返佣等隐性折扣吸引购房者,部分房源实际成交价相当于原定价的 7-8 折。
核心区(内环内)政策维持不变:上海户籍家庭限购 2 套住房,非上海户籍家庭需缴纳 3 年社保方可购买 1 套。严格的准入限制有效抑制了投机需求,市场以自住和长期资产配置为主导,房价抗跌性较强。地段价值、成熟的配套设施(如优质学区、大型商圈)与有限的供应总量,共同支撑了核心区房产的保值属性,未来价格预计将保持平稳,或随经济基本面缓慢波动。
环沪楼市兴起的核心逻辑,是承接上海外溢的购房需求。早期上海限购政策严格,大量不具备上海购房资格的刚需群体,不得不将目光转向环沪区域。但随着上海外环外限购大幅放开,环沪失去了 “不限购” 和 “低总价” 两大核心竞争力,无论是刚需群体还是投资客,都出现向上海回流的趋势,环沪市场正面临近十年来最严峻的挑战。
声明:本文由入驻焦点开放平台的作者撰写,除焦点官方账号外,观点仅代表作者本人,不代表焦点立场。
保利天汇星湖是由保利苏通实业发展有限公司开发的品质住宅项目,整个小区规划了264户,总建面积约6.27万方,容积率约2.0,绿地率约35%。项目围绕领域私享、美学精奢、自然自在、居所定制等四大主张进行产品创新
蓝城湖畔江南里:宋风合院遇见民国大平层,苏州湾芯诗意栖居
蓝城湖畔江南里,坐落在苏州湾芯,是一个融合了宋风合院与民国风大平层的高端住宅社区。蓝城湖畔江南里作为区域内的高端住宅项目,不仅满足了人们对高品质生活的追求,更承载了东方美学的传承与创新。项目周边的配套设施
在这样的大背景下,位于苏州高新区核心地段的狮子山澜庭/院,凭借其得天独厚的地理位置和优质教育资源,成为了许多家庭的理想选择。项目分为东西两区,东区是狮子山澜庭,共有1-26幢;西区是狮子山澜院,有27-37幢
◎丰盛自然:项目周边五水汇聚,有苏州阳澄湖景观绿道、蠡塘河生态景观廊道、济民塘复合发展廊道、学府公园、府南公园等自然景观,让您在繁华都市中也能享受自然之美。地段优势:五潨泾・澄院位于苏州相城区,相城区可是苏州
绿城沁百合凭借其优越的地理位置、完善的配套设施、绿城中国强大的品牌实力以及精心设计的户型,成为奥体板块的宜居之选。随着苏州奥体板块的持续发展,区域价值不断提升,绿城中国强大的品牌实力和产品力也为项目提供了坚实
苏河湾一号官方首页网站-苏河湾一号售楼处电话-苏河湾一号楼盘详情-交房时间-地址-最新房价户型图-小区环境-楼盘详情-交房时间-周边配套-售楼处电线
苏河湾一号售楼处(2025苏河湾一号)首页网站-苏河湾一号楼盘价格详情-户型配套
云悦澜庭首页网站-2025最新房价+户型图+小区环境+配套设施完善 交通便利
上海绿宝园翡梵(售楼处)首页网站-上海2025绿宝园翡梵销售中心(营销中心)-上海绿宝园翡梵楼盘欢迎您-小区环境-户型-价格-地址-楼盘详情-周边配套-交付时间
政策利好!紫金翡丽甲第:金鸡湖东稀缺洋房,大师设计豪宅标杆
简体中文
