尊龙(凯时中国)-官方网站

外滩瑞府网站-外滩瑞府售楼处电话-华润楼盘详情地址—尊龙凯时官方网站
语言选择: 简体中文 简体中文 您好!欢迎访问尊龙凯时官方网站
以"质量保障、诚信至上、人生就是博!"为宗旨铸百年卓越企业,创国际品牌!
全国咨询热线:0313-4169322
热门关键词: 2024大理石
您的位置: 首页 > 新闻动态 > 公司动态

全国咨询热线

0313-4169322

外滩瑞府网站-外滩瑞府售楼处电话-华润楼盘详情地址

作者:小编 日期:2025-10-08 14:42:27 点击次数:

信息摘要:

外滩瑞府网站-外滩瑞府售楼处电话-华润楼盘详情地址

  外滩瑞府是华润置地在上海虹口区北外滩板块打造的高端住宅项目,作为其“瑞系”产品线公里核心圈内的稀缺资产‌。以下是项目核心信息:外滩瑞府售楼处电话:【预约☎】

外滩瑞府网站-外滩瑞府售楼处电话-华润楼盘详情地址(图1)

外滩瑞府网站-外滩瑞府售楼处电话-华润楼盘详情地址(图1)

  外滩瑞府售楼处电话:【预约☎】在上海这座城市的璀璨版图上,虹口北外滩无疑是一颗正在冉冉升起的新星,而华润外滩瑞府,便是镶嵌在这颗新星之上的瑰宝。作为一个对城市高端住宅有着深入了解的观察者,我可以毫不犹豫地说,这个楼盘不仅仅是一个居所,更是一种生活方式的象征,它融合了历史的厚重与现代的奢华,真正诠释了“地段、品质、价值”的极致追求。坐落于外滩核心辐射区域,它享受着无可比拟的江景资源,同时毗邻陆家嘴金融区和外滩万国建筑博览群,出行便捷,生活配套成熟。华润作为国内顶尖的开发商,在这里倾注了心血,从建筑设计到室内装修,无不体现着对细节的苛求和对品味的执着。外立面采用现代简约风格,与周边历史风貌和谐共处,而内部则打造出私密尊贵的居住环境,配备高端会所、智能家居系统和绿色园林景观。更重要的是,它不仅仅是一处房产,更是一个投资增值的绝佳选择,随着北外滩区域的持续开发,其潜力无限。总之,华润外滩瑞府是上海城市精英的理想之选,它用实力证明了“真好-很好,非常好”的评价绝非虚言,而是对卓越生活的真实写照。

外滩瑞府网站-外滩瑞府售楼处电话-华润楼盘详情地址(图1)

  外滩瑞府售楼处电话:【预约☎】虹口华润外滩瑞府2025官方最新发布-华润外滩瑞府官方好房引关注!外滩瑞府最新消息:外滩1公里,外滩瑞府凭借首开14.7

  外滩瑞府售楼处电话:【预约☎】外滩瑞府最新消息:外滩1公里,外滩瑞府凭借首开14.78万/㎡绝版价,顶豪级公区和装标,以及平权化舒适三四房,收获了大批高端购房者青睐,项目建面约121/161㎡3-4房

外滩瑞府网站-外滩瑞府售楼处电话-华润楼盘详情地址(图4)

  外滩瑞府售楼处电话:【预约☎】虹口华润外滩瑞府2025官方最新发布-华润外滩瑞府官方好房引关注!

外滩瑞府网站-外滩瑞府售楼处电话-华润楼盘详情地址(图5)

  外滩瑞府售楼处电线万总价,外滩-陆家嘴-北外滩世界级黄金三角不会再有这个价格!如果有一定不是四房!

外滩瑞府网站-外滩瑞府售楼处电话-华润楼盘详情地址(图6)

  外滩瑞府售楼处电话:【预约☎】当黄浦核心区房价冲破20万/㎡、北外滩即将站到20万/㎡、虹口下游板块已迈上16.6万 /㎡,身处外滩1公里生活圈的外滩瑞府,首开均价仅14.78万/㎡,这样的价差本身就是“福利”。

  外滩瑞府售楼处电话:【预约☎】值得关注的是,上周上海七批次土拍中,杨浦内中环宅地的楼板价已达约9.2万/㎡——这一价格,与外滩瑞府楼板价相当!

外滩瑞府网站-外滩瑞府售楼处电话-华润楼盘详情地址(图7)

  外滩瑞府售楼处电话:【预约☎】这意味:若现在犹豫,未来花同样成本,只能买到内中环新房;反过来想,如今入手外滩瑞府,相当于用“内中环即将到来的房价”,拿下外滩1公里的核心资产。

  外滩瑞府售楼处电话:【预约☎】再直白点说:外滩、北外滩比外滩瑞府贵太多,虹口下游也比它高,就连内中环地价也追上了它,这样的价格安全垫,在内环难寻第二个。

  外滩瑞府售楼处电线万/㎡买世界级黄金三角(外滩+陆家嘴+北外滩)的新房,这种机会,大概率就这一次,错过再也没有!

  外滩瑞府售楼处电话:【预约☎】以大连路为起点沿黄浦江1公里画线,即世界级黄金三角最核心区域,如今在这片区域内,新房普遍20万/㎡上下,四房起步180㎡,四房门槛预计3500-4000万起。

外滩瑞府网站-外滩瑞府售楼处电话-华润楼盘详情地址(图1)

  外滩瑞府售楼处电话:【预约☎】这个范围内,只有外滩瑞府给予购房者2200-2850万一步到位4房的机会,后续大概率不会再有,因为这需要14.78万/㎡及约161㎡的精致面积段“双buff加持”。

  外滩瑞府售楼处电话:【预约☎】毫不夸张地说,当下想在黄金三角核心区内,以2200万起的预算购入“舒适四房”,外滩瑞府是唯一选择。若有其他选项,要么不在黄金三角核心范围内,地段差一截;要么户型达不到“舒适四房”标准,难以满足家庭长期居住需求。

外滩瑞府网站-外滩瑞府售楼处电话-华润楼盘详情地址(图9)

  机遇三:买在上海城市更新“风暴眼”,坐享九龙路滨水空间+亿级风貌带红利!

  外滩瑞府售楼处电话:【预约☎】真正的核心资产,永远与城市更新“风口”同频。就像新天地、苏河湾,凭借石库门的新生完成城市更新,房价走出了独立行情——外滩瑞府,正处在上海新一轮城市更新的 “风暴眼”,这里的更新不是简单的界面升级,而是剑指“城市文化新名片”的重磅规划。

  外滩瑞府售楼处电话:【预约☎】作为城市更新的关键落笔,外滩瑞府对九龙路滨水空间的打造,将从源头注入高规格美学基因——以法国塞纳河左岸为灵感,联动虹口港滨水资源,颠覆传统“归家路”属性,将九龙路主入口打造成打造“繁花似锦的艺术归家之路”。

外滩瑞府网站-外滩瑞府售楼处电话-华润楼盘详情地址(图10)

  外滩瑞府售楼处电话:【预约☎】有承载海派记忆的红砖艺术长廊,让行走成为与历史的对话;仪式感十足的迎宾树阵,让归家如穿自然仪仗;还有文化景墙、宠物友好花园、全龄疗愈花园等场景。这些设计并非孤立景观,而是融合“漫步、社交、休闲”功能,最终呈现“可停留、可互动、可欣赏”的滨水美学街区。

  外滩瑞府售楼处电话:【预约☎】换句话说,这里的更新不只是“颜值”焕新,更是“内涵”艺术融入,未来业主下楼即享慢时光,邻里可轻松社交,甚至会像徐汇滨江般,成为全市Citywalk爱好者追捧的标志性滨水休闲地。

外滩瑞府网站-外滩瑞府售楼处电话-华润楼盘详情地址(图11)

  外滩瑞府售楼处电话:【预约☎】优质风貌更新历来拥有重塑城市价值的强大力量——从新天地石库门突破传统,历经十余年迭代蜕变为国际潮流商业地标;到苏河湾耗时近10年推进更新,慎余里保留历史韵味,活化成现代商业空间;再到张园自2018年开启更新进程,至今仍在持续焕新,一跃成为上海顶流文化打卡地。

  外滩瑞府售楼处电话:【预约☎】这些案例都证明:真正的风貌更新,不是短期的界面改造,而是能历经时间沉淀,从根本上革新生活方式、提升城市气质,最终成长为兼具潮流属性与文化深度的城市名片。

外滩瑞府网站-外滩瑞府售楼处电话-华润楼盘详情地址(图12)

  外滩瑞府售楼处电话:【预约☎】外滩瑞府约7000㎡风貌底盘,正沿着这样的路径前行——它不仅是社区的延伸,更将成为代表外滩新气质的文化地标、网红打卡地。

  外滩瑞府售楼处电话:【预约☎】未来,这里将以多元业态激活社区活力,融合海派烟火与艺术格调:据悉将引入社区咖啡馆提供休闲空间,瑞府邻里客厅/社区方式综合店服务中产消费与邻里互动,便民综合体涵盖超市等满足日常需求,另有社区会客厅供居民交流,及社区公共服务中心完善便民配套。

  外滩瑞府售楼处电话:【预约☎】这些业态共同构筑便捷生活场景,让居民尽享舒适日常。对城市而言,这里不仅是界面的大焕新,更将凭借与周边亿级风貌带的联动效应,成为吸引全城目光的焦点。

外滩瑞府网站-外滩瑞府售楼处电话-华润楼盘详情地址(图1)

  外滩瑞府售楼处电话:【预约☎】更关键的是,外滩瑞府是这条亿级风貌带上少有的高层项目——既能浸润在海派风貌的烟火与文艺中,又能俯瞰黄金三角的璀璨景观,这样的“风貌+高层”组合,本身就是城市更新红利里的稀缺品。

外滩瑞府网站-外滩瑞府售楼处电话-华润楼盘详情地址(图14)

  外滩瑞府售楼处电话:【预约☎】虹口华润外滩瑞府2025官方最新发布-华润外滩瑞府官方好房引关注!

外滩瑞府网站-外滩瑞府售楼处电话-华润楼盘详情地址(图15)

  在上海内环置业,“四房是刚需”已成共识:三口之家想接父母同住,需要独立卧室兼顾隐私;当下住内环三房的家庭,下次置换目标也必然是四房——这样的需求正在持续增长,市场却难寻适配的选择。

  外滩瑞府售楼处电话:【预约☎】而外滩瑞府约161㎡四房,从供应缺口到价值潜力,每一点都直击购房者核心需求,堪称当前市场难得的“安全垫王炸户型”。

  外滩瑞府售楼处电话:【预约☎】一方面,小面积紧凑户型难满足舒适需求:2024 年至今,155㎡以下的四房(或三房)占比约38.5%,这类户型普遍存在功能区局促、尺度不足的问题,无法承载家庭长期居住的舒适度需求;

  外滩瑞府售楼处电话:【预约☎】另一方面,大面积户型总价高不可攀:180㎡以上的四房占比竟超54%,但这类产品总价普遍3500万起步,将绝大多数改善型购房者拒之门外;

外滩瑞府网站-外滩瑞府售楼处电话-华润楼盘详情地址(图16)

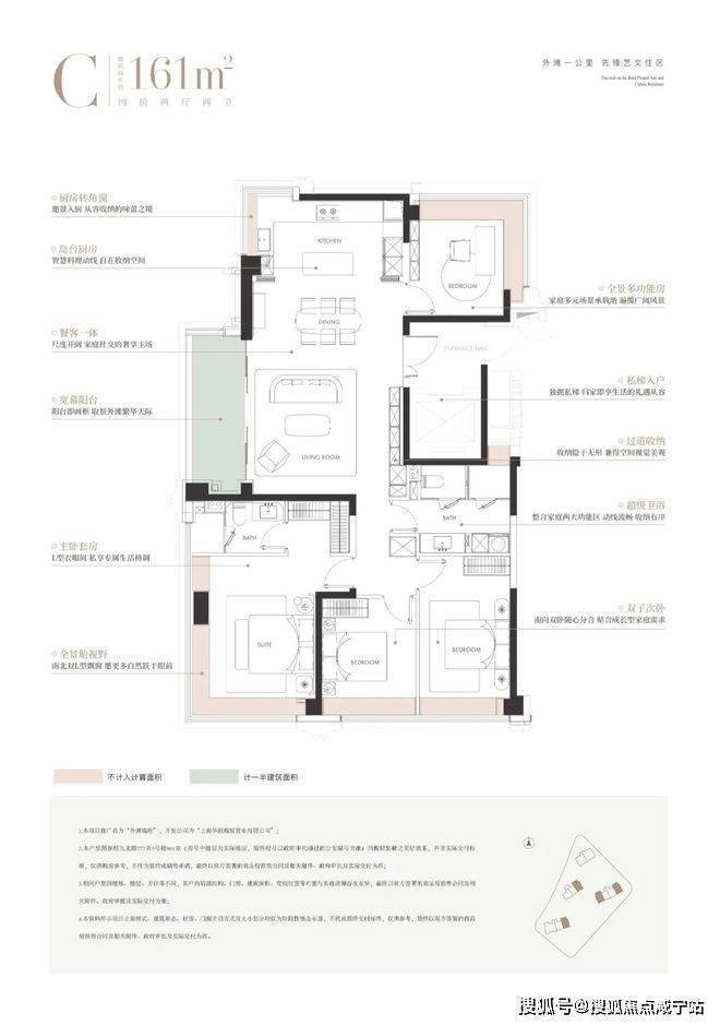
  外滩瑞府售楼处电线㎡段——既能保证四房完整功能,又能兼顾每个空间尺度感的面积段,去年至今内环供应占比仅约1%,近乎断供状态。外滩瑞府约161㎡四房,正是今年内环首个该面积段的舒适四房,直接填补了市场空白。

  外滩瑞府售楼处电话:【预约☎】而且,当前内环地价持续高企,开发商更倾向于打造大户型,未来像160㎡段这样“控总价+保舒适”的四房,只会越来越少。外滩瑞府售楼处电线、稀缺性+强流通性,成就“安全垫王炸户型”

  ①、稀缺性执掌定价权:作为内环稀缺的161㎡舒适四房,项目在同类产品中几乎无竞品,具备“物以稀为贵”的价值属性,未来拥有更强的定价主动权;外滩瑞府售楼处电话:【预约☎】

  ②、面积适配+总价亲民,流通性更优:相比180㎡以上的高总价大户型,161㎡的面积段更符合主流改善家庭的需求,总价门槛更友好,在二手房市场上也能更快找到接手客群,流通性远超大面积产品。

  外滩瑞府售楼处电话:【预约☎】再看项目的价值底盘:周边地王楼面价已达16.6-20万+/㎡,为项目价值筑下坚实“安全底”;而九龙路滨水空间+风貌底盘+161㎡四房稀缺性,共同为项目打开了价值上限——“低风险+高潜力”的组合,让这个户型成为内环置业的“稳健之选”。

外滩瑞府网站-外滩瑞府售楼处电话-华润楼盘详情地址(图17)

  外滩瑞府售楼处电话:【预约☎】一方面,内中环楼板价追上了外滩瑞府,我觉得项目后续楼栋不会是14.78万/㎡价格,这次首开福利价,很可能是入手该户型的“最低价窗口”;

  外滩瑞府售楼处电话:【预约☎】另一方面,每次推售“微涨”已成常态,对于购房者来说,“能买首开就买首开”,已是降低置业成本的共识。

  外滩瑞府售楼处电话:【预约☎】据了解,认购客户有大量来自陆家嘴、黄浦、徐汇等核心区域的精英人士。其客群并非局限区域内的改善群体,而是辐射到整个上海的财富圈层。这种广泛且高端的客群基础,赋予了项目更加强劲的未来潜力,也让其在市场中更具竞争力。

外滩瑞府网站-外滩瑞府售楼处电话-华润楼盘详情地址(图18)

  外滩瑞府售楼处电线号楼采光和视野优势出众,经专业建筑师测算,2号楼冬至日采光全部达5小时(计算时间段9:00-15:00),要知道,市中心高容积率下的新房,冬至日采光普遍仅为2小时左右;同时中高区可瞰三件套盛景。

外滩瑞府网站-外滩瑞府售楼处电话-华润楼盘详情地址(图19)

外滩瑞府网站-外滩瑞府售楼处电话-华润楼盘详情地址(图20)

  外滩瑞府售楼处电话:【预约☎】外滩瑞府的珍贵,远不止“价格上错过不再”的稀缺机遇——作为华润置地上海的顶级标杆作品,它从根源上为购房者赋予顶豪级的公区质感、审美格调与仪式感。

  外滩瑞府售楼处电话:【预约☎】要知道,公区不同于室内装修,后期再难耗费成本改造升级,而华润置地直接以“顶配标准”打造,将高端生活的基石牢牢奠定。

  外滩瑞府售楼处电话:【预约☎】这份底气,从其顶级设计天团便可见一斑:GOA 大象设计、渡边智昭、泰国TROP事务所、无间设计吴滨、李益中等,每一位都是行业内的顶尖力量,共同为外滩瑞府的高端基因保驾护航。

外滩瑞府网站-外滩瑞府售楼处电话-华润楼盘详情地址(图21)

  外滩瑞府售楼处电话:【预约☎】他以颠覆性思维突破传统局限,不仅匠心打造独立 “室内外双幕水剧场”,更创造性地将高阶社交功能分散于四栋塔楼之下,规划出温莎廊吧、公啡花房、子恺乐园与Gym CLUB四大主题泛会所,让社交与生活需求各得其所。

外滩瑞府网站-外滩瑞府售楼处电话-华润楼盘详情地址(图22)

  比如首开2号楼下的“温莎廊吧”,这片业主专属的私享天地,从细节处尽显高阶审外滩瑞府售楼处电话:【预约☎】美:复古砖红墙面勾勒出海派风情的典雅轮廓,叶脉纹大理石地面则如流水般铺展,让空间多了几分灵动的流动感。

外滩瑞府网站-外滩瑞府售楼处电话-华润楼盘详情地址(图23)

外滩瑞府网站-外滩瑞府售楼处电话-华润楼盘详情地址(图24)

  外滩瑞府售楼处电话:【预约☎】入户大堂由吴滨设计,呈现“天圆地方”的效果,方正的线条勾勒出空间的规整与大气,与顶部的圆形形成刚柔并济的视觉平衡,让每一次归家都成为一场尊贵的礼遇。

外滩瑞府网站-外滩瑞府售楼处电话-华润楼盘详情地址(图25)

外滩瑞府网站-外滩瑞府售楼处电话-华润楼盘详情地址(图26)

  外滩瑞府售楼处电话:【预约☎】除了高阶社交场景,日常细节中更藏着顶豪的贴心。“无感通行”系统通过人脸识别联动单元门、自动呼梯,无需手动操作,尽显从容;电梯内专属设置的“宠物按钮”,精准关照养宠家庭需求,让带宠物出行告别“手忙脚乱”。

  外滩瑞府售楼处电话:【预约☎】这些设计绝非流于表面的“营销噱头”,而是真正读懂生活需求的“贴心考量”,让尊贵感融入每一个日常瞬间。

外滩瑞府网站-外滩瑞府售楼处电话-华润楼盘详情地址(图27)

  外滩瑞府售楼处电话:【预约☎】不止于建筑与功能,社区内部的景观同样堪称艺术杰作。外滩瑞府特邀国际景观大师 Pok Kobkongsanti打造,将其对印象派光影的深刻理解,化作可步入、可触摸的“印象派自然秘境”。六大主题花园错落分布,贯穿全域的风雨连廊串联起四季景致,共同演绎出一座流动的艺术生活范本

外滩瑞府网站-外滩瑞府售楼处电话-华润楼盘详情地址(图28)

外滩瑞府网站-外滩瑞府售楼处电话-华润楼盘详情地址(图29)

  外滩瑞府售楼处电话:【预约☎】在我看来,真正的改善,不该是少数房间的独享升级,而应让每个家庭成员都能平等享有舒适尺度与开阔视野。外滩瑞府摒弃了传统户型中明显的主次卧之分,无论是父母的休憩空间,还是孩子的成长天地,都拥有同等优质的居住体验。

外滩瑞府网站-外滩瑞府售楼处电话-华润楼盘详情地址(图30)

  外滩瑞府售楼处电话:【预约☎】这是市面少有的360°视野的户型,全屋四个转角窗(北卧、厨房、阳台、主卧),不管你在哪个房间,都能欣赏城市景观。

  尊龙凯时 人生就是博!

  外滩瑞府售楼处电话:【预约☎】厨房、餐厅、客厅与阳台相连通,形成联动空间,尺度感阔绰。于二胎家庭,这里足以让孩子从容玩耍,也能同时容纳子女弹琴、母亲做手工、父亲办公,满足家人多样化的活动需求。

外滩瑞府网站-外滩瑞府售楼处电话-华润楼盘详情地址(图31)

  外滩瑞府售楼处电话:【预约☎】三卧朝南,且几乎等面宽处理,因此不是“3+1”,而是标准4房,让阳光和舒适尺度成为给予每个人的平等馈赠。

外滩瑞府网站-外滩瑞府售楼处电话-华润楼盘详情地址(图32)

外滩瑞府网站-外滩瑞府售楼处电话-华润楼盘详情地址(图33)

  外滩瑞府售楼处电话:【预约☎】公卫打造独特的四分离系统,实现独立洗漱台、卫生间、淋浴间、洗衣区互不打扰,将酒店化体验引入住宅。

外滩瑞府网站-外滩瑞府售楼处电话-华润楼盘详情地址(图34)

外滩瑞府网站-外滩瑞府售楼处电话-华润楼盘详情地址(图35)

  外滩瑞府售楼处电话:【预约☎】装修标准上,外滩瑞府全部选用国际一线大牌:厨房选用嘉格纳高端厨电,包含洗碗机、双开门冰箱、蒸烤一体机、油烟机、燃气灶,还奢侈的选用了316L不锈钢水管(一般都是304)。

  尊龙凯时官方网站 凯时中国

  外滩瑞府售楼处电线户型厨房台面非常宽,你可以放置大型厨电,甚至摆上花花草草装扮厨房。

外滩瑞府网站-外滩瑞府售楼处电话-华润楼盘详情地址(图36)

  外滩瑞府售楼处电话:【预约☎】超大尺度的中西岛台,既符合中式烹饪的实用逻辑(预留足够操作台面),又能承载西式社交(朋友小聚时在岛台品酒聊天),让厨房从“单一做饭空间”变成“生活场景发生器”。

外滩瑞府网站-外滩瑞府售楼处电话-华润楼盘详情地址(图37)

  外滩瑞府售楼处电话:【预约☎】博洛尼整体橱柜(或同等品牌)用了转角拉篮、下拉式设计,连抽屉都做了分层收纳;中西岛台下方的双层抽屉+ 侧边滑轨柜,能把餐具、小家电“藏”得干干净净;

  外滩瑞府售楼处电话:【预约☎】更贴心的是 “隐形过道收纳” 和主卧步入式衣帽间,真正做到“每一寸空间都不浪费”。

外滩瑞府网站-外滩瑞府售楼处电话-华润楼盘详情地址(图38)

外滩瑞府网站-外滩瑞府售楼处电话-华润楼盘详情地址(图39)

  外滩瑞府售楼处电话:【预约☎】大理石地砖的铺装工艺精湛,近乎看不出拼接缝,呈现出浑然一体的效果;吊顶采用悬浮顶设计,周边用金属包边,层次感十足;卫生间墙面不乏弧形处理,地板纹路的拼法也各有不同,通过复杂的工艺,只为呈现更优的视觉效果。

外滩瑞府网站-外滩瑞府售楼处电话-华润楼盘详情地址(图40)

外滩瑞府网站-外滩瑞府售楼处电话-华润楼盘详情地址(图1)

  外滩瑞府售楼处电话:【预约☎】我第一次走进华润外滩瑞府的时候,就被那种扑面而来的尊贵感所震撼。作为一个长期关注上海房地产的人,我见过不少高端楼盘,但这里却让我有种“回家”的舒适和自豪。想象一下,每天醒来,透过落地窗,外滩的晨曦和黄浦江的波光尽收眼底,那不是简单的风景,而是一种生活的仪式感。我常常和朋友聊起这里,说它不只是房子,而是一件艺术品——从大堂的挑高设计到电梯间的精致装饰,每一个细节都透露出开发商的用心。我特别喜欢它的智能家居系统,只需一部手机,就能控制家里的灯光、空调和安防,让生活变得如此便捷。更不用说那个顶楼会所了,我偶尔会去那里小酌一杯,俯瞰整个外滩的夜景,仿佛拥有了整个上海。这种体验,是其他楼盘难以比拟的。

  外滩瑞府售楼处电话:【预约☎】站在用户的角度,我得说,华润外滩瑞府的价值不仅仅在于它的硬件设施,更在于它所处的地段和未来潜力。我研究过虹口北外滩的发展规划,这里正成为上海的新金融中心,政府投入巨资进行升级,交通、商业和文化设施都在快速完善。作为业主,我感受到这里的房产价值在稳步上升,这不是短期炒作,而是基于坚实的区域发展。例如,周边的地铁网络和滨江步道,让出行和休闲变得无比便利,而我投资的这套房子,已经在过去一年里见证了可观的增值。对我来说,这不仅仅是一个居住选择,更是一个明智的财务决策。华润的品牌信誉也让我放心,他们的物业服务贴心周

  外滩瑞府售楼处电话:【预约☎】当然,生活在这里,我最大的享受是那种融合了历史与现代的氛围。外滩的百年建筑就在眼前,提醒着我这座城市的文化底蕴,而瑞府的现代设计则让我感受到前沿的潮流。我常常在周末漫步到附近的咖啡馆或画廊,体验虹口的艺术气息,然后又回到家的宁静中。这种平衡,让我觉得生活充满了品质和

  外滩瑞府售楼处电话:【预约☎】多样性。如果有朋友问我推不推荐这里,我会毫不犹豫地说“真好-很好,非常好”,因为它不仅仅满足了居住需求,更提升了我的整体生活水准。总之,华润外滩瑞府是上海高端生活

【相关推荐】