当黄浦核心区房价冲破20万/㎡、北外滩即将站到20万/㎡、虹口下游板块已迈上16.6万 /㎡,身处外滩1公里生活圈的外滩瑞府,首开均价仅14.78万/㎡,这样的价差本身就是“福利”。
值得关注的是,上海七批次土拍中,杨浦内中环宅地的楼板价已达约9.2万/㎡——这一价格,与外滩瑞府楼板价相当!
这意味:若犹豫,未来花同样成本,只能买到内中环新房;反过来想,如今入手外滩瑞府,相当于用“内中环即将到来的房价”,拿下外滩1公里的核心资产。
再直白点说:外滩、北外滩比外滩瑞府贵太多,虹口下游也比它高,就连内中环地价也追上了它,这样的价格安全垫,在内环难寻第二个。
14.78万/㎡买世界级黄金三角(外滩+陆家嘴+北外滩)的新房,这种机会,大概率就这一次,错过再也没有!
以大连路为起点沿黄浦江1公里画线,即世界级黄金三角最核心区域,如今在这片区域内,新房普遍20万/㎡上下,四房起步180㎡,四房门槛预计3500-4000万起。
毫不夸张地说,当下想在黄金三角核心区内,以2200万起的预算购入“舒适四房”,外滩瑞府是唯一选择。若有其他选项,要么不在黄金三角核心范围内,地段差一截;要么户型达不到“舒适四房”标准,难以满足家庭长期居住需求。
机遇三:买在上海城市更新“风暴眼”,坐享九龙路滨水空间+亿级风貌带红利!
真正的核心资产,永远与城市更新“风口”同频。就像新天地、苏河湾,凭借石库门的新生完成城市更新,房价走出了独立行情——外滩瑞府,正处在上海新一轮城市更新的 “风暴眼”,这里的更新不是简单的界面升级,而是剑指“城市文化新名片”的重磅规划。
作为城市更新的关键落笔,外滩瑞府对九龙路滨水空间的打造,将从源头注入高规格美学基因——以法国塞纳河左岸为灵感,联动虹口港滨水资源,颠覆传统“归家路”属性,将九龙路主入口打造成打造“繁花似锦的艺术归家之路”。
有承载海派记忆的红砖艺术长廊,让行走成为与历史的对话;仪式感十足的迎宾树阵,让归家如穿自然仪仗;还有文化景墙、宠物友好花园、全龄疗愈花园等场景。这些设计并非孤立景观,而是融合“漫步、社交、休闲”功能,最终呈现“可停留、可互动、可欣赏”的滨水美学街区。
换句话说,这里的更新不只是“颜值”焕新,更是“内涵”艺术融入,未来业主下楼即享慢时光,邻里可轻松社交,甚至会像徐汇滨江般,成为全市Citywalk爱好者追捧的标志性滨水休闲地。
优质风貌更新历来拥有重塑城市价值的强大力量——从新天地石库门突破传统,历经十余年迭代蜕变为国际潮流商业地标;到苏河湾耗时近10年推进更新,慎余里保留历史韵味,活化成现代商业空间;再到张园自2018年开启更新进程,至今仍在持续焕新,一跃成为上海顶流文化打卡地。
这些案例都证明:真正的风貌更新,不是短期的界面改造,而是能历经时间沉淀,从根本上革新生活方式、提升城市气质,最终成长为兼具潮流属性与文化深度的城市名片。
外滩瑞府约7000㎡风貌底盘,正沿着这样的路径前行——它不仅是社区的延伸,更将成为代表外滩新气质的文化地标、网红打卡地。
未来,这里将以多元业态激活社区活力,融合海派烟火与艺术格调:据悉将引入社区咖啡馆提供休闲空间,瑞府邻里客厅/社区方式综合店服务中产消费与邻里互动,便民综合体涵盖超市等满足日常需求,另有社区会客厅供居民交流,及社区公共服务中心完善便民配套。
这些业态共同构筑便捷生活场景,让居民尽享舒适日常。对城市而言,这里不仅是界面的大焕新,更将凭借与周边亿级风貌带的联动效应,成为吸引全城目光的焦点。
更关键的是,外滩瑞府是这条亿级风貌带上少有的高层项目——既能浸润在海派风貌的烟火与文艺中,又能俯瞰黄金三角的璀璨景观,这样的“风貌+高层”组合,本身就是城市更新红利里的稀缺品。
在上海内环置业,“四房是刚需”已成共识:三口之家想接父母同住,需要独立卧室兼顾隐私;当下住内环三房的家庭,下次置换目标也必然是四房——这样的需求正在持续增长,市场却难寻适配的选择。
而外滩瑞府约161㎡四房,从供应缺口到价值潜力,每一点都直击购房者核心需求,堪称当前市场难得的“安全垫王炸户型”。
一方面,小面积紧凑户型难满足舒适需求:2024 年至今,155㎡以下的四房(或三房)占比约38.5%,这类户型普遍存在功能区局促、尺度不足的问题,无法承载家庭长期居住的舒适度需求;
另一方面,大面积户型总价高不可攀:180㎡以上的四房占比竟超54%,但这类产品总价普遍3500万起步,将绝大多数改善型购房者拒之门外;
最关键的160㎡段——既能保证四房完整功能,又能兼顾每个空间尺度感的面积段,去年至今内环供应占比仅约1%,近乎断供状态。外滩瑞府约161㎡四房,正是今年内环首个该面积段的舒适四房,直接填补了市场空白。
而且,当前内环地价持续高企,开发商更倾向于打造大户型,未来像160㎡段这样“控总价+保舒适”的四房,只会越来越少。
①、稀缺性执掌定价权:作为内环稀缺的161㎡舒适四房,项目在同类产品中几乎无竞品,具备“物以稀为贵”的价值属性,未来拥有更强的定价主动权;
②、面积适配+总价亲民,流通性更优:相比180㎡以上的高总价大户型,161㎡的面积段更符合主流改善家庭的需求,总价门槛更友好,在二手房市场上也能更快找到接手客群,流通性远超大面积产品。
再看项目的价值底盘:周边地王楼面价已达16.6-20万+/㎡,为项目价值筑下坚实“安全底”;而九龙路滨水空间+风貌底盘+161㎡四房稀缺性,共同为项目打开了价值上限——“低风险+高潜力”的组合,让这个户型成为内环置业的“稳健之选”。
据了解,认购客户有大量来自陆家嘴、黄浦、徐汇等核心区域的精英人士。其客群并非局限区域内的改善群体,而是辐射到整个上海的财富圈层。这种广泛且高端的客群基础,赋予了项目更加强劲的未来潜力,也让其在市场中更具竞争力。
外滩瑞府的珍贵,远不止“价格上错过不再”的稀缺机遇——作为华润置地上海的顶级标杆作品,它从根源上为购房者赋予顶豪级的公区质感、审美格调与仪式感。
要知道,公区不同于室内装修,后期再难耗费成本改造升级,而华润置地直接以“顶配标准”打造,将高端生活的基石牢牢奠定。
这份底气,从其顶级设计天团便可见一斑:GOA 大象设计、渡边智昭、泰国TROP事务所、无间设计吴滨、李益中等,每一位都是行业内的顶尖力量,共同为外滩瑞府的高端基因保驾护航。
他以颠覆性思维突破传统局限,不仅匠心打造独立 “室内外双幕水剧场”,更创造性地将高阶社交功能分散于四栋塔楼之下,规划出温莎廊吧、公啡花房、子恺乐园与Gym CLUB四大主题泛会所,让社交与生活需求各得其所。
不止于建筑与功能,社区内部的景观同样堪称艺术杰作。外滩瑞府特邀国际景观大师 Pok Kobkongsanti打造,将其对印象派光影的深刻理解,化作可步入、可触摸的“印象派自然秘境”。六大主题花园错落分布,贯穿全域的风雨连廊串联起四季景致,共同演绎出一座流动的艺术生活范本
在我看来,真正的改善,不该是少数房间的独享升级,而应让每个家庭成员都能平等享有舒适尺度与开阔视野。外滩瑞府摒弃了传统户型中明显的主次卧之分,无论是父母的休憩空间,还是孩子的成长天地,都拥有同等优质的居住体验。
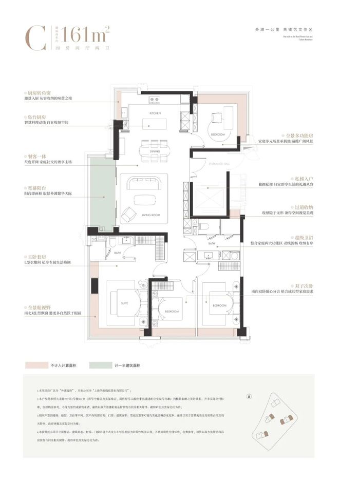
这是市面少有的360°视野的户型,全屋四个转角窗(北卧、厨房、阳台、主卧),不管你在哪个房间,都能欣赏城市景观。
厨房、餐厅、客厅与阳台相连通,形成联动空间,尺度感阔绰。于二胎家庭,这里足以让孩子从容玩耍,也能同时容纳子女弹琴、母亲做手工、父亲办公,满足家人多样化的活动需求。
三卧朝南,且几乎等面宽处理,因此不是“3+1”,而是标准4房,让阳光和舒适尺度成为给予每个人的平等馈赠。
公卫打造独特的四分离系统,实现独立洗漱台、卫生间、淋浴间、洗衣区互不打扰,将酒店化体验引入住宅。
装修标准上,外滩瑞府全部选用国际一线大牌:厨房选用嘉格纳高端厨电,包含洗碗机、双开门冰箱、蒸烤一体机、油烟机、燃气灶,还奢侈的选用了316L不锈钢水管(一般都是304)。
161户型厨房台面非常宽,你可以放置大型厨电,甚至摆上花花草草装扮厨房。
超大尺度的中西岛台,既符合中式烹饪的实用逻辑(预留足够操作台面),又能承载西式社交(朋友小聚时在岛台品酒聊天),让厨房从“单一做饭空间”变成“生活场景发生器”。
博洛尼整体橱柜(或同等品牌)用了转角拉篮、下拉式设计,连抽屉都做了分层收纳;中西岛台下方的双层抽屉+ 侧边滑轨柜,能把餐具、小家电“藏”得干干净净;
更贴心的是 “隐形过道收纳” 和主卧步入式衣帽间,真正做到“每一寸空间都不浪费”。
大理石地砖的铺装工艺精湛,近乎看不出拼接缝,呈现出浑然一体的效果;吊顶采用悬浮顶设计,周边用金属包边,层次感十足;卫生间墙面不乏弧形处理,地板纹路的拼法也各有不同,通过复杂的工艺,只为呈现更优的视觉效果。
华润外滩瑞府售楼处电话☎:✔✔欢迎来电咨询!(预约看房热线)可预约销售人员,专业一对一热情服务,让您用专业眼光去买房。
华润外滩瑞府售楼处电线华润外滩瑞府营销中心电线华润外滩瑞府售楼中心:400-998-8414楼盘项目全面介绍,本电话为开发商提供线上预约售楼电话,楼盘项目全面介绍(包含楼盘简介,均价,房价,现房,期房,别墅,叠墅,大平层,价格,楼盘地址,户型图,交通规划,备案价,备案名,项目配套,样板间,开盘时间,认筹时间,楼盘详情,售楼处电话,最新消息,最新详情,周边配套,一房一价,最新进展等详情咨询)楼盘详情丨价格丨更多优惠丨机不可失丨欢迎致电丨诚邀品鉴!售楼处位置丨特价房丨工抵房丨剩余房源丨户型图丨最新消息丨免责声明:将文章内容综合来源于网络、只作分享,版权归原作者所有!!如有侵权,请联系我们,我们第一时间处理如有问题欢迎来电咨询,专业一对一热情服务,让您用专业眼光去买房。如果您想了解更多楼盘详情,欢迎提前预约拨打华润外滩瑞府售楼处电线华润外滩瑞府售楼处电话☎:✔✔欢迎来电咨询!(预约看房热线)可预约销售人员,专业一对一热情服务,让您用专业眼光去买房。
20万就能买到了?特斯拉最便宜车型发布,太毛坯了,股价一夜蒸发超4600亿元
简体中文
