中環置地中心·望雲售楼处电话:【预约看房热线】中環置地中心·望雲官方售楼处电线【售楼处电话/地址】中環置地中心·望雲售楼处电话:【开发商认证】
如有问题欢迎来电咨询,预约来电尊享购房优惠,可预约案场内部销售人员,专业一对一热情服务,让您用专业眼光去买房。
中环南大现象级红盘建面108㎡/133㎡户型仅余少量臻席望雲东地块收官加推64席
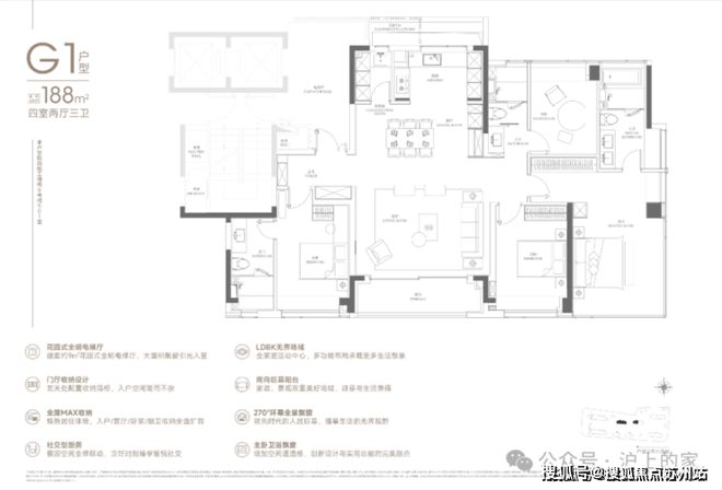
建面188㎡央景王座&135㎡臻席洋房本批次均价:7.37万/㎡整盘均价:6.6万/㎡
10月25日华润以底价拿下宝山区大场镇W12-1301单元32-04、11-01地块,随着二期地块的顺利出让,标志着整个丰翔路站TOD项目中环置地中心的版图由此补全!中环置地中心望云售楼处电话:
中環置地中心·望雲售楼处电话:【预约看房热线】中環置地中心·望雲官方售楼处电线【售楼处电话/地址】中環置地中心·望雲售楼处电话:【开发商认证】
华润中环置地中心总建筑面积有望超过90万方,是宝山有史以来最高规格的大型城市综合体项目之一,将打造集高奢购物中心、甲级办公、品质住区于一体的TOD综合体!
其中万象系商业体量超12万方,定位为地区级商业中心,将打造北上海城区规模最大的、品质最高的旗舰级商业中心!
中環置地中心·望雲售楼处电话:【预约看房热线】中環置地中心·望雲官方售楼处电线【售楼处电话/地址】中環置地中心·望雲售楼处电话:【开发商认证】一期地块包含07-01商办用地和3幅住宅用地,目前住宅还有少量在售,商办地块已经动工;二期地块拿地当天即公示了设计方案,其中住宅部分计划25年一季度入市,目前展厅已开启接待,推建面108-188㎡地标级海派大成之作!
根据设计方案显示,该地块拟建3栋17-28F高层住宅、2栋30F酒店、1栋23F综合楼以及2栋3F商业;同时地块北侧设置有空中连廊,与北侧07-01地块万象系商业连通!
通过地块中部的一条公共通道进行分割,住宅位于西侧,商办位于东侧,住宅区域地面无车位,全人车分流;
其中19#为两梯四户带连廊,17#为三梯六户带连廊,15#为一梯两户无连廊,规划可售住宅约334套!
根据设计方案显示,该地块拟建2栋8F小高层住宅、6栋17-26F高层住宅以及若干社区配套用房;项目地面无车位,全人车分流,除5#、6#外,其余楼底层全架空,预计打造泛会所概念!
其中7#、8#为三梯六户带连廊,2#为三梯五户带连廊,其余楼均为一梯两户无连廊,规划可售住宅约580套!
中環置地中心·望雲售楼处电话:【预约看房热线】中環置地中心·望雲官方售楼处电线【售楼处电话/地址】中環置地中心·望雲售楼处电话:【开发商认证】
建面约188㎡央景王座&建面约135㎡臻稀洋房,黄金中环之上,封藏64席!
上海中环置地中心望云营销中心热线(官方预约看房热线㎡的三房两厅两卫,总价约700万起,门槛友好,年轻家庭置业中环的不二选择。
三开间朝南(客厅建筑面宽约3.4米)+南向双阳台+南北通透+多飘窗设计,采光视野拉满!收纳方面也做了很多改进。
可抽拉的零食柜、厨房抽屉式碗碟拉篮、包括卫浴的收纳墙,于细节之处见真章。
133㎡的四房产品是项目的明星户型,板块内以及整个中环难得的改善型作品。
超大尺度与超强采光面,四开间朝南+主卧270°无柱转角飘窗+灵动空间设计,豪宅基因与品质感跃然于眼前,全市改善稀缺品种。
主卧的台盆对面都做了飘窗,从而达到了主卫和主卧都能双面采光的效果,尺度感非常夸张。
全屋做了约6个飘窗,主卧、次卧、主卫、客卫,包括另外两个卧室,满屋飘窗户型,不仅采光视野出众,还实打实赠送了约14㎡的面积,合理利用每一寸空间!
客厅建筑面宽约5.7米大开间,整体空间利用率极优秀,几乎没有过道面积的浪费。
来感受下主卧270度的飘窗视野,将上海一年四季的美景搬入室内——尺度感拉到极致!
主卫的镜柜,也做双面收纳设计。主卫延伸出来的创新飘窗,可以在上面摆放各种日常用品。
厨房,采用博世(或同等品牌)的吸油烟机、灶具、洗碗机、蒸烤一体机四件套、怡口(或同等品牌)的末端净水器、摩恩(或同等品牌)的垃圾处理器都统统配备。
建面约188㎡雲端平墅,雄踞社区央景中轴,以前排洋房群落的低密基底为天然画框,构筑IMAX级无界视野场域。270°环幕落地窗将景观园林盛景悉数纳藏,宽阔楼间距,惬意风景无遮挡;水景萦绕,自然盎意漫游之境;LDBK餐客社交场、全屋MAX收纳体系空间扩容,一线品牌奢装,勾勒精奢生活质感,为居者营造出奢华舒适的居住氛围。
9#楼下架空层泛会所,植入健身空间与休息廊架,让社交与自然静谧共生。多元化架空层设计,包含学习盒子等全年龄段功能,兼具高颜值和实用性。精工造诣瑰丽大堂,给予居者更具仪式感的归家礼序。
上海中环置地中心望云营销中心热线(官方预约看房热线层公园电梯洋房形制,为居者营造出自然亲地、花鸟比邻、四季皆景的低密公园洋房社区。建面约135㎡臻稀洋房,区别于高层住宅的局促布局,以坐北朝南的经典规制匠筑户型基底、以大面宽采光界面打破室内外界限,实现“全屋无暗角”的光影奢享;以低密规划构建纯粹居住场域,打造私密尊崇的生活边界;匠筑LDBK宽境场域、用超高得房率给予居者更高舒适度、以超越常规的楼间距尺度重构生活边界。南向宽奢景观阳台,让居者享有更大绿化空间的同时享有更丰盈的景观视野,给予生活更多的自然绿意和充足阳光。
项目本次的边套设计了大量的飘窗、转角飘窗、主卧270度落地窗等设计,整个立面运用了大量的玻璃,构建出了非常极致的窗墙比。
同时,南侧还运用了铜色的铝板和浅白色陶瓷板,这样立面风格,再搭配上塔冠的造型,实在太抓眼球了。
未来从地铁站出来,抬眼就是这极具审美和辨识度的立面,这是新的城市天际线,也是业主身份的象征。在装修标准上,除了前文提到的冰山一角之外,华润置地在石材的配置上,也不遗余力:
大量的雅士白大理石、大花白岩板、皇家孔雀岩板、水纹夹丝玻璃、仿洞石岩板、卡拉卡塔白岩板等等,极尽奢华!
社区空间和景观园林的打磨上,项目从业主生活体验出发,将海派美学彻底融入了景观之中。
整个社区以主景花园联动自然教室、休闲交谊与艺术空间,形成婉转游园的酒店式迎宾水院。
同时,以超奢戏水池与尊享休闲会所为核心,联动架空层,串联休憩廊架与横向端景,打造核心奢享场景。
另外,整个项目拥有包括泛会所(戏水池、高定健身场所)、场景化网红架空层泛会所等全维社交场景。
可以看到,在产业定位上,南大智慧城定位与其他两者相比,不遑多让;但是未来人口的密集程度,南大智慧城最高,这意味着更密集的产业需求,从而带动更庞大的居住需求。在产业导入上,南大既有行云集团、妃鱼、蓝晶科技、先导科技等一批“硬科技”产业总部基地项目,也有上海科创投、军民融合基金、上海国际创投、深创投、国泰君安、海通证券、安永、毕马威等行业领先代表组成的一批科创金融服务中心联盟机构。
而开篇我们提到的宇树科技就是南大近期的重磅引入!未来,南大必然是中环上璀璨的明珠!
TOD开发,依托城市动脉带来的流通性,带来的是产业发展、经济提振等全方位的推动作用。
再比如闵行莘庄TOD,天荟的次新住宅,一套建面约151.38㎡高层,高点已经达到了12.75万/㎡,同期,年代相近的莘庄次新金辉海上铭著,二手成交单价,目前还从未攀上10万/㎡。2024年4月成交的一套建面约140㎡房源,成交单价约8.2万/㎡,与天荟相差甚远。TOD综合体住宅,依托近轨交与一站式生活配套的全面加持,价格十分坚挺。
作为15号线丰翔路TOD住宅,地标建筑、核心地铁站点、旗舰商业全部汇聚于周边步行范围内。
而丰翔路TOD,除了这座足以定义北上海品质天花板的住宅之外,未来还将涵盖约150米国际化超高建筑群的TOD上盖地标级企业总部;融汇轻奢时尚、休闲生活、运动潮流等多元业态的商业;
多维生态场景聚合之下,中环置地中心将成为新一代的网红打卡地,甚至辐射整个上海,成为真正的一站式生活聚居地。
轨交能级方面,南大一枝独秀,7号线号线均已通车,穿过整个板块,未来更有多条轨交正在规划建设中。
在商业方面,丰翔路TOD中环置地中心,已经确定引入华润【万象汇】商业,华润置地邀请了打造前滩太古里的5+Design作为设计师,打造这座与众不同的北上海商业封面。设计师利用中环置地中心独特的城市环境,从自然水系密布的走马塘绿地公园开始,将商业街区、购物中心、地标办公、轨交站点与自然公园融合。
商业的运营时间,与住宅的交付时间,基本同时,无需等待,入住即享周边成熟商圈。此外,南大路上盖,未来也将打造TOD,两大综合体加持,将大幅提升南大商业能级,并辐射周边。
北侧丰翔路、西侧祁健路、东侧汇丰路已建成通车,07-01地块南侧丰皓路(祁健路-工学路)计划2024年开工建设。项目距离15号线丰翔路站步行可达,日常出行非常方便。
项目本身就是一个自带商业的TOD,华润置地规划以万象系列融汇轻奢时尚、休闲生活、运动潮流等多元业态,打造北中环“都市商业新旗舰。除了未来的万象系商业(规划中),周边还有经纬汇、聚丰购物广场、上坤城市广场、山姆会员店等,购物还是比较方便的。
教育方面:周边荟萃南大实验幼儿园、宝山区南大实验学校、上大附小、上大附中、上海大学附属学校、上海大学等全龄化教育资源。
中環置地中心·望雲售楼处电话:【售楼中心热线】中環置地中心·望雲营销中心热线中環置地中心·望雲售楼处地址400_812_3664,楼盘项目全面介绍,本电话为开发商提供线上预约售楼电话,楼盘项目全面介绍(包含楼盘简介,均价,房价,现房,期房,别墅,叠墅,大平层,价格,楼盘地址,户型图,交通规划,备案价,备案名,项目配套,样板间,开盘时间,认筹时间,楼盘详情,售楼处电话,最新消息,最新详情,周边配套,一房一价,最新进展等详情咨询)楼盘详情丨价格丨更多优惠丨机不可失丨欢迎致电丨诚邀品鉴!售楼处位置丨特价房丨工抵房丨剩余房源丨户型图丨最新消息丨免责声明:将文章内容综合来源于网络、只作分享,版权归原作者所有!!如有侵权,请联系我们,我们第一时间处理如有问题欢迎来电咨询,专业一对一热情服务,让您用专业眼光去买房。如果您想了解更多楼盘详情,欢迎提前预约拨打中環置地中心·望雲售楼处电线 新政效应观察:外环外冷热分化显著,环沪楼市承压,市场机遇与挑战交织
北京 “8・8 新政” 的阶段性成果,为上海 825 新政的落地提供了极具价值的参考样本。据中指研究院数据,北京新政实施后(8 月 9 日 - 9 月 7 日),新建商品住宅日均成交面积达 1.26 万平方米,较 7 月日均增长 7%;克而瑞的统计进一步显示,8 月北京新建商品住宅成交 2733 套,环比提升 6.2%,清晰显现出政策对市场活跃度的提振作用。
在此背景下,市场目光自然聚焦上海:825 新政能否借 “金九银十” 这一传统销售旺季,有效激活外环外市场,并带动全市楼市逐步走出低谷?
新政落地后,上海楼市呈现 “外环外热度与压力并存,外环内抗跌性凸显” 的复杂格局,不同区域的市场表现差异显著。
新政后,外环外多个楼盘推出 “通宵接待购房者” 的举措,中介带看频次与成交单数均出现回升,但市场情绪整体仍以理性为主。多位中介反馈:“尽管少数房东尝试小幅提价,但绝大多数业主更倾向降价促成交易,只想抓住新政窗口期尽快变现。” 中介自身也在积极推动成交,“只要客户诉求不过分,基本会借着新政热度尽力协调双方达成一致”。
这种 “表面热闹” 背后,数据揭示了市场的真实压力:上海二手房挂牌价已连续七个月呈下跌态势,截至 9 月 13 日(安居客统计),9 月全市二手房均价降至 46738 元 / 平方米,环比进一步下跌 0.79%,同比跌幅更是达到 9.17%。区域分化尤为明显,嘉定、松江、崇明三区仅微涨 0.10%-5.97%,而金山区则以 1.94% 的跌幅成为外环外领跌区域。
尽管多个外环外楼盘对外宣称 “24 小时营业” 或 “即将收回购房优惠”,但实际去化依旧依靠大幅折扣促销。据凤凰网房产调查,松江国贸鹭原、嘉定大华梧桐樾、奉贤大名城映雨江南等项目,除公开的 95 折优惠外,还通过开发商直接返现(最高 30 至 40 万元)、中介返佣等隐性折扣吸引购房者,部分房源实际成交价相当于原定价的 7-8 折。
即便如此,促销效果仍未达预期。佑威数据显示,8 月上海新建商品住宅成交量仅 3033 套,环比下滑 9.50%。更有项目被指制造 “热销假象”,例如虹口金茂璞元宣称 “开盘即售罄”,但截至 9 月 4 日,仍有 24 套房源处于未售状态。
外环外新房市场冷热分化极为突出:保利海上印、招商林屿畔等项目凭借成熟的周边配套(如临近地铁、自带商业体)与优质产品设计(如户型方正、绿化率高),实现 “开盘即售罄”;而东苑古北悦公馆等项目则因配套不足、产品设计陈旧,出现网签挂零的情况。
导致分化的核心原因在于两点:一是部分区域配套滞后,缺乏商业综合体、优质学校及医疗机构,轨道交通网络覆盖不足,通勤成本高,难以吸引自住型买家;二是产品与需求脱节,部分楼盘户型设计落后(如暗厅、动线混乱)、社区规划陈旧,无法满足改善型购房者的需求。
为加速去化,部分远郊楼盘已采取 “政府批量采购” 模式,将闲置房源改造为保障性租赁住房。尽管此举会压缩企业利润,但能帮助企业快速回笼资金、减轻负债压力。
需注意的是,新政对部分外环外房源实则构成 “利空”—— 尤其是无地铁、无配套的 “老破小” 动迁房或品质较差的商品房。由于公积金 “可提可贷” 新政降低了新房上车门槛,部分原本考虑这类二手房的购房需求,转向了总价可控、居住体验更佳的新房,反而加剧了这类存量二手房的竞争压力。
与外环外不同,外环内市场表现出更强的抗跌性。上海外环内区域面积仅占全市总面积的 13% 左右,此次 825 新政全面放开外环外限购(覆盖近 90% 区域),却对外环内限购政策仍保持严格管控,这一差异进一步凸显了核心区域房产的稀缺属性。核心区(内环内)政策维持不变:上海户籍家庭限购 2 套住房,非上海户籍家庭需缴纳 3 年社保方可购买 1 套。严格的准入限制有效抑制了投机需求,市场以自住和长期资产配置为主导,房价抗跌性较强。地段价值、成熟的配套设施(如优质学区、大型商圈)与有限的供应总量,共同支撑了核心区房产的保值属性,未来价格预计将保持平稳,或随经济基本面缓慢波动。
相对而言,市区 “老公房” 可能面临需求分流压力。预算有限的购房者如今更愿意选择外环外的新建住宅 —— 这类房源不仅享有政策红利,且在户型设计、社区环境等方面更具优势;而市区老公房在贷款优惠、税费减免等方面并无特殊政策支持,需求可能进一步收缩。
受上海 825 新政冲击最大的当属环沪楼市。回顾 2021 年前后,环沪区域曾吸引大批投资客入场,被冠以 “上海后花园” 的名号,掀起一阵 “稳赚不赔” 的购房热潮。但仅仅过去几年,市场格局已发生根本性转变 —— 上海每一次楼市政策松绑,对环沪而言都意味着一轮新的冲击。
环沪楼市兴起的核心逻辑,是承接上海外溢的购房需求。早期上海限购政策严格,大量不具备上海购房资格的刚需群体,不得不将目光转向环沪区域。但随着上海外环外限购大幅放开,环沪失去了 “不限购” 和 “低总价” 两大核心竞争力,无论是刚需群体还是投资客,都出现向上海回流的趋势,环沪市场正面临近十年来最严峻的挑战。上海 825 新政发布次日,苏州便连夜取消市区新建商品住房 2 年的限售政策,试图提振本地楼市。然而政策 “松绑” 后,苏州二手房单日新增挂牌量就达到 2000 多套,这一数据背后,折射出环沪市场的低迷现状。
克而瑞数据显示,苏州 7 月商品住宅成交量仅 12 万平方米,环比下滑 70%;8 月新建商品住宅成交量虽环比增长 13.92%,但同比仍下跌 21.18%;二手房市场无论成交量还是成交价,均呈全线下跌态势。
类似的低迷情况普遍存在于启东、杭州湾、嘉善、平湖、吴江汾湖、太仓等环沪区域。
:多数环沪区域定位为 “睡城”,缺乏核心产业支撑,无法形成 “职住平衡” 的良性循环,人口吸引力持续减弱;
:早期宣传中规划的学校、商业体、交通线路等配套设施,大多未能落地,导致居住便利性远低于预期;3.
:上海外环外购房门槛大幅降低,直接分流了原本流向环沪的刚需与投资需求,进一步加剧了环沪市场的下行压力。
环沪楼市还出现了反常的 “新房比二手房便宜” 的价格倒挂现象。例如花桥象屿都城怡园推出五折优惠促销活动,83 平方米的小三房总价仅 98 万元,比同小区二手房价格低 20% 以上;而周边二手房挂牌价普遍在 1.2 至 1.3 万元 / 平方米,且成交周期长达 120 至 240 天。
这种乱象的根源在于:开发商迫于资金压力,不得不通过降价回款缓解流动性;而个体业主难以承受大幅亏损,不愿低价出售,导致市场价格体系扭曲。
当前上海及环沪楼市的现状,对不同市场参与者而言,意味着截然不同的机遇与挑战 —— 它既不是全面上涨的信号,也不是整体衰退的警报,而是需要精准判断的 “双刃剑”。
新政的核心目标是改善市场流动性,而非推高房价,这一点卖房者需明确认知。·外环外房东应依据家庭资金情况,选择 “降低负债” 或 “借市场热度出手”:房源品质较好(如近地铁、配套全)的,可以略低于市场价成交,加快变现速度;远郊区域(如奉贤海湾、青浦白鹤、浦东泥城惠南)的业主更需加快出售节奏,避免后续抛压增大;
·尤其位于外环外新房密集区的二手房东,需警惕未来新房持续促销带来的竞争压力,抓住当前窗口期果断决策。
(二)对购房者:刚需迎来宽松窗口,优先选择 “高性价比 + 稀缺性” 房源
·外环外热点板块如唐镇、莘庄、徐泾、浦锦、梅陇、七宝,凭借成熟配套与便捷交通,综合实力强劲,可优先考虑入手;
·预算在 500 万元以内的购房者,可关注南翔、杨行、曹路、周康、江桥、泗泾等板块,这些区域房价相对亲民,且生活便利性较高;
·近年来新房产品力显著提升(如户型优化、智能化配置、社区绿化升级),居住体验优于同区域二手房,预算充足的购房者建议优先考虑新房。无论选择新房还是二手房,都需多看多比,重点关注 “稀缺性”(如近地铁、优质学区)与 “竞争力”(如户型、社区环境)兼具的房源。
当前楼市投资如同 “刀尖舔血”:政策风险较高,市场接盘群体不断减少,投资回报不确定性显著增加,建议暂时回避楼市投资。
至于环沪房产,若是刚需自住(如工作地点在环沪、预算有限),可根据自身需求选择;但若以投资为目的,普遍不建议购买 —— 环沪市场短期内难以扭转低迷态势,投资回报周期长、风险高。
上海 825 新政为外环外新建住宅提供了定向支持,在缓解库存压力、稳定土地市场方面发挥了一定作用,但难以从根本上扭转市场下行的预期。
当前上海楼市仍处于探底过程中,政策仅起到了阻止房价进一步下跌的作用,尚未引发全面反弹。未来市场能否企稳回升,还需观察三大关键因素:外环外配套设施落地情况(如地铁、学校、商业体)、房价调整幅度是否匹配市场需求、以及购房者信心的恢复程度。
特别声明:以上内容(如有图片或视频亦包括在内)为自媒体平台“网易号”用户上传并发布,本平台仅提供信息存储服务。
大兴安岭一国道多次出现野生棕熊,有游客投喂面包,当地林草局:非常不提倡,野生动物攻击性强,还可能携带病菌
世界杯名额已定19席!33岁萨拉赫2球+9轮砍9球 埃及苦等8年后回归
亏损227万!南京一楼盘从357万跌至130万,蒸发70%,业主欲哭无泪
世界杯名额已定19席!33岁萨拉赫2球+9轮砍9球 埃及苦等8年后回归
简体中文
