当四环丰科的城市界面不断更新,改善人群对“理想家”的期待早已超越单一的舒适度需求,更追求“推窗见景、下楼入园、户型通透”的全能生活体验。
10 月起,中建・云境中央楼王组团8#楼重磅加推,一经推出即迎来热销盛况。这份热度的背后,绝非偶然,而是项目以“园区C位楼座+沉浸式园林景观+满分的户型设计”的三重稀缺价值,精准击中了改善客群的核心诉求,为四环人居交出了一份无可替代的答卷。
在改善住宅的价值排序中,楼座位置往往决定了居住的 “先天舒适度”。 8#楼作为中央楼王组团的核心楼栋之一,从规划之初便占据社区 “黄金点位”,将 “静谧” 与 “便捷” 完美平衡。
从社区布局来看,8#楼拥有“三面环景”的优势,北侧推窗即见禅园,南侧直面享园,西侧眺望中心景观,云庐缦林。四季皆有不同景致,让窗外的风景随季节流转。此外,8#楼南向奢阔的楼间距,不仅彻底避免了“楼望楼”的压抑感,更让每一层都能拥有充足的采光时间。
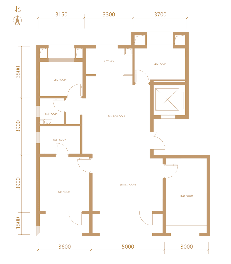
当楼座与园林奠定了居住的 “外部基础”,户型便成为决定 “内部舒适度” 的关键。中建・云境建筑面积约150㎡“四叶草”大四居,精准匹配多代同堂或多孩家庭的改善需求。
走进户型的第一感受,是 “没有浪费的角落”。建筑面积约150㎡做到四居两卫,户型方正、通透,布局合理,比想象中更加宽敞。
户型采用经典的“四叶草”格局,四个卧室分布在房屋四角,互不干扰。南向三面宽的设计,让主卧、老人房(或儿童房)和客厅都能享受到充足采光,尤其是客厅约5米的超大面宽,搭配全景落地窗,不仅拉伸了视觉空间,更让阳光轻松铺满整个公共区域。周末时,孩子在客厅玩耍,父母在厨房准备餐食,视线通透无遮挡,既能互动又能彼此照看,契合多代同堂的生活需求。
更贴心的是,户型还做到了 “空间均好性”。每个卧室都能轻松放下双人床,北侧两个次卧可灵活规划为书房、瑜伽室或儿童游戏房,即便是最小的次卧,使用面积也约9.3㎡,不会因为“迁就”公共空间而牺牲私密区域的舒适度。
真正的改善,往往体现在看不见的细节里。中建・云境在这个户型上的打磨,堪称“教科书级别”。
入户第一眼,铸铝复合定制子母门就自带 “仪式感”,不仅防火防盗性能拉满,四合一智能锁还集成了猫眼、视频通话功能,出门再也不用带钥匙,老人孩子使用也安全方便。沙发背景墙暗藏卧室门设计,关闭时与墙面融为一体,既保证了客厅的完整性,又守护了卧室的私密性。
室内配置的全屋智能系统,让“科技改善生活”落地。10.1寸中控屏可一键控制灯光、空调、新风,语音唤醒“管家”,调节窗帘开合度、设定晨起模式;出门后还能通过 APP 远程操控,提前打开空调调节室温。
在居住舒适度上,全屋窗户采用“四玻三腔 Low-E 玻璃”,关闭窗户后,外界施工噪音几乎完全隔绝,即便是临街楼栋也能享受安静生活;主卧套房配备衣帽间和独立明卫,镜柜自带美妆冰箱,护肤品、面膜再也不用挤在洗手台;主卫的感应夜灯,会在光线不足且有人经过时自动亮起,起夜再也不用摸黑找开关,细节之处尽显贴心。
作为央企中建八局打造的项目,这个户型的精装品质更是“诚意满满”。从材质到品牌,每一项选择都兼顾了实用性与高端感。
公共区域地面通铺 “星耀灰” 大理石,纹理细腻且耐脏易清洁,搭配宝嘉迪灰石材的客厅电视背景墙,以及沙发背景墙的皮革硬包,整体风格简约大气,又不失质感。
厨房采用“三段式”布局,洗、切、炒动线流畅,橱柜选用欧派、金牌、丽博等同档次品牌,柜门是汽车金属烤漆工艺,内部还配置了电动升降储物架、拉篮,小到调料瓶、大到锅具,都能找到合适的收纳位置。
电器配置博世、西门子等同档次品牌的燃气灶、洗碗机、蒸烤一体机,汉斯格雅、高仪等同档次品牌的龙头花洒,史密斯、威能等同档次品牌的燃气热水器……甚至连垃圾处理器、直饮水净水器都一应俱全,交付后无需额外添置,实现“拎包入住”。
改善的本质,是生活方式的进阶。中建·云境的建筑面积约150㎡大四居,用其扎实的空间规划和细节处理,交出了一份面向改善人群的答卷。
本项目备案名:云境佳苑,推广名:中建·云境,开发商:北京万孚置业有限公司,代理销售公司:北京嘉德至鼎房地产顾问有限公司。本资料为要约邀请,不作为要约或承诺;相关宣传内容不排除因政府相关规划、规定及开发商分期规划、未能控制等原因而发生变化;本资料所发布的内容为2025年10月17日的信息,活动解释权归开发商所有。京房售证字〔2024〕28号。买卖双方的权利义务以双方签订的《商品房买卖合同》及其补充协议、附件等书面文件为准。
免责声明:本文仅代表作者个人观点,与凤凰网无关。其原创性以及文中陈述文字和内容未经本站证实,对本文以及其中全部或者部分内容、文字的真实性、完整性、及时性本站不作任何保证或承诺,请读者仅作参考,并请自行核实相关内容。
文明上网理性发言
简体中文
