在售户型图丨项目介绍丨最新房源丨周边配套丨详细解答〢⭐◆开发商营销中心诚挚邀请,一键预约,尊享内部折扣!匠心独运的精品项目,恭候您的品鉴与选择。⭐✅ 过来参观样板房烦请记得提前来电预约!✅ 为您安排楼盘现场销售全程接待并讲解,给您更贴心的看房体验!这是一个从城市站位、规划能级、生态环境、配套资源、社区产品等全方位领先的新房项目,超高性价比的价格买入!
项目周边交通便利,多条公交线路交汇,紧邻地铁站。此外,项目距离昆山市中心仅约10分钟车程,出行便捷。
项目周边教育资源丰富,设有知名幼儿园、小学、中学等,为业主子女提供优质的教育环境。
项目周边设有大型购物中心、超市、餐饮、娱乐等配套设施,满足业主日常生活需求。
昆山城东尚云赋的外立面采用现代简约风格,线条流畅,造型美观。建筑采用高品质材料,呈现出大气磅礴的气势,彰显项目的品质。
昆山市城东板块作为城市发展的重要区域,近年来发展迅速。板块内设有多个高尚住宅区、商业中心、教育资源等,配套设施完善,成为昆山市宜居板块之一。
项目地处昆山经开区,根据最新批文,这里将打造成昆山片区发展的示范生活区,约260万方,共14块高端低密度住宅用地,同时还将配套打造幼儿园及9年一贯制学校7所,全新高端住区即将形成。
另外,一条景王路,连接东部新城核心、夏驾河科创走廊,不仅能享受主城区的生活配套,还能承接城东发展,集城市文化底蕴及优质资源配套于一体。
随着北京、上海先后放宽购房政策,降首付、降利率、调整普宅标准!新一轮救市政策正在轰炸!
楼市调控此起彼伏,雨露均沾的普涨时代已然结束,板块分化,楼盘分化已无需多言,只有真正的好楼盘才能被市场追逐。
就在这两天,苏州人的买房热情被一个“红盘”彻底点燃了,先来看一组人气图:
自12月项目营销中心开放,当天接待超600组客户,售楼处每天都人气爆棚,关注度居高不下。近日,项目再度传出劲爆消息:已取证,目前正在火爆预约中!预约人数已经远超首开套数了,不用想,开盘必热卖。
居居工作日去了一趟现场,不到半小时,就有6-7组客户到访。坦白讲,在现在这个行情下,高端市场能有这般人气的屈指可数。
作为保利置业独资开发的项目,也是全国首个“赋”系东方大作,可以说,它几乎是昆山近十多年来,核心区第一个真正意义上的新中式豪宅,极具辨识度,足以颠覆市场想象。
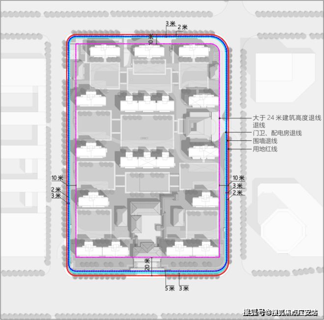
但保利·尚云赋不一样,它不愿牺牲品质,主动退让红线+舍弃一栋中央景观楼王位置,反复打磨后,才实现了如今,规划舒适化、南向更大化、景观更优化、采光通风更佳的纯南向楼栋布局。
整个项目四向各退红线米,确保了访客车位都停在围墙外,整个小区真正意义上实现了人车分流,是板块首个,不惜成本,主动割肉砸品质的项目。
按照原本的规划,尚云赋要比目前多建1栋楼,但是考虑到景观设计呈现效果和功能性,开发商直接拔掉了1栋中央景观楼王,牺牲了近千万的利润,让出超大地面空间打造沉浸式中央水庭院。
项目总共包含13栋10-17F住宅,首开即将推出的是,9、10、11、6#,3栋小高层+1栋洋房,全系建面约152-238㎡,是市面上十分罕见的“低密宜居大平层”。
需要强调的是,尚云赋整盘户型最小约152㎡,也就是说尚云赋业主都是有一定经济实力的高端人士,充分保障了未来社区圈层的纯粹性。
产品结构之外,更令买家惊艳的,当属保利“赋”系新品,带来的奢华居住体验。
项目将东方文化意境,再现于当下。从传统东方图腾榫卯结构中提炼简化,定制专属具象符号呈现。
全系落地窗+超60%铝板含量,被极窄边框幕墙包裹的保利·尚云赋,像CBD的总部大楼一样,极具地标感、辨识度。
不论是立面,建筑构造,整体线条感,还是建筑材质…各个细节,都还原了东方美学神韵。
比如,社区内部的“廊、亭、台、楼”多重空间...甚至,墙面的装饰、挂画...亦都如此。
这些元素不是用来点缀,而是近乎渗透到每个细节。虽不一定为买家发现,但这就是保利的态度。
一进双大门、二进世家院门、三进步水归程,三进归家+东方十二胜景,注入中式哲思同时,呼应行走者的思想与心境,仪式感和尊贵感,悄然而生。
而且项目3#、4#、6#全部做了高品质架空层,打造适合全龄段的休闲娱乐主题空间,可满足业主多元化的公共空间需求。
更重要的是,你在这里看到的一切,不仅仅是“展示”,更是未来生活的一部分。
项目所有产品都是一梯一户独立电梯入户体验,妥妥的高端豪宅专属的私密性与尊享感。
即将首开主推的建面约189㎡户型,五开间朝南,南向面宽达到了惊人的约16.3米,并打造约6米大横厅,直连超9米三面宽阳台,尺度感着实令人震惊!
而且南向双主卧大套房设计,更是给予了每一个家庭成员独立、私密的生活空间,生活动线互不打扰,完全是三代同堂家庭优选。
建面约238㎡户型,在布局和设计上,更是再做了升级设计,单景观面就有近20米!正南阳光,一年四季,都肆意在家中游走,这才是真正的尺度。
中西双厨+LDK一体化公区面积超80㎡,动静分区分明,尤其是南向超11米的跑道式阳台叠加3.15米层高,拥有IMAX级视野和采光,窗外美景一览无余!
此外,不得不感慨此户型主卧大套房的尺度感,开间约4.8米,不仅带有超大飘窗,还享有独立大衣帽间+双台盆+大浴缸豪华配置,令人羡慕。
最后,还有建面约152㎡大四房,南向整体面宽达到约14.2米,一体化公区同样是大横厅设计,向外连接近8米双面宽阳台,全屋多飘窗赠送,实际居住体验不输市面上的170㎡。
无论是哪个户型,都有一步到位的舒适度和尺度感,从二人世界到三代同堂或三孩之家,让家庭成长更从容。
能被称为精装“教科书级”的项目是怎样的?很显然,保利·尚云赋已经给出了标准答案。
项目标配了东芝空调、百朗新风、威能地暖,精装“三大件”一个都不少。五金卫浴选用高仪、博洛尼、唯宝、摩恩等均为国际一线大牌。
比如三件套,市面上楼盘很多采用老板、方太、美的等品牌,而且一般也就配置消毒碗柜。
而项目直接带来豪宅标配6件套,全套西门子洗碗机、蒸烤一体机、滨特尔末端净水器,百朗凉霸,就连烹饪区的墙面也采用了一整面西西里翡翠岩板。经常做饭的人,自然懂得这体验感有多棒。
关键一点,很多项目会把钱花在“明面”上,但装修过房子的人才知道,只有硬装才是考验。
你可能想象不到,在尚云赋房间里几乎没有一面墙是乳胶漆,要么是定制墙布,要么是岩板,就连卫生间都用一整块经典宝格丽岩板,拼接缝都处理得非常精致。
同时,电视背景墙也是一整块西西里翡翠岩板,还有申请了国家专利的东方云纹岩板,建面约238㎡更是整块玉石(原石材),全苏州仅此一家!
主卧背景墙更是重量级,定制床头皮质背景墙,材质选用比传统皮革更加柔和高级的的哑光麝皮绒皮革,搭配爱马仕线条,豪宅范十足。
此外,公共区域地面均采用简一大理石瓷砖,密缝连纹铺贴,主卧地板特选人字拼,成本相当于普通地板的2倍,刷新了区域住宅墙面、地面标准新高度。
当然尚云赋给予市场的惊喜还不止此,项目在精工工艺方面的考究,更是令人惊喜,每一个方面都做到了精益求精。
比如,入户门采用春天品牌铸铝门和室内子母门,保温性和隔音性远超市面标准,门锁采用名门八合一智能门锁。
打开柜子还内有玄机,专门配有除臭机,实现日常消毒,这点要点赞。还有约60公分深衣柜,轻松搞定日常收纳,放一个李箱进去都不成问题。
走进客厅,印象最深的除了大手笔岩板背景墙,就是区域唯一的悬浮吊顶,得益于标准层3.1~3.15米层高,一楼更是做到3.6米层高,即便做了吊顶,也丝毫不影响大宅气场。
本电话为开发商提供线上预约售楼咨询电话,项目全面介绍(包含官方最新发布:在线预约看房丨一房一价表丨在售房价优惠丨户型面积房源丨交房时间丨交通地铁丨商业配套丨教育资源丨小高层洋房丨独栋别墅丨联排合院丨商业别墅丨得房率丨容积率丨小区环境丨优缺点分析丨楼盘测评丨在售户型图丨项目介绍丨最新房源丨周边配套丨详细解答丨一对一热情讲解〢区域板块等信息!
三不限落地 + 人才重补 + 低息红利,刚需 / 改善 / 新市民全面利好!
全市新房、二手房不再设户籍门槛,非本地户籍无需社保 / 个税即可购房,且不限制购买套数,跨区购房无额外要求。
2025 年 8 月 26 日后,市区新建商品住房取消 2 年限售要求,二手房可自由交易,仅保留特殊限制转让住房的管控条款。
首套、二套住房商业贷款最低首付比例均降至 15%,不区分户籍与区域,仅需结合贷款记录审核资质。
二孩及以上家庭购房,公积金贷款额度上浮 30%,夫妻双方最高可达 195 万元。
全日制本科及以上学历人才,公积金额度再上浮 50%,多孩 + 人才身份叠加后家庭最高可贷 225 万元。
商业贷款可直接转公积金贷款,无需提前结清原贷款,流程简化至 15 个工作日办结。
国家级领军人才可享最高 200 万元房票补贴,省级双创人才最高 150 万元,教育卫生领域特聘人才最高 50 万元。
2025 年 5 月 1 日 - 6 月 30 日,购买新建商品住房可享合同金额 0.5% 补贴,凭不动产权证申领。
先卖后买:出售旧房 1 年内购新房,可享 100% 契税补贴(截至 2025 年 3 月 31 日)。
首套、二套住房面积 140㎡及以下的,统一按 1% 征收契税;140㎡以上按常规标准执行。
2024 年 1 月 1 日 - 2025 年 12 月 31 日,出售自有住房后 1 年内重新购房,可申请全额退还已缴个人所得税。
旧房总价可 100% 抵扣新房价款,支持多套旧房置换多套新房,取消 144㎡以下面积限制(别墅类除外)。
70 年产权住宅不分面积,新房、二手房均可落户,期房网签备案 + 全款发票即可申请。
2025 年内购置装修材料(含饰面砖、地板等 9 大类),按购置价 15% 补贴,单套最高 3 万元。
支持跨行 “带押过户”,通过资金专户保障交易安全,办理周期缩短至 3 个工作日。
推出 “青易贷”,青年人才、台胞可享低息贷款,资产证明灵活认定,配套房企定向优惠。
“苏住房” 平台实现找房、房贷测算、交易网办全流程服务,推出 “地图找房” 和特价房源专区。
人才房票与契税补贴不可重复享受,按 “就高” 原则选择,房票有效期 60 天;
简体中文
