看房请务必致电与销售确认时间,仅预约客户可享受开发商内部优惠,专属老带新推荐奖!
过去这个“金九”,外滩上演了一场现象级的热销。【外滩瑞府】首开119套房源全部售罄,去化率100%,劲销24.8亿+。
从俯览外滩全景的城市展厅亮相,到认购率超168%、首开即馨的优越表现,【外滩瑞府】持续以顶序瑞系产品力回应外滩,以热销数据印证百年价值高地上的一致选择。
外滩凝固百年中西文韵,北外滩擎动世界澎湃未来,而【外滩瑞府】开盘现场正是立江河交汇之处,热领着一场上海的塔尖奢居盛典。15:08分正式启幕的盛典,仿若与外滩百年回响,在时间刻度内,华润置地以一部融汇人文与匠艺的作品,让世界目光再一次聚焦外滩。
现场人潮涌动,座无虚席。他们选择【外滩瑞府】,是选择了世界视野下的中国坐标外滩,选择了一种与城市同频共振的人居理想。随着选房仪式的启幕,不断撕下的销控贴,此起彼伏的热烈掌声,是市场最真诚的赞誉,更是对华润置地品牌与顶序瑞系产品力的至高印鉴。
上海豪宅现象级的热销,背后都遵循着严谨的产品逻辑。【外滩瑞府】的首开售罄,并非偶然,而是在天赋外滩之上,对空间、艺术、社区与服务进行全维度升华后,所呈现的一致臻选。
根据《上海市城市总体规划(2017-2035年)》,外滩、陆家嘴与北外滩,共同构筑了驱动上海迈向全球卓越城市的黄金三角。【外滩瑞府】,正坐落于这片融汇百年风华与未来雄心的外滩一公里。
北外滩地处浦江沿岸的战略中心节点,是世界航运巨头的集聚高地、财富管理的创新引擎、技术突破的策源核心,更是代表着上海金融时代3.0。【外滩瑞府】不仅坐享外滩荣光,更与北外滩的世界级未来高地形成共振。
项目二批次10月28日开盘,但当天销售数据未公布,根据前面的排号来看,79组认筹客户参与选房,就按30%弃号率计算,整体去化率不足40%!
首开光芒万丈,再开遇冷,三开滞销,难道北外滩豪宅也逃脱不了当下上海楼市的宿命?
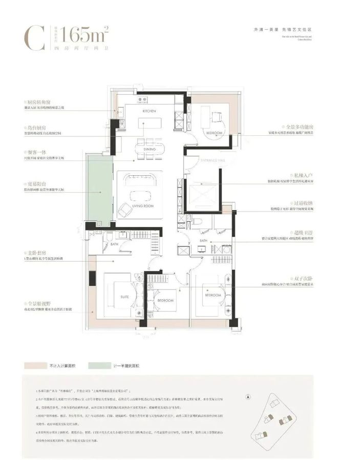
整体动静分区的格局下,U型厨房不只是烹饪场域,更因融入“社交属性”而成为家庭互动的温情角落,烹饪的同时可与客厅的家人交流。
三间卧室更是将“大”落到实处,面宽近乎均等设计,且全部超过3米,在120㎡级户型普遍存在次卧面宽不足3米的市场现状下,这样的尺度彻底打破了主次之分,没有谁的房间在采光、视野上被妥协,实现了家庭成员居住上的“平权”,孩子的房间能放下书桌与玩具柜。
还有一个我很喜欢的设计,北房间无墙垛设计,几乎一整面都是窗,大大增加了通透性。
同样近乎等面宽的卧室尺度,让每个家庭成员都能拥有独立且舒适的休憩领地,三卧朝南的布局,让阳光成为所有人的平等馈赠,没有谁要为“主次”牺牲采光权。
而“大”还体现在公共空间的开阔,岛台厨房、餐厅、客厅与阳台动线流畅,二胎共同玩耍也绰绰有余。
约270°视野的贯穿更是锦上添花,主卧、北向次卧、厨房的约270°转角飘窗,让每个空间里的人都能平权地拥抱城市景致。
主卧套房的L型衣帽间与卫生间,公卫四分离设计,在保证“大”尺度的同时,更让每个人的生活需求都被妥帖照顾。
显然,外滩瑞府户型深谙豪宅之道:“大” 不是盲目堆砌面积,而是让每个空间都有足够的舒展度;“平权” 不是口号,而是通过面宽、采光、视野的均等分配,让家庭里的每一个人,都能在空间里找到被尊重的舒适。这正是华润置地深入研读豪宅客群需求后,交出的完美答卷——在这里,大空间与平权生活,从来不是选择题。
不同于市面上门是门,框是框,墙是墙,看房时“五颜六色”。外滩瑞府室内采用一体化设计语言,实现空间、色彩与材质的协调统一。比如:
✔入户门原创设计,外面深色木纹,里面浅色云母,和玄关柜、大理石地砖很搭配。
装修上配备国际一线品牌,尤其厨房由嘉格纳领衔,配备灶具、吸油烟机、洗碗机、冰箱蒸烤箱。
根据设计方案显示,项目拟建4幢24-31层高层住宅以及1幢总高3层的风貌建筑
GOA大象、TROP、渡边智昭、吴滨、李益中5大全球顶尖设计天团,共同打造了上海首个艺术馆里的花园豪宅
外滩瑞府营销中心电线大艺术花园,不仅让每栋楼都享受“楼王”的待遇,且自然勾勒出一条漫游式的公园归家动线(黄色线条走向)
马奈的日光草坪 、莫奈的睡莲水湾 、雷诺阿的缤纷花园……在这里尽有尽有。
景观与空间相互渗透,将艺术融入日常,尽可能地将园林景观纳入室内,平衡公共性与私密性。
不仅如此,地库也通过石材、金属、玉石的转换运用,呈现满满的艺术感,让每一次归家都极尽仪式感。
三重归家体验,每一处空间都是一个艺术品,每一步归家路都是穿越时空的审美旅程。
交通方面:项目距离10号线 站直通新天地,还可换乘 2/12 号线,轻松直抵陆家嘴;同时毗邻海伦路站,4/10/19 号线(在建)在此交汇,内环重要节点随心可达。
自驾:从项目出发,经新建路隧道直连陆家嘴,借吴淞路 - 外滩隧道畅联黄浦核心。
项目约2公里内多元繁华构筑封面商业圈,北外滩商圈直线米;外滩商圈直线米;陆家嘴商圈直线米;瑞虹商圈直线米。
三公里内四所三甲医院,全生命周期护航,新华医院(儿科专长);复旦大学附属妇产医院;上海市第一人民医院;上海东方医院(血管外科专长)。
幼儿园:约1公里内6所幼儿园(直线距离),涵盖东余杭路幼儿园等3所示范级学校;
小学:约1.5公里内5所小学(直线距离),涵盖区重点四川北路第一小学;
2.5公里北外滩滨江绿地(约800m直达),四川北路公园、和平公园、鲁迅公园3大公园环伺,于滨江和城市低密绿芯之间,肇启当代诗意生活传序。
与之形成强烈对比的是,新房市场在高端项目集中备案的带动下,走出了一轮“量价齐涨”的结构性行情。
二手房挂牌量依旧稳居高位。据上海网上房地产数据,截至10月27日,全市二手住宅挂牌总量已达358592套,供应规模持续扩大,去化压力不减。
从区域分布看,浦东新区以92801套的挂牌量稳居首位;闵行区以42057套位列第二;宝山区则以37218套排名第三。核心区域与近郊区域的供应放量,进一步加剧了市场的竞争态势。
价格方面,市场仍面临下行压力。根据诸葛找房数据研究中心的监测,上周上海二手住宅市场均价为59431元/平方米,环比下降0.4%,延续了近期的回调态势,显示出业主预期持续松动,通过价格让步以加速成交已成为普遍策略。
与二手房市场的“以价换量”不同,上海新房市场在上周表现亮眼,呈现量价齐升态势。
紧随其后的项目是位于松江新城板块的国贸海上原墅,上周该项目共完成网签46套房源,签约总面积为5929平方米。该项目于10月15日开盘,推售房源141套。
此外,上周表现突出的项目还包括宝山松南板块的江湾金茂府,该项目上周网签28套房源,共3745平方米。
其中,全新盘共3个,分别为悦97、金隅公园东序、贝涟C1。以贝涟C1为例,推出144套房源,认购率61%,首开去化率约56%,项目在认购期间推出95折优惠,并在开盘当天附加“1万买车位”的促销手段。
认购市场整体表现平淡。上周共有江湾金茂府、金茂棠前、中环置地中心望雲、招商林屿湖畔、润雲金茂府、金茂璞元、象屿天宸雅颂7个项目认购。
其中,金茂璞元收获110余组意向认购,认购率为104%;江湾金茂府项目认购期间获得100余组意向认购,认购率98%;金茂棠前收获100余组意向认购,认购率为62%;象屿天宸雅颂收获10余组意向认购,认购率为56%;润雲金茂府不到10余组意向认购,认购率为75%。
在新房公示方面,上周共有5个项目入市,总计推出499套房源,上市面积76,797㎡,总货值约76.38亿元,分别位于浦东新区、黄浦区、静安区、杨浦区以及宝山区。
上海中原地产市场分析师卢文曦指出,成交稳步释放意料之中,但市场温度似乎并不高,成交前十榜单中没有出现网签过百套的项目是指标之一。一方面受到供应端牵制,近期虽然供应有所恢复,但投放忽高忽低,影响成交稳定释放。另一方面,郊区只有宝山,青浦近期表现相对稳定,松江、嘉定这些传统交易大户反弹力度不够,无法形成合力共振,也限制了成交向上的空间。
不过上周消息面释放重重暖意,中国前三季度经济数据表现良好;上海的经济数据也在持续发力,尤其是房地产开发投资增长2.2%;上周土拍热门地块继续刷新区域价格记录。这些都会对市场信心起到支撑作用,因此后续交易有望看高一线。
王家卫录音风波再升级,李立群评论王家卫根本不懂什么叫宗师,向太称王家卫从不给演员高价“不知道他钱去哪儿了”
贵州农妇反抗猥亵被杀害抛尸用巨石压住,凶手淡定参与找人,一个细节令人起疑
特朗普回应印度裔马姆达尼当选纽约市长:出乎意料,他得对我客气点;马姆达尼曾称将“对抗”特朗普
网红街区墙体垮塌遇难女孩已被安葬,怀孕为不实传言,男友:憧憬和她未来买房结婚
机械革命极光X游戏本上新酷睿i5 - 14450HX版本,售价6499元
国补后6000-8000元游戏本推荐:微星神影16领衔 兼顾性能与性价比
简体中文
