从俯览外滩全景的城市展厅亮相,到认购率超168%、首开即馨的优越表现,【外滩瑞府】持续以顶序瑞系产品力回应外滩,以热销数据印证百年价值高地上的一致选择。
上海豪宅现象级的热销,背后都遵循着严谨的产品逻辑。【外滩瑞府】的首开售罄,并非偶然,外滩瑞府售楼处电线小时热线即刻预约快人一步而是在天赋外滩之上,对空间、艺术、社区与服务进行全维度升华后,所呈现的一致臻选。
根据《上海市城市总体规划(2017-2035年)》,外滩、陆家嘴与北外滩,共同构筑了驱动上海迈向全球卓越城市的黄金三角。外滩瑞府售楼处电线小时热线即刻预约快人一步【外滩瑞府】,正坐落于这片融汇百年风华与未来雄心的外滩一公里。
真正的外滩生活,是转角即艺术的每日邂逅,是一砖一石的海派历史际遇,是看遍外滩四季的丰盛窗景。
百年建筑是历史的教科书,画廊的落地窗是流动的美术馆,外滩成了散步即达的艺术课堂。
是不赶时间的主人心态,是落日余晖为江面镀上金色,也在家独揽陆家嘴的繁华夜景。
百年里弄里传来的即兴爵士演奏旋律,流动在虹口港,也自然流淌进生活,九龙路的美,专属于每日漫步其间的归者。外滩瑞府售楼处电线小时热线即刻预约快人一步
始于礼、归于心的全时守护,将全球资源化为“无界生活场”,与世界的广阔与丰盛从容联结。外滩瑞府售楼处电线小时热线即刻预约快人一步
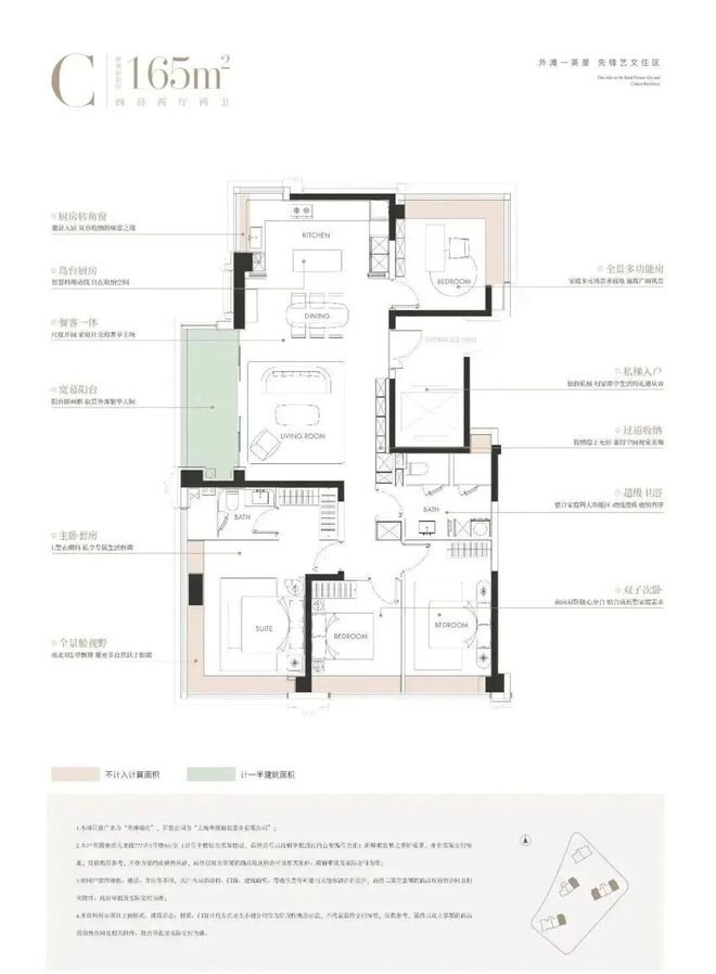
整体动静分区的格局下,U型厨房不只是烹饪场域,更因融入“社交属性”而成为家庭互动的温情角落,烹饪的同时可与客厅的家人交流。
三间卧室更是将“大”落到实处,面宽近乎均等设计,且全部超过3米,在120㎡级户型普遍存在次卧面宽不足3米的市场现状下,这样的尺度彻底打破了主次之分,没有谁的房间在采光、外滩瑞府售楼处电线小时热线即刻预约快人一步视野上被妥协,实现了家庭成员居住上的“平权”,孩子的房间能放下书桌与玩具柜。
还有一个我很喜欢的设计,北房间无墙垛设计,几乎一整面都是窗,大大增加了通透性。
同样近乎等面宽的卧室尺度,让每个家庭成员都能拥有独立且舒适的休憩领地,三卧朝南的布局,让阳光成为所有人的平等馈赠,没有谁要为“主次”牺牲采光权。
而“大”还体现在公共空间的开阔,岛台厨房、餐厅、客厅与阳台动线流畅,二胎共同玩耍也绰绰有余。
约270°视野的贯穿更是锦上添花,主卧、北向次卧、厨房的约270°转角飘窗,让每个空间里的人都能平权地拥抱城市景致。
主卧套房的L型衣帽间与卫生间,公卫四分离设计,在保证“大”尺度的同时,更让每个人的生活需求都被妥帖照顾。
显然,外滩瑞府户型深谙豪宅之道:“大” 不是盲目堆砌面积,而是让每个空间都有足够的舒展度;“平权” 不是口号,而是通过面宽、采光、视野的均等分配,让家庭里的每一个人,外滩瑞府售楼处电线小时热线即刻预约快人一步都能在空间里找到被尊重的舒适。这正是华润置地深入研读豪宅客群需求后,交出的完美答卷——在这里,大空间与平权生活,从来不是选择题。
不同于市面上门是门,框是框,墙是墙,看房时“五颜六色”。外滩瑞府室内采用一体化设计语言,实现空间、色彩与材质的协调统一。比如:
✔入户门原创设计,外面深色木纹,里面浅色云母,和玄关柜、大理石地砖很搭配。
装修上配备国际一线品牌,尤其厨房由嘉格纳领衔,配备灶具、吸油烟机、洗碗机、冰箱蒸烤箱。
地块总占地面积14280.63㎡,容积率3.87,总建筑面积86241㎡。
根据设计方案显示,项目拟建4幢24-31层高层住宅以及1幢总高3层的风貌建筑
作为华润置地产品线的皇冠明珠,「瑞系」自诞生便以钻石级选址标准划定豪宅基因。
项目整体建筑非简单复古,而是以风貌底盘一立面建筑一顶部塔冠的三重结构向上生长,呼应过去一现在一未来的时代叙事。
底盘与街区尺度融合,住户能在风貌街区之中感受历史风情,回到社区则延伸现代先锋生活,一层层传递居住的时序张力。
在寸土寸金的外滩,外滩瑞府一举将尺度宏大的中央花园置于社区核心,围绕它,楼栋与边界自然形成“园中有园”的小场域,每一处转角都是景观停留。
泛会所+全域风雨连廊体系覆盖四栋楼,实现真正的“居者无惧风雨、舒适回家感”。花园、外滩瑞府售楼处电线小时热线即刻预约快人一步连廊与泛会所流线构成了一套理性而奢阔的私属社交系统,丰富了社区维度,也实现了“景观最大化、采光最大化、视线最大化”的规划理念
外滩瑞府是我见过最舍得在设计上下血本的项目,集结了GOA大象、TROP、渡边智昭、吴滨、外滩瑞府售楼处电线小时热线即刻预约快人一步李益中5大全球顶尖设计天团,共同打造了上海首个艺术馆里的花园豪宅
其中,公区分别由渡边智昭和吴滨设计,二人曾操刀汤臣一品、翠湖天地等高端项目。
公区整体设计风格上大胆突破,社区公园+架空层泛会所+艺术长廊+地下泳池会所,不仅构成了一个完整的顶豪公区体系,
外滩瑞府售楼处电线小时热线m面宽的气派门头+酒店式入户大堂,仪式感拉满的归家之从这里开始。
四栋塔楼,每个都有定制的艺术归家长廊 ,每栋架空层的主题也不相同。既满足日常休闲娱乐,又提供高端社交场域。
专属业主的会客天地,小业主的童玩天地、自然无界的运动空间,不同人群的习惯和爱好,都妥帖照顾。
外滩瑞府售楼处电线小时热线即刻预约快人一步社区约3000㎡的中心花园和6大艺术花园,不仅让每栋楼都享受“楼王”的待遇,且自然勾勒出一条漫游式的公园归家动线(黄色线条走向)
马奈的日光草坪 、莫奈的睡莲水湾 、雷诺阿的缤纷花园……在这里尽有尽有。
景观与空间相互渗透,将艺术融入日常,尽可能地将园林景观纳入室内,平衡公共性与私密性。
不仅如此,地库也通过石材、金属、玉石的转换运用,呈现满满的艺术感,让每一次归家都极尽仪式感。
三重归家体验,每一处空间都是一个艺术品,每一步归家路都是穿越时空的审美旅程。
自驾:从项目出发,经新建路隧道直连陆家嘴,借吴淞路 - 外滩隧道畅联黄浦核心。外滩瑞府售楼处电线小时热线即刻预约快人一步
小学:约1.5公里内5所小学(直线距离),涵盖区重点四川北路第一小学;外滩瑞府售楼处电线小时热线即刻预约快人一步中学:约1.6公里内6所中学(直线所区重点。一路之隔上海虹口二中心小学外滩瑞府售楼处电线小时热线即刻预约快人一步(在建中),约2.3公里市重点上海外国语大学附属外国语学校(直线距离)*施教区及就学政策以教育部门规划为准外滩瑞府售楼处电线小时热线即刻预约快人一步
一方面,高校扩招致使学生宿舍出现缺口;另一方面,部分大学城周边却存在存量商品房过剩的情况。就在11月10日,教育部、住建部联合调研组实地调研湖北大学学生宿舍改造项目时表示,武汉城建·水岸(以下简称“水岸项目”)学生宿舍改造项目作为全国首个以购置存量房代建设学生公寓的创新实践,既有效盘活了市场存量资产、为房地产去库存提供了新思路,又精准破解了高校宿舍资源紧张的难题。
据每经记者了解,9个月前,湖北大学就宣布整体购置水岸项目5号、6号楼的352套存量房,用于学生住宿,新增学生住宿床位2800个,项目估算投资1.98亿元(含装修改造费),资金来源为争取中央预算内投资及学校自筹。此次收购的水岸项目毛坯房源均价,较开盘时折价比例超过35%。
与此同时,中国矿业大学、中南大学、合肥工业大学等高校也掀起“置业潮”,一场“一拍即合”的去库存行动在全国展开。
存量商品房“爆改”学生宿舍,湖北大学研二男生周南是第一批“尝鲜”入住的学生。今年9月,他和同学一起从武昌校区搬进了阳逻校区。
“每年住宿费1000多元,空调、热水齐全,配套设施比之前更新,居住体验感也更好”。11月7日,每经记者实地探访水岸项目时,正从宿舍楼出来的周南这样说道。
多位入住水岸项目的湖北大学学生告诉每经记者,目前入住的都是研究生,其中6号楼为男生宿舍,5号楼为女生宿舍。缴纳住宿费之后,不用额外支付物业费,宿舍楼栋安排有管理员,外卖人员可送餐上楼。
徐涛告诉每经记者,阳逻校区是学校今后建设与发展的重要校区,承担各学院的科研教学任务,因此对学生宿舍的需求量会越来越大。水岸项目与湖北大学阳逻校区仅一路之隔,直线米,步行从教学楼到小区仅10分钟。项目规划总建筑面积20.9万平方米,房屋共17栋,包含商业和住宅。据贝壳找房,该项目开盘时间为2021年5月,面积85—135平方米,毛坯房源开盘均价约7300元/平方米。
每经记者从武汉市住房和城市更新局查询获悉,水岸项目房源总计1606套,截至11月11日,已售出25套住房,尚有955套住房可供销售。
据武汉城建集团微信公众号,早在2023年3月,湖北大学负责人就曾赴水岸项目考察,与时任武汉城建集团负责人就阳逻校区学生公寓等问题进行现场交流。
“学校对周边的楼盘项目进行过充分调研,并与水岸等几处楼盘谈判。”徐涛表示,最终选择了与学校需求匹配度最高的水岸项目。
上述置业顾问还透露,湖北大学方面已与公司签订协议,购买了50套房源作为教师公寓。相比市场价格,项目与校方之间有协议价整体更优惠一些。
在水岸项目成功投入运营后,国内多家高校也相继发布采购需求,或整栋收购,或整体租赁社会用房,填补宿舍资源缺口。
今年9月,中国政府购买服务信息平台公示的教育部单一来源采购项目征求意见显示,合肥工业大学、中南大学、中国矿业大学购置存量房地产用作学生宿舍,三所高校合计预算金额达7.06亿元。
其中,合肥工业大学购置存量房地产用作学生宿舍项目的预算金额约1.18亿元,标的为合肥安居控股集团提供的翠湖壹号项目。
据介绍,合肥工业大学的宿舍面积缺口达到16.21万平方米,而学校及周边暂无合适的土地可供出让,短期内也无法快速解决宿舍资源不足的问题。翠湖壹号由龙湖集团开发建设,主体建筑已完成验收,与合肥工业大学翡翠湖校区仅隔两条马路。其中,1号楼是保障性租赁住房,有315个精装修房间,以小户型房源为主,学校整栋购置后可立即投入使用。
“这属于前期的单一来源采购公示,接下来还需要挂网、投标、开标、结果公示等一系列流程。”上述科室负责人介绍。
再看中国矿业大学徐州南湖校区,其学生宿舍面积缺口约13.76万平方米,校内没有可开发的土地,周边几公里范围内同样没有合适的土地出让,短期内达不到自建宿舍的条件。
南京安居建设集团一位内部人士向每经记者确认,关于中国矿业大学购置观山府房源事宜,目前正处在初步意向阶段。值得一提的是,中南大学是近期购置房产的高校中预算金额最高的。公告显示,中南大学采用单一来源方式,采购湖南旺德府投资开发有限公司(以下简称“旺德府”)提供的旺德府万象时代花园(一期)4号楼,预算金额约2.95亿元。
据中南大学计划财务处工作人员陈侣侣介绍,学校收购这处项目之前有过考察,具体进展以公告为准。旺德府一位招商负责人则表示,暂时不方便接受采访。每经记者调查发现,相比之下,校区位于市中心的高校,较多采取租赁方式解决宿舍不足的问题。比如,浙江大学拟在紫金港校区周边5公里范围内租赁社会用房,要求精装修拎包入住,提供床位不少于3000张。
10月23日,据浙江大学宿舍管理办公室一位工作人员介绍,正在选择供应商,房屋将主要用于2026级专业学位硕士研究生的宿舍。
中指研究院(华中)市场研究中心主任李国政表示,当前房地产行业销量下滑,企业普遍资金链紧张,应该是非常愿意一次性出售整栋楼的。对于部分高校而言,现阶段在远郊区域的校区自主拿地建宿舍,成本或许并不会低于购置存量房。
一位负责购置存量房地产业务的高校负责人向每经记者坦言,郊区房地产价格相比高峰时期大幅降低,是高校采取“以购代建”解决学生宿舍问题的原因之一。
比如,湖北大学此次收购的水岸项目毛坯房源,均价较开盘时折价约2700元/平方米,折价比例超过35%。而徐州观山府的备案均价约1.19万元/平方米,中国矿业大学预计收购均价约6397元/平方米。
2024年1月,国家发展改革委、教育部、财政部、住建部等七部门发布《关于加强高校学生宿舍建设的指导意见》,支持宿舍面积缺口大、具备新建条件的高校新建一批学生宿舍。同时,鼓励高校通过购买、租赁学校周边的人才公寓、商住楼等社会用房,补充宿舍资源,并按照校内同等标准,加强配套服务管理。
浙江大学的采购意向公告发出后,据万科泊寓相关负责人透露,公司第一时间就与该校进行了沟通接洽;葛洲坝地产杭州公司一位项目负责人也表示,十分关注该校的采购进展。不过,每经记者观察发现,在当下高校购买存量商品房用作学生宿舍的过程中,也存在一些实际问题有待解决。
首先,是收购预算与项目定价问题。比如,浙江大学紫金港校区附近一家开发商负责人在接受每经记者采访时表示,从采购意向公示价格来看,由于该校预算金额较低,而学校所在西溪板块的房屋租赁价格高,算不过账,公司后续不打算参与投标。
对此,首都经济贸易大学京津冀房地产研究院院长赵秀池教授认为,在现实操作中,存量房供应商与高校的需求及其预算可能有一定差距,但双方经过协商,还是有达成交易的可能。
其次,收购房源质量问题。上述高校的收购房源,多数为地方国资房企项目,也有民营房企楼盘。与学校自建宿舍不同,高校收购房源的质量会受到不同开发商的品控要求影响。
在赵秀池看来,高校收购或租赁存量房用作宿舍,有利于房地产去库存以及开发商回笼资金,促进企业实现良性循环。同时,此举有利于开发商向高校拓展产业链,包括物业服务、装修改造等,也便于发现高校潜在的客户需求,开发商由此树立良好形象,提升品牌和社会地位。
特别声明:以上内容(如有图片或视频亦包括在内)为自媒体平台“网易号”用户上传并发布,本平台仅提供信息存储服务。
官媒亲宣、46岁邓超再破天花板,全家移民传闻5个月前就线吨重卡抛锚滞留青藏线次终遇热心卡友,对方硬抗-20℃低温1小时救助,网红“卡车张优秀”全网寻人
10战9败!快船惨负魔术吞3连败 哈登三节31+5+8祖巴茨14+19
摩托罗拉Moto G Stylus (2026)真机图曝光:窄边框直屏,三摄设计
华为打通苹果生态!鸿蒙星河互联App上架App Store:支持文件互传
哈趣H3 Ultra Max:120Hz高刷+哈曼音质打造千元价位投影仪天花板
简体中文
