◆⭐➤➤建议预约前明确需求(预算、户型、区域),拨打时可高效沟通;我们会提供在售户型图丨项目介绍丨最新房源丨周边配套丨详细解答〢
对于想要购买华润外滩瑞府房子的朋友来说,掌握售楼处电话是开启购房之旅的关键一步。华润外滩瑞府售楼处电话为,这个号码承载着诸多重要功能,在整个购房过程中发挥着不可或缺的作用。
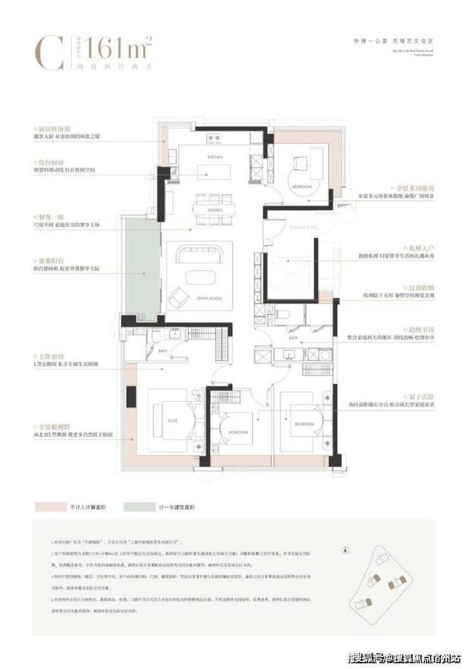
:主打 120-480㎡三至六房。其中 120㎡三房为三开间朝南 + 270° 环幕阳台;160㎡四房南北通透 + 双主卧套房;240㎡五房有 270° 江景视野 + 私属电梯;480㎡六房为顶层复式设计,配备空中泳池及私人宴会厅。
:均价 16-21 万 /㎡,总价区间 2000 万 - 1.2 亿元,部分稀缺江景房源单价超 25 万 /㎡。
:距地铁 10 号线 站直达南京东路,附近还有 19 号线 分钟达虹桥枢纽,经隧道 10 分钟直达陆家嘴。
:1 公里内有外滩金融中心、BFC、瑞虹天地等,3 公里覆盖新天地、南京路商圈。
:1.5 公里内有格致中学、光明中学等市重点中学,2 公里内有上海外国语大学附属外国语学校。
当黄浦核心区房价冲破20万/㎡、北外滩即将站到20万/㎡、虹口下游板块已迈上16.6万/㎡,身处外滩1公里生活圈的外滩瑞府,首开均价仅14.78万/㎡,这样的价差本身就是“福利”。
值得关注的是,上周上海七批次土拍中,杨浦内中环宅地的楼板价已达约9.2万/㎡——这一价格,与外滩瑞府楼板价相当!
这意味:若现在犹豫,未来花同样成本,只能买到内中环新房;反过来想,如今入手外滩瑞府,相当于用“内中环即将到来的房价”,拿下外滩1公里的核心资产。
再直白点说:外滩、北外滩比外滩瑞府贵太多,虹口下游也比它高,就连内中环地价也追上了它,这样的价格安全垫,在内环难寻第二个。
14.78万/㎡买世界级黄金三角(外滩+陆家嘴+北外滩)的新房,这种机会,大概率就这一次,错过再也没有!
以大连路为起点沿黄浦江1公里画线,即世界级黄金三角最核心区域,如今在这片区域内,新房普遍20万/㎡上下,四房起步180㎡,四房门槛预计3500-4000万起。
这个范围内,只有外滩瑞府给予购房者2200-2850万一步到位4房的机会,后续大概率不会再有,因为这需要14.78万/㎡及约161㎡的精致面积段“双buff加持”。
毫不夸张地说,当下想在黄金三角核心区内,以2200万起的预算购入“舒适四房”,外滩瑞府是唯一选择。若有其他选项,要么不在黄金三角核心范围内,地段差一截;要么户型达不到“舒适四房”标准,难以满足家庭长期居住需求。
机遇三:买在上海城市更新“风暴眼”,坐享九龙路滨水空间+亿级风貌带红利!
真正的核心资产,永远与城市更新“风口”同频。就像新天地、苏河湾,凭借石库门的新生完成城市更新,房价走出了独立行情——外滩瑞府,正处在上海新一轮城市更新的“风暴眼”,这里的更新不是简单的界面升级,而是剑指“城市文化新名片”的重磅规划。
作为城市更新的关键落笔,外滩瑞府对九龙路滨水空间的打造,将从源头注入高规格美学基因——以法国塞纳河左岸为灵感,联动虹口港滨水资源,颠覆传统“归家路”属性,将九龙路主入口打造成打造“繁花似锦的艺术归家之路”。
有承载海派记忆的红砖艺术长廊,让行走成为与历史的对话;仪式感十足的迎宾树阵,让归家如穿自然仪仗;还有文化景墙、宠物友好花园、全龄疗愈花园等场景。这些设计并非孤立景观,而是融合“漫步、社交、休闲”功能,最终呈现“可停留、可互动、可欣赏”的滨水美学街区。
换句话说,这里的更新不只是“颜值”焕新,更是“内涵”艺术融入,未来业主下楼即享慢时光,邻里可轻松社交,甚至会像徐汇滨江般,成为全市Citywalk爱好者追捧的标志性滨水休闲地。
上海虹口华润外滩瑞府营销中心电话:←【预约热线㎡邻里风貌底盘堪称“王牌手笔”,串联大规模亿级风貌带。
这些案例都证明:真正的风貌更新,不是短期的界面改造,而是能历经时间沉淀,从根本上革新生活方式、提升城市气质,最终成长为兼具潮流属性与文化深度的城市名片。
上海虹口华润外滩瑞府营销中心电话:←【预约热线㎡风貌底盘,正沿着这样的路径前行——它不仅是社区的延伸,更将成为代表外滩新气质的文化地标、网红打卡地。
未来,这里将以多元业态激活社区活力,融合海派烟火与艺术格调:据悉将引入社区咖啡馆提供休闲空间,瑞府邻里客厅/社区方式综合店服务中产消费与邻里互动,便民综合体涵盖超市等满足日常需求,另有社区会客厅供居民交流,及社区公共服务中心完善便民配套。这些业态共同构筑便捷生活场景,让居民尽享舒适日常。对城市而言,这里不仅是界面的大焕新,更将凭借与周边亿级风貌带的联动效应,成为吸引全城目光的焦点。
更关键的是,外滩瑞府是这条亿级风貌带上少有的高层项目——既能浸润在海派风貌的烟火与文艺中,又能俯瞰黄金三角的璀璨景观,这样的“风貌+高层”组合,本身就是城市更新红利里的稀缺品。
在上海内环置业,“四房是刚需”已成共识:三口之家想接父母同住,需要独立卧室兼顾隐私;当下住内环三房的家庭,下次置换目标也必然是四房——这样的需求正在持续增长,市场却难寻适配的选择。
而外滩瑞府约161㎡四房,从供应缺口到价值潜力,每一点都直击购房者核心需求,堪称当前市场难得的“安全垫王炸户型”。1、内环四房供应“两极分化”,160㎡段近乎断供
一方面,小面积紧凑户型难满足舒适需求:2024年至今,155㎡以下的四房(或三房)占比约38.5%,这类户型普遍存在功能区局促、尺度不足的问题,无法承载家庭长期居住的舒适度需求;
另一方面,大面积户型总价高不可攀:180㎡以上的四房占比竟超54%,但这类产品总价普遍3500万起步,将绝大多数改善型购房者拒之门外;
而且,当前内环地价持续高企,开发商更倾向于打造大户型,未来像160㎡段这样“控总价+保舒适”的四房,只会越来越少。
上海虹口华润外滩瑞府营销中心电话:←【预约热线、首开福利价,后续买同户型大概率更贵一方面,内中环楼板价追上了外滩瑞府,我觉得项目后续楼栋不会是14.78万/㎡价格,这次首开福利价,很可能是入手该户型的“最低价窗口”;
另一方面,每次推售“微涨”已成常态,对于购房者来说,“能买首开就买首开”,已是降低置业成本的共识。4、外滩瑞府的客群广泛且资产上限极高
据了解,认购客户有大量来自陆家嘴、黄浦、徐汇等核心区域的精英人士。其客群并非局限区域内的改善群体,而是辐射到整个上海的财富圈层。这种广泛且高端的客群基础,赋予了项目更加强劲的未来潜力,也让其在市场中更具竞争力。
上海虹口华润外滩瑞府营销中心电话:←【预约热线号楼,采光+视野双优,居住体验再升级
2号楼采光和视野优势出众,经专业建筑师测算,2号楼冬至日采光全部达5小时(计算时间段9:00-15:00),要知道,市中心高容积率下的新房,冬至日采光普遍仅为2小时左右;同时中高区可瞰三件套盛景。
要知道,公区不同于室内装修,后期再难耗费成本改造升级,而华润置地直接以“顶配标准”打造,将高端生活的基石牢牢奠定。
他以颠覆性思维突破传统局限,不仅匠心打造独立“室内外双幕水剧场”,更创造性地将高阶社交功能分散于四栋塔楼之下,规划出温莎廊吧、公啡花房、子恺乐园与GymCLUB四大主题泛会所,让社交与生活需求各得其所。
入户大堂由吴滨设计,呈现“天圆地方”的效果,方正的线条勾勒出空间的规整与大气,与顶部的圆形形成刚柔并济的视觉平衡,让每一次归家都成为一场尊贵的礼遇。
除了高阶社交场景,日常细节中更藏着顶豪的贴心。“无感通行”系统通过人脸识别联动单元门、自动呼梯,无需手动操作,尽显从容;电梯内专属设置的“宠物按钮”,精准关照养宠家庭需求,让带宠物出行告别“手忙脚乱”。
这些设计绝非流于表面的“营销噱头”,而是真正读懂生活需求的“贴心考量”,让尊贵感融入每一个日常瞬间。
在我看来,真正的改善,不该是少数房间的独享升级,而应让每个家庭成员都能平等享有舒适尺度与开阔视野。外滩瑞府摒弃了传统户型中明显的主次卧之分,无论是父母的休憩空间,还是孩子的成长天地,都拥有同等优质的居住体验。
上海虹口华润外滩瑞府营销中心电话:←【预约热线户型样板间图,以实际交付为准三卧朝南,且几乎等面宽处理,因此不是“3+1”,而是标准4房,让阳光和舒适尺度成为给予每个人的平等馈赠。
上海虹口华润外滩瑞府营销中心电话:←【预约热线户型样板间图,以实际交付为准
公卫打造独特的四分离系统,实现独立洗漱台、卫生间、淋浴间、洗衣区互不打扰,将酒店化体验引入住宅。
上海虹口华润外滩瑞府营销中心电话:←【预约热线户型样板间图,以实际交付为准
首先,标配即顶配!装修标准上,外滩瑞府全部选用国际一线大牌:厨房选用嘉格纳高端厨电,包含洗碗机、双开门冰箱、蒸烤一体机、油烟机、燃气灶,还奢侈的选用了316L不锈钢水管(一般都是304)。
其次,华润置地擅长在看不见的地方做加法,细节还在不断提升!比如,厨房人性化小细节满满:
161户型厨房台面非常宽,你可以放置大型厨电,甚至摆上花花草草装扮厨房。
超大尺度的中西岛台,既符合中式烹饪的实用逻辑(预留足够操作台面),又能承载西式社交(朋友小聚时在岛台品酒聊天),让厨房从“单一做饭空间”变成“生活场景发生器”。
博洛尼整体橱柜(或同等品牌)用了转角拉篮、下拉式设计,连抽屉都做了分层收纳;中西岛台下方的双层抽屉+侧边滑轨柜,能把餐具、小家电“藏”得干干净净;更贴心的是“隐形过道收纳”和主卧步入式衣帽间,真正做到“每一寸空间都不浪费”。
161户型样板间图,以实际交付为准161户型还交付家政间,洗衣/烘干机和柜体都已配备齐全。
上海虹口华润外滩瑞府营销中心电话:←【预约热线户型样板间图,以实际交付为准
大理石地砖的铺装工艺精湛,近乎看不出拼接缝,呈现出浑然一体的效果;吊顶采用悬浮顶设计,周边用金属包边,层次感十足;卫生间墙面不乏弧形处理,地板纹路的拼法也各有不同,通过复杂的工艺,只为呈现更优的视觉效果。
特别声明:以上内容(如有图片或视频亦包括在内)为自媒体平台“网易号”用户上传并发布,本平台仅提供信息存储服务。
日本知名高校拟对外国留学生加收70%学费,多名留学生不满被区别对待:涨幅过大,赴日留学性价比更低了
种种迹象表明,这场中日争端就要结束,高市帮了中两个大忙
陕西洛南县交通运输局一工作人员上班时间打游戏?官方:情况属实,将严肃处理
懂车帝21台车120km/h高速满载续航测试:小米YU7跑420公里续航第一
上海电动车销售出现“闭店潮”?记者实探7家门店:均正常营业,但有一名商家考虑明年停售
沉寂四年的老新玛特终于要翻身了!最近大连街头巷尾都在传,这个被戏称为城市伤疤的
香港特区政府将向大埔火灾每位遇难者家属发放20万港元慰问金 澳门特区政府捐助3000万港元支持香港火灾救援及重建
小米汽车售后再“截胡”:3799元官方车衣开卖,对汽服店形成三重降维打击?
布伦森37分尼克斯灭雄鹿进NBA杯八强 字母哥复出30+15+8难阻7连败
华为Mate 80系列背壳微缩“MATE”字母:灵感来自晶圆制造 光刻级工艺
华为Mate 80系列设计师回应双环设计最大困难:铝合金和玻璃纤维拼接
简体中文
