华润外滩瑞府坐落于虹口区北外滩 1 公里核心圈,与外滩直线 米,同陆家嘴、前滩构成 “黄金三角”,坐享北外滩 480 米浦西第一高楼及超高层建筑群规划红利。这里既是上海 “一江一河” 战略的核心承载区,又浸润着百年海派文脉,保留的风貌建筑将植入文化艺术分馆等业态,营造 “高级烟火气” 的街区氛围。
交通网络四通八达,距地铁 10 号线 站至陆家嘴,规划中的 19 号线更将升级出行便利;自驾经北外滩隧道 15 分钟可达浦东核心区,轻松串联全城繁华。
从俯览外滩全景的城市展厅亮相,到认购率超168%、首开即馨的优越表现,【外滩瑞府】持续以顶序瑞系产品力回应外滩,以热销数据印证百年价值高地上的一致选择。✅华润外滩瑞府售楼处电话:✅︎✅︎✅
建筑设计:GOA 大象设计以 “多元编织” 手法,融合 Art Deco 线条、广式门面与红砖肌理,三段式立面从底部红砖到顶部金属冠冕,实现历史与未来的对话。
景观设计:TROP 大师打造六大印象派主题花园,“马奈的日光草坪”“莫奈的睡莲水湾” 让社区成为 “露天美术馆”,四季花木与风雨连廊构成流动的风景。
室内与公区:吴滨、李益中以 “摩登东方” 重塑空间,渡边智昭打造泛会所与泳池,艺术装置与光影交织,归家即是艺术之旅
上海豪宅现象级的热销,背后都遵循着严谨的产品逻辑。【外滩瑞府】的首开售罄,并非偶然,而是在天赋外滩之上,对空间、艺术、社区与服务进行全维度升华后,所呈现的一致臻选。
根据《上海市城市总体规划(2017-2035年)》,外滩、陆家嘴与北外滩,共同构筑了驱动上海迈向全球卓越城市的黄金三角。【外滩瑞府】,正坐落于这片融汇百年风华与未来雄心的外滩一公里。
真正的外滩生活,是转角即艺术的每日邂逅,是一砖一石的海派历史际遇,是看遍外滩四季的丰盛窗景。
百年建筑是历史的教科书,画廊的落地窗是流动的美术馆,外滩成了散步即达的艺术课堂。
✅上海华润外滩瑞府营销中心热线(官方预约看房热线 米内盒马鲜生(四川北路店),极速送达新鲜食材;
1.2 公里至北外滩来福士,LV、Gucci 等奢侈品牌与米其林餐厅 “甬府” 一站式满足高端需求;
✅华润外滩瑞府售楼处电话:✅︎✅︎✅✅上海华润外滩瑞府营销中心热线(官方预约看房热线)
百年里弄里传来的即兴爵士演奏旋律,流动在虹口港,也自然流淌进生活,九龙路的美,专属于每日漫步其间的归者。
✅华润外滩瑞府售楼处电话:✅︎✅︎✅✅上海华润外滩瑞府营销中心热线(官方预约看房热线种绮遇绿意丰饶,花木盎然;六幅世界名画散落成景,四季轮转里万物蓬勃生长。
是可翻阅的海派建筑诗晨光中的红洞石派新梦,亦有暮色渐沉之际,幕墙与塔冠倒映着天空的诗行。
✅上海华润外滩瑞府营销中心热线(官方预约看房热线 米处嘉兴路街道社区卫生服务中心解决日常诊疗,1.8 公里上海市第一人民医院(北院)的心血管科、眼科享誉沪上,2.5 公里新华医院儿科为孩子健康护航。教育方面,毗邻上海外国语大学附属外国语学校(市重点)等院校,规划中的九年一贯制学校(2028 年竣工)更添利好。
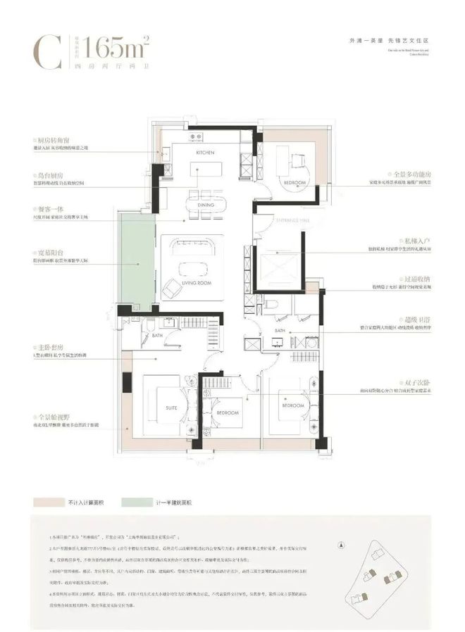
主力户型涵盖 121-161㎡全龄智能精装空间,部分高区房源可俯瞰江景与城市地标。户型采用三开间朝南 + 270° 环幕阳台设计,空间利用率超 85%,无柱化布局让光线自由穿梭。
是家人闲坐的充盈日常家人的欢声笑语,与窗外的天光云影交织,构成了生活里最动人的画面。
是一份从容托付的安心始于礼、归于心的全时守护,将全球资源化为“无界生活场”,与世界的广阔与丰盛从容联结。
是通向世界的入场卷艺术收藏的深度交流,投资智慧的思想碰撞,邻里相聚,共启高阶人生图景。
✅华润外滩瑞府售楼处电话:✅︎✅︎✅✅上海华润外滩瑞府营销中心热线(官方预约看房热线)
✅上海华润外滩瑞府营销中心热线(官方预约看房热线㎡灵阔舒居,入主外滩的优雅序曲
整体动静分区的格局下,U型厨房不只是烹饪场域,更因融入“社交属性”而成为家庭互动的温情角落,烹饪的同时可与客厅的家人交流。
三间卧室更是将“大”落到实处,面宽近乎均等设计,且全部超过3米,在120㎡级户型普遍存在次卧面宽不足3米的市场现状下,这样的尺度彻底打破了主次之分,没有谁的房间在采光、视野上被妥协,实现了家庭成员居住上的“平权”,孩子的房间能放下书桌与玩具柜。
还有一个我很喜欢的设计,北房间无墙垛设计,几乎一整面都是窗,大大增加了通透性。建面约165㎡光影韵界,平衡时间的艺术藏品
✅华润外滩瑞府售楼处电话:✅︎✅︎✅✅上海华润外滩瑞府营销中心热线(官方预约看房热线)
拥独立入户空间,私密入户同样近乎等面宽的卧室尺度,让每个家庭成员都能拥有独立且舒适的休憩领地,三卧朝南的布局,让阳光成为所有人的平等馈赠,没有谁要为“主次”牺牲采光权。
约270°视野的贯穿更是锦上添花,主卧、北向次卧、厨房的约270°转角飘窗,让每个空间里的人都能平权地拥抱城市景致。
主卧套房的L型衣帽间与卫生间,公卫四分离设计,在保证“大”尺度的同时,更让每个人的生活需求都被妥帖照顾。
显然,外滩瑞府户型深谙豪宅之道:“大” 不是盲目堆砌面积,而是让每个空间都有足够的舒展度;“平权” 不是口号,而是通过面宽、采光、视野的均等分配,让家庭里的每一个人,都能在空间里找到被尊重的舒适。这正是华润置地深入研读豪宅客群需求后,交出的完美答卷——在这里,大空间与平权生活,从来不是选择题。
不同于市面上门是门,框是框,墙是墙,看房时“五颜六色”。外滩瑞府室内采用一体化设计语言,实现空间、色彩与材质的协调统一。比如:
✔入户门原创设计,外面深色木纹,里面浅色云母,和玄关柜、大理石地砖很搭配。
装修上配备国际一线品牌,尤其厨房由嘉格纳领衔,配备灶具、吸油烟机、洗碗机、冰箱蒸烤箱。
2024年11月27日,华润置地以总价51.36亿元斩获虹口区C080301单元hk191A-03地块,成交楼面价92934元/㎡,溢价率11.97%,装修标准4000元/㎡!
地块总占地面积14280.63㎡,容积率3.87,总建筑面积86241㎡。
作为华润置地产品线的皇冠明珠,「瑞系」自诞生便以钻石级选址标准划定豪宅基因。
塔冠之于百老汇剧院式立面,是对历史文化的现代翻译。底盘与街区尺度融合,住户能在风貌街区之中感受历史风情,回到社区则延伸现代先锋生活,一层层传递居住的时序张力。
在寸土寸金的外滩,外滩瑞府一举将尺度宏大的中央花园置于社区核心,围绕它,楼栋与边界自然形成“园中有园”的小场域,每一处转角都是景观停留。
泛会所+全域风雨连廊体系覆盖四栋楼,实现真正的“居者无惧风雨、舒适回家感”。花园、连廊与泛会所流线构成了一套理性而奢阔的私属社交系统,丰富了社区维度,也实现了“景观最大化、采光最大化、视线最大化”的规划理念
公区整体设计风格上大胆突破,社区公园+架空层泛会所+艺术长廊+地下泳池会所,不仅构成了一个完整的顶豪公区体系,
也形成了艺术归家+公园归家+礼仪归家3大归家动线m面宽的气派门头+酒店式入户大堂,仪式感拉满的归家之从这里开始。
四栋塔楼,每个都有定制的艺术归家长廊 ,每栋架空层的主题也不相同。既满足日常休闲娱乐,又提供高端社交场域。
,时长00:15艺术沙龙的氛围空间,艺术展陈、业主沙龙、娱乐休闲都是这里的日常。
专属业主的会客天地,小业主的童玩天地、自然无界的运动空间,不同人群的习惯和爱好,都妥帖照顾。每栋楼的业主,都可以平等地享受到同样优质且方便的社区资源与功能配套。
✅上海华润外滩瑞府营销中心热线(官方预约看房热线大艺术花园,不仅让每栋楼都享受“楼王”的待遇,且自然勾勒出一条漫游式的公园归家动线(黄色线条走向)
马奈的日光草坪 、莫奈的睡莲水湾 、雷诺阿的缤纷花园……在这里尽有尽有。
景观与空间相互渗透,将艺术融入日常,尽可能地将园林景观纳入室内,平衡公共性与私密性。
3)地库礼仪归家不仅如此,地库也通过石材、金属、玉石的转换运用,呈现满满的艺术感,让每一次归家都极尽仪式感。
三重归家体验,每一处空间都是一个艺术品,每一步归家路都是穿越时空的审美旅程。
交通方面:项目距离10号线站直通新天地,还可换乘2/12号线,轻松直抵陆家嘴;同时毗邻海伦路站,4/10/19 号线(在建)在此交汇,内环重要节点随心可达。
自驾:从项目出发,经新建路隧道直连陆家嘴,借吴淞路 - 外滩隧道畅联黄浦核心。
三公里内四所三甲医院,全生命周期护航,新华医院(儿科专长);复旦大学附属妇产医院;上海市第一人民医院;上海东方医院(血管外科专长)。✅华润外滩瑞府售楼处电话:✅︎✅︎✅✅上海华润外滩瑞府营销中心热线(官方预约看房热线)
幼儿园:约1公里内6所幼儿园(直线距离),涵盖东余杭路幼儿园等3所示范级学校;小学:约1.5公里内5所小学(直线距离),涵盖区重点四川北路第一小学;
中学:约1.6公里内6所中学(直线所区重点。一路之隔上海虹口二中心小学(在建中),约2.3公里市重点上海外国语大学附属外国语学校(直线距离)*施教区及就学政策以教育部门规划为准✅华润外滩瑞府售楼处电话:✅︎✅︎✅
生态休闲:2.5公里北外滩滨江绿地(约800m直达),四川北路公园、和平公园、鲁迅公园3大公园环伺,于滨江和城市低密绿芯之间,肇启当代诗意生活传序。✅华润外滩瑞府售楼处电话:✅︎✅︎✅
✅华润外滩瑞府售楼处电话:✅︎✅︎✅✅上海华润外滩瑞府营销中心热线㎡全龄智能精装空间,部分高区房源可俯瞰江景与城市地标。户型采用三开间朝南 + 270° 环幕阳台设计,空间利用率超 85%,无柱化布局让光线自由穿梭。
Notice: The content above (including the pictures and videos if any) is uploaded and posted by a user of NetEase Hao, which is a social media platform and only provides information storage services.
一句话实现全网比价、点外卖、订车票,“豆包手机”遭抢购,现货被炒至7999元,溢价两倍多
90后清华女硕士驻村干部去世,驻村期间遍访全村20个村民小组,同事回应:她孩子还不到1岁
对话祁素彬:放高风筝后,也要不停的拽线超级增程首发华为DriveONE下一代增程发电机
简体中文
