从俯览外滩全景的城市展厅亮相,到认购率超168%、首开即馨的优越表现,【外滩瑞府】持续以顶序瑞系产品力回应外滩,以热销数据印证百年价值高地上的一致选择。
上海豪宅现象级的热销,背后都遵循着严谨的产品逻辑。【外滩瑞府】的首开售罄,并非偶然,而是在天赋外滩之上,对空间、艺术、社区与服务进行全维度升华后,所呈现的一致臻选。
根据《上海市城市总体规划(2017-2035年)》,外滩、陆家嘴与北外滩,共同构筑了驱动上海迈向全球卓越城市的黄金三角。【外滩瑞府】,正坐落于这片融汇百年风华与未来雄心的外滩一公里。
真正的外滩生活,是转角即艺术的每日邂逅,是一砖一石的海派历史际遇,是看遍外滩四季的丰盛窗景。
百年建筑是历史的教科书,画廊的落地窗是流动的美术馆,外滩成了散步即达的艺术课堂。
是不赶时间的主人心态,是落日余晖为江面镀上金色,也在家独揽陆家嘴的繁华夜景。
百年里弄里传来的即兴爵士演奏旋律,流动在虹口港,也自然流淌进生活,九龙路的美,专属于每日漫步其间的归者。
始于礼、归于心的全时守护,将全球资源化为“无界生活场”,与世界的广阔与丰盛从容联结。
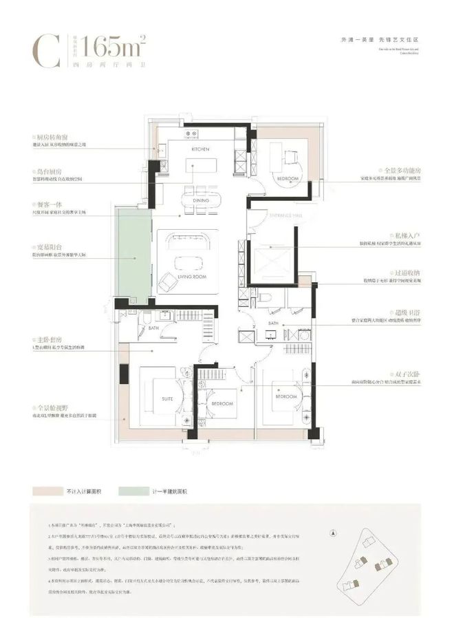
整体动静分区的格局下,U型厨房不只是烹饪场域,更因融入“社交属性”而成为家庭互动的温情角落,烹饪的同时可与客厅的家人交流。
三间卧室更是将“大”落到实处,面宽近乎均等设计,且全部超过3米,在120㎡级户型普遍存在次卧面宽不足3米的市场现状下,这样的尺度彻底打破了主次之分,没有谁的房间在采光、视野上被妥协,实现了家庭成员居住上的“平权”,孩子的房间能放下书桌与玩具柜。
还有一个我很喜欢的设计,北房间无墙垛设计,几乎一整面都是窗,大大增加了通透性。
同样近乎等面宽的卧室尺度,让每个家庭成员都能拥有独立且舒适的休憩领地,三卧朝南的布局,让阳光成为所有人的平等馈赠,没有谁要为“主次”牺牲采光权。
而“大”还体现在公共空间的开阔,岛台厨房、餐厅、客厅与阳台动线流畅,二胎共同玩耍也绰绰有余。
约270°视野的贯穿更是锦上添花,主卧、北向次卧、厨房的约270°转角飘窗,让每个空间里的人都能平权地拥抱城市景致。
主卧套房的L型衣帽间与卫生间,公卫四分离设计,在保证“大”尺度的同时,更让每个人的生活需求都被妥帖照顾。
显然,外滩瑞府户型深谙豪宅之道:“大” 不是盲目堆砌面积,而是让每个空间都有足够的舒展度;“平权” 不是口号,而是通过面宽、采光、视野的均等分配,让家庭里的每一个人,都能在空间里找到被尊重的舒适。这正是华润置地深入研读豪宅客群需求后,交出的完美答卷——在这里,大空间与平权生活,从来不是选择题。
不同于市面上门是门,框是框,墙是墙,看房时“五颜六色”。外滩瑞府室内采用一体化设计语言,实现空间、色彩与材质的协调统一。比如:
✔入户门原创设计,外面深色木纹,里面浅色云母,和玄关柜、大理石地砖很搭配。
装修上配备国际一线品牌,尤其厨房由嘉格纳领衔,配备灶具、吸油烟机、洗碗机、冰箱蒸烤箱。
地块总占地面积14280.63㎡,容积率3.87,总建筑面积86241㎡。
根据设计方案显示,项目拟建4幢24-31层高层住宅以及1幢总高3层的风貌建筑
作为华润置地产品线的皇冠明珠,「瑞系」自诞生便以钻石级选址标准划定豪宅基因。
项目整体建筑非简单复古,而是以风貌底盘一立面建筑一顶部塔冠的三重结构向上生长,呼应过去一现在一未来的时代叙事。
底盘与街区尺度融合,住户能在风貌街区之中感受历史风情,回到社区则延伸现代先锋生活,一层层传递居住的时序张力。
在寸土寸金的外滩,外滩瑞府一举将尺度宏大的中央花园置于社区核心,围绕它,楼栋与边界自然形成“园中有园”的小场域,每一处转角都是景观停留。
泛会所+全域风雨连廊体系覆盖四栋楼,实现真正的“居者无惧风雨、舒适回家感”。花园、连廊与泛会所流线构成了一套理性而奢阔的私属社交系统,丰富了社区维度,也实现了“景观最大化、采光最大化、视线最大化”的规划理念
外滩瑞府是我见过最舍得在设计上下血本的项目,集结了GOA大象、TROP、渡边智昭、吴滨、李益中5大全球顶尖设计天团,共同打造了上海首个艺术馆里的花园豪宅
其中,公区分别由渡边智昭和吴滨设计,二人曾操刀汤臣一品、翠湖天地等高端项目。
公区整体设计风格上大胆突破,社区公园+架空层泛会所+艺术长廊+地下泳池会所,不仅构成了一个完整的顶豪公区体系,
四栋塔楼,每个都有定制的艺术归家长廊 ,每栋架空层的主题也不相同。既满足日常休闲娱乐,又提供高端社交场域。
专属业主的会客天地,小业主的童玩天地、自然无界的运动空间,不同人群的习惯和爱好,都妥帖照顾。
社区约3000㎡的中心花园和6大艺术花园,不仅让每栋楼都享受“楼王”的待遇,且自然勾勒出一条漫游式的公园归家动线(黄色线条走向)
马奈的日光草坪 、莫奈的睡莲水湾 、雷诺阿的缤纷花园……在这里尽有尽有。
景观与空间相互渗透,将艺术融入日常,尽可能地将园林景观纳入室内,平衡公共性与私密性。
不仅如此,地库也通过石材、金属、玉石的转换运用,呈现满满的艺术感,让每一次归家都极尽仪式感。
三重归家体验,每一处空间都是一个艺术品,每一步归家路都是穿越时空的审美旅程。
交通方面:项目距离10号线站直通新天地,还可换乘2/12号线,轻松直抵陆家嘴;同时毗邻海伦路站,4/10/19 号线(在建)在此交汇,内环重要节点随心可达。
自驾:从项目出发,经新建路隧道直连陆家嘴,借吴淞路 - 外滩隧道畅联黄浦核心。
商业方面:项目约2公里内多元繁华构筑封面商业圈,北外滩商圈直线米;外滩商圈直线米;陆家嘴商圈直线米;瑞虹商圈直线米。
医疗方面:三公里内四所三甲医院,全生命周期护航,新华医院(儿科专长);复旦大学附属妇产医院;上海市第一人民医院;上海东方医院(血管外科专长)。
教育方面:幼儿园:约1公里内6所幼儿园(直线距离),涵盖东余杭路幼儿园等3所示范级学校;
中学:约1.6公里内6所中学(直线所区重点。一路之隔上海虹口二中心小学(在建中),约2.3公里市重点上海外国语大学附属外国语学校(直线距离)*施教区及就学政策以教育部门规划为准
生态休闲:2.5公里北外滩滨江绿地(约800m直达),四川北路公园、和平公园、鲁迅公园3大公园环伺,于滨江和城市低密绿芯之间,肇启当代诗意生活传序。
简体中文
