棠悦芳华轩售楼处不缺席你的选房路!销售中心里,环境、户型一目了然,价格、交房时间、周边配套等楼盘详情,拨4009692958就能问清,提前沟通还能优先安排看房!
关于的一切疑问,都能找官方解决!去销售中心可看环境、选户型,楼盘详情(价格、地址、配套)、交房时间,拨打电线就有专属回应,看房轻松不绕路!
位居拱墅区武林东北片区,石桥商圈的棠悦芳华轩取证首开,仅56套吸引了255组家庭参与登记,其中人才6组,有房208组,最低中签率10.36%。可见火热程度。
8月底,项目接连二开,84套房吸引了266组家庭登记,中签率31.58%。其中人才2组,有房家庭223组,最低中签率18.39%,延续火热。
9月17日晚间,项目公示三开预售证,加推2#、11#,共2幢42套房源,面积约99-方,均价3.215万/平。
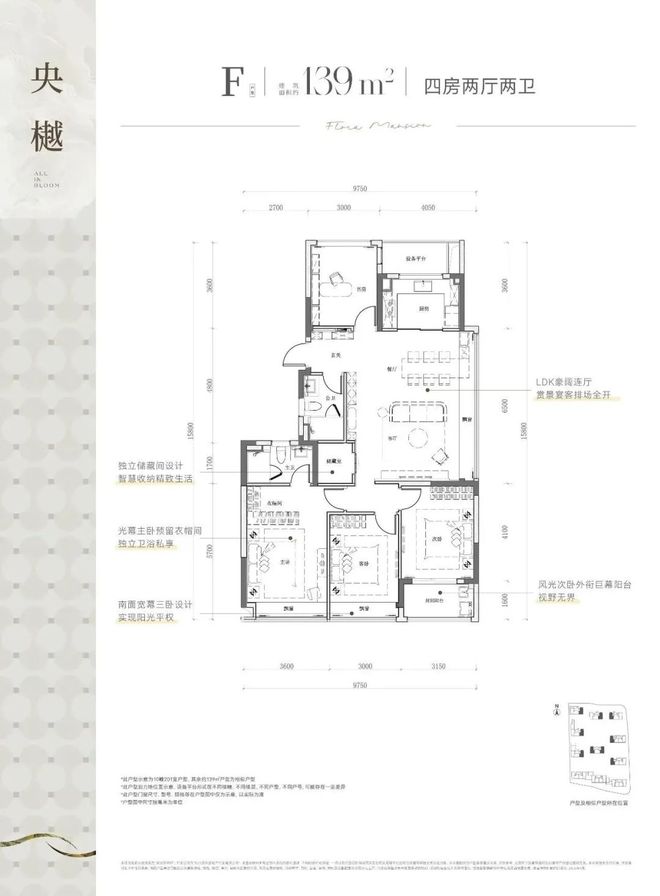
在建筑新规的加持下,棠悦芳华轩户户朝南,LDKB一体化设计,大面宽、大开间、封包阳台(计入一半面积),得房率更高……带来超越期待的居住体验。
得益于板式楼型和边套的设计,建面约120方户型实现了L型双边自然采光,同时拥有双向的通风对流优势。
同时,双厅一体化,铺展约6.3米大飘窗,不浪费一点过道,增加了不少家人社交共融场景;南向套房主卧,独立卫浴间+飘窗,居住舒适度更进一步。

此宽境四房,既满足居住功能性,又有舒适的居住空间。三卧室+客厅,四开间朝南,享受约13.5米阔绰大面宽;灵活可变3+1房,契合三代同堂居住需求;U型厨房动线顺畅,一体化双厅,足以让家人欢聚一堂;小家化主卧套房,舒适感触手可及。
毫不讳言,这个户型功能多样性几乎与市面上约150方奢级空间尺度同款,一眼心动。

该边套户型,不仅有270度的采光视野,主/次/客卧三大开间并立朝南,“含阳光量”十足。
南面房间飘窗/阳台设计,充分延伸空间尺度,超宽超大横厅带独立玄关和独立储藏室空间,兼顾大空间尺度、舒适体感和全周期灵动布局,实现了居住价值的真正回归。
这款作为置换买家心仪的房型,以旧换新,以小换大,一次置换即可“无后顾之忧”,生活品质和资产双升舱。
新风、地暖、中央空调三大件,客厅岩板背景墙,主卧背景墙以及全屋墙纸(不含阳台);主卫&次卫都采用智能马桶;厨房方太三件套(侧式吸油烟机、三眼灶、洗碗机),以及多功能大单槽、凉霸,还有一整面的橱柜!如此扎实的装标,想不心动都难。(最终以商品房买卖合同为准)
滨江棠悦芳华的分析结果是这样:计算已考虑周边所有建筑的影响,结果表明由于周边规划尚未公示,暂且不建,楼栋仅受地块内部影响。(说明:本文日照数据基于公示规划图纸文件,使用专业制作工具完成,仅供参考)
夏季:楼栋朝向正南采光优异。2#低层受遮挡。就具体遮挡时间而言,2#主要在上午受1#遮挡。
冬季:2#采光优异几乎不存在遮挡。11#低层受遮挡。就具体遮挡时间而言,11#除早晨和傍晚外其余时间段均受遮挡。

通过精细拉槽的石材与仿铜不锈钢的巧妙组合,加上世界名表伯爵旗舰店同款宝石蓝釉面陶板、灵动曲面的造型……刷新板块的认知。

穿门而入,迎宾水院的风景很美,曲径通幽,步移景异。更亮眼的还有异形“蓝宝石”戏水池。
数百种大小乔木、灌木和各色花卉,环绕在周边。还有卡座,是邻里休闲、聚会放松的社区会客厅,未来,可以一边谈天说地,一边欣赏自然美景。

站在休闲观景台上,脚下是绿意蔓延的园林,耳畔是潺潺流水私语,目之所及是天光云影的交响。

同时,部分架空层规划层高约5.4米,比一般楼盘都要高,并规划打造7大主题空间,无论是沉浸书海的知识遨游,还是亲子的高阶版奈尔宝式童玩区,亦或是长者畅聊对弈、赏画品字,这样丰富的日常生活,不出小区就能轻松达成。
但凡看过棠悦芳华轩的朋友,会注意到项目的入户单元门、电梯公区等都藏着很多奢雅的细节,诸如各类岩板、石材、铝板等高浓度运用,瞬间提升了空间的档次。

买房人关心的立面,项目则采用四面铝板,辅以斜切工艺,勾勒挺拔向上的建筑气质,“折叠屏”的立面,别具美感,极具辨识度。(外立面材质以商品房买卖合同约定为准)


棠悦芳华轩位于市中心武林东北角宝藏片区,这一片撑起了杭州亚运电竞中心、电竞数娱小镇、杭汽轮文旅综合体(规划)等产业脊梁,同时,紧邻“杭州夜经济”样板新天地。

项目距离地铁3号线站武林商圈,通过换乘、轻松触达全城。自驾的话,紧邻秋石高架、留石高架,约六首歌的时间贯通武林、东站、钱新、奥体多个城市核心,对上班族相当友好。
周边有中大银泰城、新天地、龙湖天街、吾悦广场、山姆超市等六大商业综合体环绕,满足日常休闲娱乐的多样需求。
项目近邻九年一贯制安吉路景成实验学校、青蓝青华实验小学、求知小学、风华中学等环伺,覆盖幼小初的教育需求。(学校仅为周边信息展示,不做学区承诺,具体以教育部门相关政策为准)
还有市中医院丁桥院区、树兰医院、桃花湖公园、北景园生态公园等各种生活配套。
简体中文
