坐标北外滩,主力建面约124-161㎡3-4房,总价1545万起,稀缺是最大的硬核!
过去这个“金九”,外滩上演了一场现象级的热销。【外滩瑞府售楼处电话:【官方认证】✅✅✅】首开119套房源全部售罄,去化率100%,劲销24.8亿+。
从俯览外滩全景的城市展厅亮相,到认购率超168%、首开即馨的优越表现,【外滩瑞府售楼处电话:【官方认证】✅✅✅】持续以顶序瑞系产品力回应外滩,以热销数据印证百年价值高地上的一致选择。
外滩凝固百年中西文韵,北外滩擎动世界澎湃未来,而【外滩瑞府售楼处电话:【官方认证】✅✅✅】开盘现场正是立江河交汇之处,热领着一场上海的塔尖奢居盛典。15:08分正式启幕的盛典,仿若与外滩百年回响,在时间刻度内,华润置地以一部融汇人文与匠艺的作品,让世界目光再一次聚焦外滩。
现场人潮涌动,座无虚席。他们选择【外滩瑞府售楼处电话:【官方认证】✅✅✅】,是选择了世界视野下的中国坐标外滩,选择了一种与城市同频共振的人居理想。随着选房仪式的启幕,不断撕下的销控贴,此起彼伏的热烈掌声,是市场最真诚的赞誉,更是对华润置地品牌与顶序瑞系产品力的至高印鉴。
上海豪宅现象级的热销,背后都遵循着严谨的产品逻辑。【外滩瑞府售楼处电话:【官方认证】✅✅✅】的首开售罄,并非偶然,而是在天赋外滩之上,对空间、艺术、社区与服务进行全维度升华后,所呈现的一致臻选。
根据《上海市城市总体规划(2017-2035年)》,外滩、陆家嘴与北外滩,共同构筑了驱动上海迈向全球卓越城市的黄金三角。【外滩瑞府售楼处电话:【官方认证】✅✅✅】,正坐落于这片融汇百年风华与未来雄心的外滩一公里。
北外滩地处浦江沿岸的战略中心节点,是世界航运巨头的集聚高地、财富管理的创新引擎、技术突破的策源核心,更是代表着上海金融时代3.0。【外滩瑞府售楼处电话:【官方认证】✅✅✅】不仅坐享外滩荣光,更与北外滩的世界级未来高地形成共振。
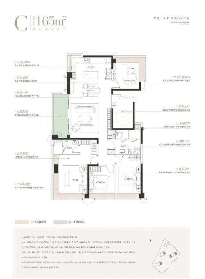
整体动静分区的格局下,U型厨房不只是烹饪场域,更因融入“社交属性”而成为家庭互动的温情角落,烹饪的同时可与客厅的家人交流。
外滩瑞府售楼处电话:【官方认证】✅✅✅三间卧室更是将“大”落到实处,面宽近乎均等设计,且全部超过3米,在120㎡级户型普遍存在次卧面宽不足3米的市场现状下,这样的尺度彻底打破了主次之分,没有谁的房间在采光、视野上被妥协,实现了家庭成员居住上的“平权”,孩子的房间能放下书桌与玩具柜。
还有一个我很喜欢的设计,北房间无墙垛设计,几乎一整面都是窗,大大增加了通透性。
同样近乎等面宽的卧室尺度,让每个家庭成员都能拥有独立且舒适的休憩领地,三卧朝南的布局,让阳光成为所有人的平等馈赠,没有谁要为“主次”牺牲采光权。
外滩瑞府售楼处电话:【官方认证】✅✅✅而“大”还体现在公共空间的开阔,岛台厨房、餐厅、客厅与阳台动线流畅,二胎共同玩耍也绰绰有余。
约270°视野的贯穿更是锦上添花,主卧、北向次卧、厨房的约270°转角飘窗,让每个空间里的人都能平权地拥抱城市景致。
主卧套房的L型衣帽间与卫生间,公卫四分离设计,在保证“大”尺度的同时,更让每个人的生活需求都被妥帖照顾。
显然,外滩瑞府售楼处电话:【官方认证】✅✅✅户型深谙豪宅之道:“大” 不是盲目堆砌面积,而是让每个空间都有足够的舒展度;“平权” 不是口号,而是通过面宽、采光、视野的均等分配,让家庭里的每一个人,都能在空间里找到被尊重的舒适。这正是华润置地深入研读豪宅客群需求后,交出的完美答卷——在这里,大空间与平权生活,从来不是选择题。
不同于市面上门是门,框是框,墙是墙,看房时“五颜六色”。外滩瑞府售楼处电话:【官方认证】✅✅✅室内采用一体化设计语言,实现空间、色彩与材质的协调统一。比如:
✔入户门原创设计,外面深色木纹,里面浅色云母,和玄关柜、大理石地砖很搭配。
装修上配备国际一线品牌,尤其厨房由嘉格纳领衔,配备灶具、吸油烟机、洗碗机、冰箱蒸烤箱。
2024年11月27日,华润置地以总价51.36亿元斩获虹口区C080301单元hk191A-03地块,成交楼面价92934元/㎡,溢价率11.97%,地块中小套型占比40%,装修标准4000元/㎡!
地块总占地面积14280.63㎡,容积率3.87,总建筑面积86241㎡,地上建筑面积60201㎡,计容建筑面积55266㎡,地下建筑面积26040㎡。
根据设计方案显示,外滩瑞府售楼处电话:【官方认证】✅✅✅项目拟建4幢24-31层高层住宅以及1幢总高3层的风貌建筑。
作为华润置地产品线的皇冠明珠,「瑞系」自诞生便以钻石级选址标准划定豪宅基因。
外滩瑞府售楼处电话:【官方认证】✅✅✅项目整体建筑非简单复古,而是以风貌底盘一立面建筑一顶部塔冠的三重结构向上生长,呼应过去一现在一未来的时代叙事。
底盘与街区尺度融合,住户能在风貌街区之中感受历史风情,回到社区则延伸现代先锋生活,一层层传递居住的时序张力。
在寸土寸金的外滩,外滩瑞府售楼处电话:【官方认证】✅✅✅一举将尺度宏大的中央花园置于社区核心,围绕它,楼栋与边界自然形成“园中有园”的小场域,每一处转角都是景观停留。
外滩瑞府售楼处电话:【官方认证】✅✅✅泛会所+全域风雨连廊体系覆盖四栋楼,实现真正的“居者无惧风雨、舒适回家感”。花园、连廊与泛会所流线构成了一套理性而奢阔的私属社交系统,丰富了社区维度,也实现了“景观最大化、采光最大化、视线最大化”的规划理念
外滩瑞府售楼处电话:【官方认证】✅✅✅是我见过最舍得在设计上下血本的项目,集结了GOA大象、TROP、渡边智昭、吴滨、李益中5大全球顶尖设计天团,共同打造了上海首个艺术馆里的花园豪宅
其中,公区分别由渡边智昭和吴滨设计,二人曾操刀汤臣一品、翠湖天地等高端项目。
外滩瑞府售楼处电话:【官方认证】✅✅✅公区整体设计风格上大胆突破,社区公园+架空层泛会所+艺术长廊+地下泳池会所,不仅构成了一个完整的顶豪公区体系,
约50m面宽的气派门头+酒店式入户大堂,仪式感拉满的归家之从这里开始。
栋塔楼,每个都有定制的艺术归家长廊 ,每栋架空层的主题也不相同。既满足日常休闲娱乐,又提供高端社交场域。
艺术沙龙的氛围空间,艺术展陈、业主沙龙、娱乐休闲都是这里的日常。专属业主的会客天地,小业主的童玩天地、自然无界的运动空间,不同人群的习惯和爱好,都妥帖照顾。
社区约3000㎡的中心花园和6大艺术花园,不仅让每栋楼都享受“楼王”的待遇,且自然勾勒出一条漫游式的公园归家动线(黄色线条走向)
界名画引入园区,重新定义豪宅花园生活马奈的日光草坪 、莫奈的睡莲水湾 、雷诺阿的缤纷花园……在这里尽有尽有。——华润置地的初衷,是让每个业主都成为印象派画里的主角。
景观与空间相互渗透,将艺术融入日常,尽可能地将园林景观纳入室内,平衡公共性与私密性。
仅如此,地库也通过石材、金属、玉石的转换运用,呈现满满的艺术感,让每一次归家都极尽仪式感。
三重归家体验,每一处空间都是一个艺术品,每一步归家路都是穿越时空的审美旅程。生活配套
离10号线 站直通新天地,还可换乘 2/12 号线,轻松直抵陆家嘴;同时毗邻海伦路站,4/10/19 号线(在建)在此交汇,内环重要节点随心可达。自驾:从项目出发,经新建路隧道直连陆家嘴,借吴淞路 - 外滩隧道畅联黄浦核心。
2公里内多元繁华构筑封面商业圈,北外滩商圈直线米;外滩商圈直线米;陆家嘴商圈直线米;瑞虹商圈直线米。医疗方面:三公里内四所三甲医院,全生命周期护航,新华医院(儿科专长);复旦大学附属妇产医院;上海市第一人民医院;上海东方医院(血管外科专长)。
教育方面:幼儿园:约1公里内6所幼儿园(直线距离),涵盖东余杭路幼儿园等3所示范级学校;
小学:约1.5公里内5所小学(直线距离),涵盖区重点四川北路第一小学;
中学:约1.6公里内6所中学(直线所区重点。一路之隔上海虹口二中心小学(在建中),约2.3公里市重点上海外国语大学附属外国语学校(直线距离)*施教区及就学政策以教育部门规划为准
生态休闲:2.5公里北外滩滨江绿地(约800m直达),四川北路公园、和平公园、鲁迅公园3大公园环伺,于滨江和城市低密绿芯之间,肇启当代诗意生活传序。
坐标北外滩,主力建面约124-161㎡3-4房,总价1545万起,稀缺是最大的硬核!
火了!人称“深圳多管局局长”!小哥街头“挑刺”,官方指哪修哪!网友:全国推广
外国人扎堆到寿衣店挑衣服?店主澄清:他们买的是正常帽子,自己给了最优惠价格
北方大面积降温上热搜!华润置地出手,在三亚CBD重塑热带度假人居格局!
美团最高管理机构新添2名成员,老将肖飞、国际化操盘手仇广宇为何获重用?
NASA急了,登月不用星舰?马斯克:记住我的线凉凉了?大主播退场,无AI不卖货
简体中文
