看房请务必致电与销售确认时间,仅预约客户可享受开发商内部优惠,专属老带新推荐奖!
过去这个“金九”,外滩上演了一场现象级的热销。【外滩瑞府】首开119套房源全部售罄,去化率100%,劲销24.8亿+。
从俯览外滩全景的城市展厅亮相,到认购率超168%、首开即馨的优越表现,【外滩瑞府】持续以顶序瑞系产品力回应外滩,以热销数据印证百年价值高地上的一致选择。
世界热领主场 为外滩人物加冕外滩凝固百年中西文韵,北外滩擎动世界澎湃未来,而【外滩瑞府】开盘现场正是立江河交汇之处,热领着一场上海的塔尖奢居盛典。15:08分正式启幕的盛典,华润外滩瑞府售楼处电话:仿若与外滩百年回响,在时间刻度内,华润置地以一部融汇人文与匠艺的作品,让世界目光再一次聚焦外滩。
现场人潮涌动,座无虚席。他们选择【外滩瑞府】,是选择了世界视野下的中国坐标外滩,选择了一种与城市同频共振的人居理想。随着选房仪式的启幕,不断撕下的销控贴,此起彼伏的热烈掌声,是市场最真诚的赞誉,更是对华润置地品牌与顶序瑞系产品力的至高印鉴。
上海豪宅现象级的热销,背后都遵循着严谨的产品逻辑。【外滩瑞府】的首开售罄,并非偶然,而是在天赋外滩之上,对空间、艺术、社区与服务进行全维度升华后,所呈现的一致臻选。华润外滩瑞府售楼处电话:
根据《上海市城市总体规划(2017-2035年)》,外滩、陆家嘴与北外滩,共同构筑了驱动上海迈向全球卓越城市的黄金三角。【外滩瑞府】,正坐落于这片融汇百年风华与未来雄心的外滩一公里。华润外滩瑞府售楼处电话:北外滩地处浦江沿岸的战略中心节点,是世界航运巨头的集聚高地、财富管理的创新引擎、技术突破的策源核心,更是代表着上海金融时代3.0。【外滩瑞府】不仅坐享外滩荣光,更与北外滩的世界级未来高地形成共振。
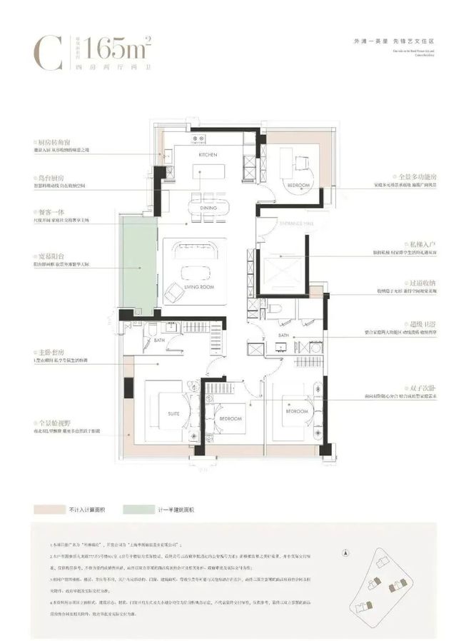
整体动静分区的格局下,U型厨房不只是烹饪场域,更因融入“社交属性”而成为家庭互动的温情角落,烹饪的同时可与客厅的家人交流。
三间卧室更是将“大”落到实处,面宽近乎均等设计,且全部超过3米,在120㎡级户型普遍存在次卧面宽不足3米的市场现状下,这样的尺度彻底打破了主次之分,没有谁的房间在采光、视野上被妥协,实现了家庭成员居住上的“平权”,孩子的房间能放下书桌与玩具柜。
还有一个我很喜欢的设计,北房间无墙垛设计,几乎一整面都是窗,大大增加了通透性。华润外滩瑞府售楼处电线㎡光影韵界,平衡时间的艺术藏品
同样近乎等面宽的卧室尺度,让每个家庭成员都能拥有独立且舒适的休憩领地,三卧朝南的布局,让阳光成为所有人的平等馈赠,没有谁要为“主次”牺牲采光权。
而“大”还体现在公共空间的开阔,岛台厨房、餐厅、客厅与阳台动线流畅,二胎共同玩耍也绰绰有余。
约270°视野的贯穿更是锦上添花,主卧、北向次卧、厨房的约270°转角飘窗,让每个空间里的人都能平权地拥抱城市景致。
主卧套房的L型衣帽间与卫生间,公卫四分离设计,在保证“大”尺度的同时,更让每个人的生活需求都被妥帖照顾。
显然,外滩瑞府户型深谙豪宅之道:“大” 不是盲目堆砌面积,而是让每个空间都有足够的舒展度;“平权” 不是口号,而是通过面宽、采光、视野的均等分配,让家庭里的每一个人,都能在空间里找到被尊重的舒适。这正是华润置地深入研读豪宅客群需求后,交出的完美答卷——在这里,大空间与平权生活,从来不是选择题。
不同于市面上门是门,框是框,墙是墙,看房时“五颜六色”。外滩瑞府室内采用一体化设计语言,实现空间、色彩与材质的协调统一。比如:
✔入户门原创设计,外面深色木纹,里面浅色云母,和玄关柜、大理石地砖很搭配。
装修上配备国际一线品牌,尤其厨房由嘉格纳领衔,配备灶具、吸油烟机、洗碗机、冰箱蒸烤箱。
2024年11月27日,华润置地以总价51.36亿元斩获虹口区C080301单元hk191A-03地块,成交楼面价92934元/㎡,溢价率11.97%,地块中小套型占比40%,装修标准4000元/㎡!华润外滩瑞府售楼处电话:
华润外滩瑞府售楼处电线㎡,计容建筑面积55266㎡,地下建筑面积26040㎡。
根据设计方案显示,项目拟建4幢24-31层高层住宅以及1幢总高3层的风貌建筑
作为华润置地产品线的皇冠明珠,「瑞系」自诞生便以钻石级选址标准划定豪宅基因。
项目整体建筑非简单复古,而是以风貌底盘一立面建筑一顶部塔冠的三重结构向上生长,呼应过去一现在一未来的时代叙事。
在寸土寸金的外滩,外滩瑞府一举将尺度宏大的中央花园置于社区核心,围绕它,楼栋与边界自然形成“园中有园”的小场域,每一处转角都是景观停留。
渡边智昭和吴滨设计,二人曾操刀汤臣一品、翠湖天地等高端项目华润外滩瑞府售楼处电话:。
华润外滩瑞府售楼处电线m面宽的气派门头+酒店式入户大堂,仪式感拉满的归家之从这里开始。
华润外滩瑞府售楼处电线大艺术花园,不仅让每栋楼都享受“楼王”的待遇,且自然勾勒出一条漫游式的公园归家动线(黄色线条走向)
马奈的日光草坪 、莫奈的睡莲水湾 、雷诺阿的缤纷花园……在这里尽有尽有。华润外滩瑞府售楼处电话:
景观与空间相互渗透,将艺术融入日常,尽可能地将园林景观纳入室内,平衡公共性与私密性。
交通方面:项目距离10号线 站直通新天地,还可换乘 2/12 号线,轻松直抵陆家嘴;同时毗邻海伦路站,4/10/19 号线(在建)在此交汇,内环重要节点随心可达。
自驾:从项目出发,经新建路隧道直连陆家嘴,借吴淞路 - 外滩隧道畅联黄浦核心。
项目约2公里内多元繁华构筑封面商业圈,北外滩商圈直线米;外滩商圈直线米;陆家嘴商圈直线米;瑞虹商圈直线米。华润外滩瑞府售楼处电话:
三公里内四所三甲医院,全生命周期护航,新华医院(儿科专长);复旦大学附属妇产医院;上海市第一人民医院;上海东方医院(血管外科专长)。华润外滩瑞府售楼处电话:
幼儿园:约1公里内6所幼儿园(直线距离),涵盖东余杭路幼儿园等3所示范级学校;华润外滩瑞府售楼处电线所小学(直线距离),涵盖区重点四川北路第一小学;中学:约1.6公里内6所中学(直线所区重点。一路之隔上海虹口二中心小学(在建中),约2.3公里市重点上海外国语大学附属外国语学校(直线距离)*施教区及就学政策以教育部门规划为准
2.5公里北外滩滨江绿地(约800m直达),四川北路公园、和平公园、鲁迅公园3大公园环伺,于滨江和城市低密绿芯之间,肇启当代诗意生活传序。华润外滩瑞府售楼处电话:
上海【外滩瑞府】售楼处电话:华润外滩瑞府营销中心热线(官方预约看房热线)
从俯览外滩全景的城市展厅亮相,到认购率超168%、首开即馨的优越表现,【外滩瑞府】持续以顶序瑞系产品力回应外滩,以热销数据印证百年价值高地上的一致选择。
世界热领主场 为外滩人物加冕外滩凝固百年中西文韵,北外滩擎动世界澎湃未来,而【外滩瑞府】开盘现场正是立江河交汇之处,热领着一场上海的塔尖奢居盛典。15:08分正式启幕的盛典,华润外滩瑞府售楼处电话:仿若与外滩百年回响,在时间刻度内,华润置地以一部融汇人文与匠艺的作品,让世界目光再一次聚焦外滩。
现场人潮涌动,座无虚席。他们选择【外滩瑞府】,是选择了世界视野下的中国坐标外滩,选择了一种与城市同频共振的人居理想。随着选房仪式的启幕,不断撕下的销控贴,此起彼伏的热烈掌声,是市场最真诚的赞誉,更是对华润置地品牌与顶序瑞系产品力的至高印鉴。
上海豪宅现象级的热销,背后都遵循着严谨的产品逻辑。【外滩瑞府】的首开售罄,并非偶然,而是在天赋外滩之上,对空间、艺术、社区与服务进行全维度升华后,所呈现的一致臻选。华润外滩瑞府售楼处电话:
根据《上海市城市总体规划(2017-2035年)》,外滩、陆家嘴与北外滩,共同构筑了驱动上海迈向全球卓越城市的黄金三角。【外滩瑞府】,正坐落于这片融汇百年风华与未来雄心的外滩一公里。华润外滩瑞府售楼处电话:北外滩地处浦江沿岸的战略中心节点,是世界航运巨头的集聚高地、财富管理的创新引擎、技术突破的策源核心,更是代表着上海金融时代3.0。【外滩瑞府】不仅坐享外滩荣光,更与北外滩的世界级未来高地形成共振。
Notice: The content above (including the pictures and videos if any) is uploaded and posted by a user of NetEase Hao, which is a social media platform and only provides information storage services.
火了!人称“深圳多管局局长”!小哥街头“挑刺”,官方指哪修哪!网友:全国推广
外国人扎堆到寿衣店挑衣服?店主澄清:他们买的是正常帽子,自己给了最优惠价格
北方大面积降温上热搜!华润置地出手,在三亚CBD重塑热带度假人居格局!
美团最高管理机构新添2名成员,老将肖飞、国际化操盘手仇广宇为何获重用?
NASA急了,登月不用星舰?马斯克:记住我的线凉凉了?大主播退场,无AI不卖货
求求你别再夺冠了,给其他选手留点机会吧!/
主站 商城 论坛 自运营 登录 注册 求求你别再夺冠了,给其他选手留点机会吧! 廉颇 2025-10-2...
《从前从前有个块魂》TGS试玩:历史向前滚动/
主站 商城 论坛 自运营 登录 注册 《从前从前有个块魂》TGS试玩:历史向前滚动 伊東 2025-...
《编码物候》展览开幕 北京时代美术馆以科学艺术解读数字与生物交织的宇宙节律
简体中文
